Back Road, Wenhaston, Halesworth, Suffolk, IP19
3 bedroom house in Wenhaston
Offers in excess of £400,000 Freehold
- 3
- 1
- 1
PICTURES AND VIDEOS























KEY FEATURES
- Set in the sought-after village of Wenhaston, close to the Heritage Coast
- Gated entrance and generous parking area
- Welcoming porch and timber-panelled front door
- Spacious main reception room with brick fireplace and multi-fuel burner
- Open-plan kitchen diner with pastel cabinetry and timber-effect worktops
- Light-filled conservatory/dining room with views of the garden
- Two first-floor bedrooms with built-in storage and countryside views
- Contemporary bathroom with large shower and vanity unit
- Generous rear garden backing onto open fields
- Detached annexe with lounge, kitchenette, bedroom and shower room
- Mature garden with lawned areas, deep borders and mature trees
- Solar panels to rear elevation for improved energy efficiency
- Ideal main residence, coastal bolt hole or holiday let opportunity
- Offered with vacant possession
KEY INFORMATION
- Tenure: Freehold
- Council Tax Band: C
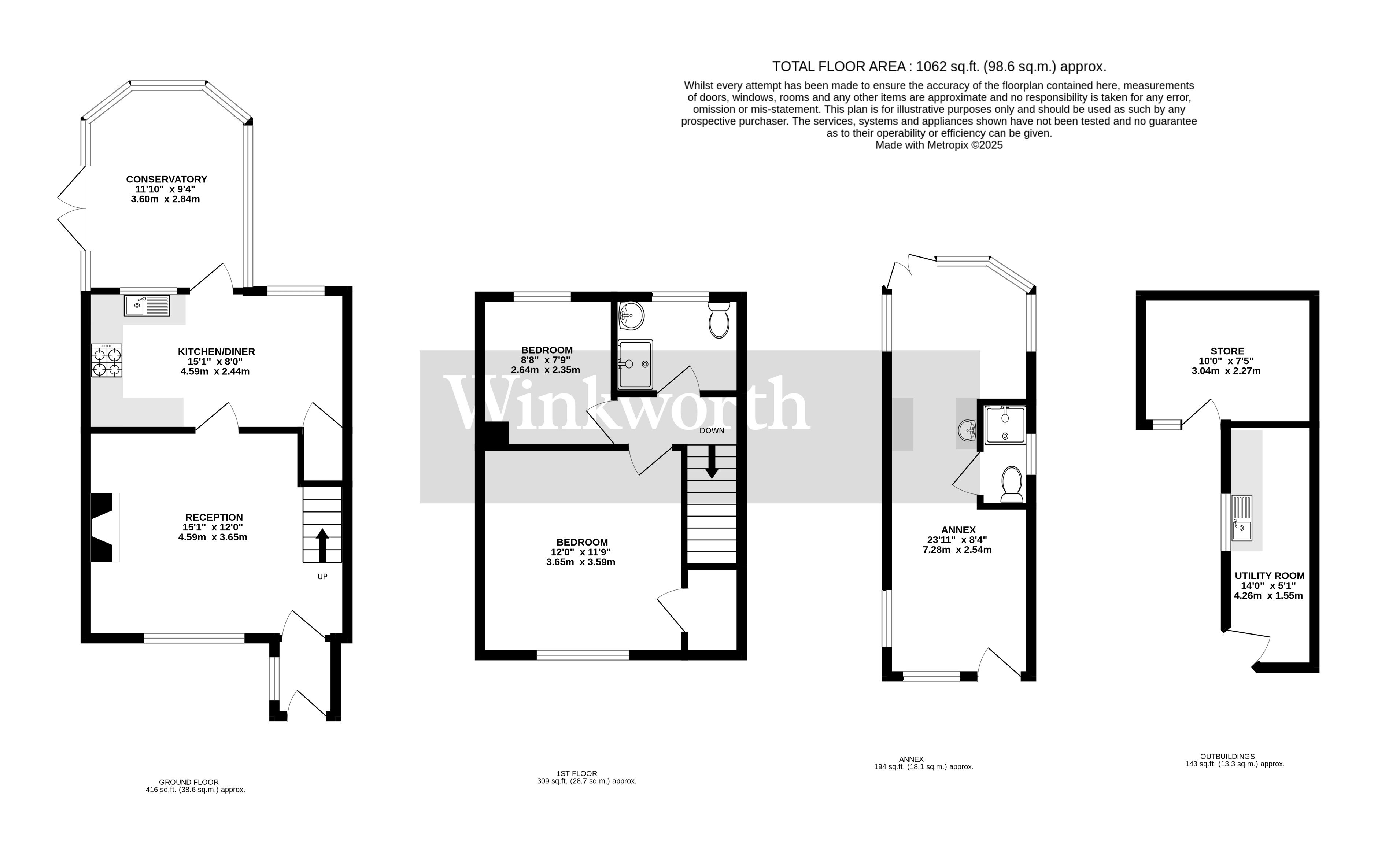
Description
Set in the ever-popular village of Wenhaston, perfectly positioned for exploring Suffolk’s celebrated Heritage Coast, this delightful character home presents a rare opportunity to acquire a versatile property offering charm, comfort, and income potential.
Behind a gated entrance and set well back from the road, the house enjoys generous parking and a tranquil sense of privacy. From its inviting interiors to the thoughtfully landscaped gardens and detached annexe, the property offers an ideal lifestyle escape—whether as a permanent residence, holiday home, or investment.
Step inside to discover a warm and welcoming main reception room, where a large front-aspect window and exposed brick fireplace create a relaxed, homely ambience. Timber accents throughout lend character, and the flow of accommodation continues into a well-fitted kitchen-diner with direct access to a light-filled conservatory/dining room, perfectly placed to enjoy views over the grounds.
Upstairs, the bedrooms are well-proportioned and thoughtfully arranged, with the principal room to the front and a charming second bedroom overlooking fields to the rear. The bathroom is stylish and contemporary, with practical storage and quality fittings. Externally, the garden is a standout feature—beautifully planted and arranged for both seclusion and enjoyment, with a blend of lawn, deep beds and mature trees.
The detached annexe provides excellent guest or letting accommodation, while solar panels and thoughtful design choices support a more sustainable lifestyle. A superb opportunity to enjoy a peaceful village lifestyle with the coast within easy reach—early viewing is highly recommended.
Council Tax Band: N/A
Local Authority - East Suffolk Council
We have been advised that the property has the following services. Mains water, mains drainage, electricity and oil fired central heating.
Winkworth wishes to inform prospective buyers and tenants that these particulars are a guide and act as information only. All our details are given in good faith and believed to be correct at the time of printing but they don’t form part of an offer or contract. No Winkworth employee has authority to make or give any representation or warranty in relation to this property. All fixtures and fittings, whether fitted or not are deemed removable by the vendor unless stated otherwise and room sizes are measured between internal wall surfaces, including furnishings. The services, systems and appliances have not been tested, and no guarantee as to their operability or efficiency can be given.
Marketed by
Winkworth Southwold
Properties for sale in SouthwoldArrange a Viewing
Fill in the form below to arrange your property viewing.
Mortgage Calculator
Fill in the details below to estimate your monthly repayments:
Approximate monthly repayment:
For more information, please contact Winkworth's mortgage partner, Trinity Financial, on +44 (0)20 7267 9399 and speak to the Trinity team.
Stamp Duty Calculator
Fill in the details below to estimate your stamp duty
The above calculator above is for general interest only and should not be relied upon
Meet the Team
As the area's newest independent agent, we bring with us a combined 65 years of experience, and a love for what we do and the local community around us. Understanding the individual needs of our clients is paramount to who we are. Located in the heart of Southwold's High Street our prominent office can be seen by all the right people. Please come and talk to us about your property requirements, and get to know the team from the Winkworth Estate Agents in Southwold.
See all team members