Skip to main content

MyWinkworth

New Instruction

Picture No. 03
Picture No. 02
Picture No. 04
Picture No. 16
Picture No. 05
Picture No. 06
Picture No. 07
Picture No. 08
Picture No. 10
Picture No. 11
Picture No. 15
Picture No. 19
6/14

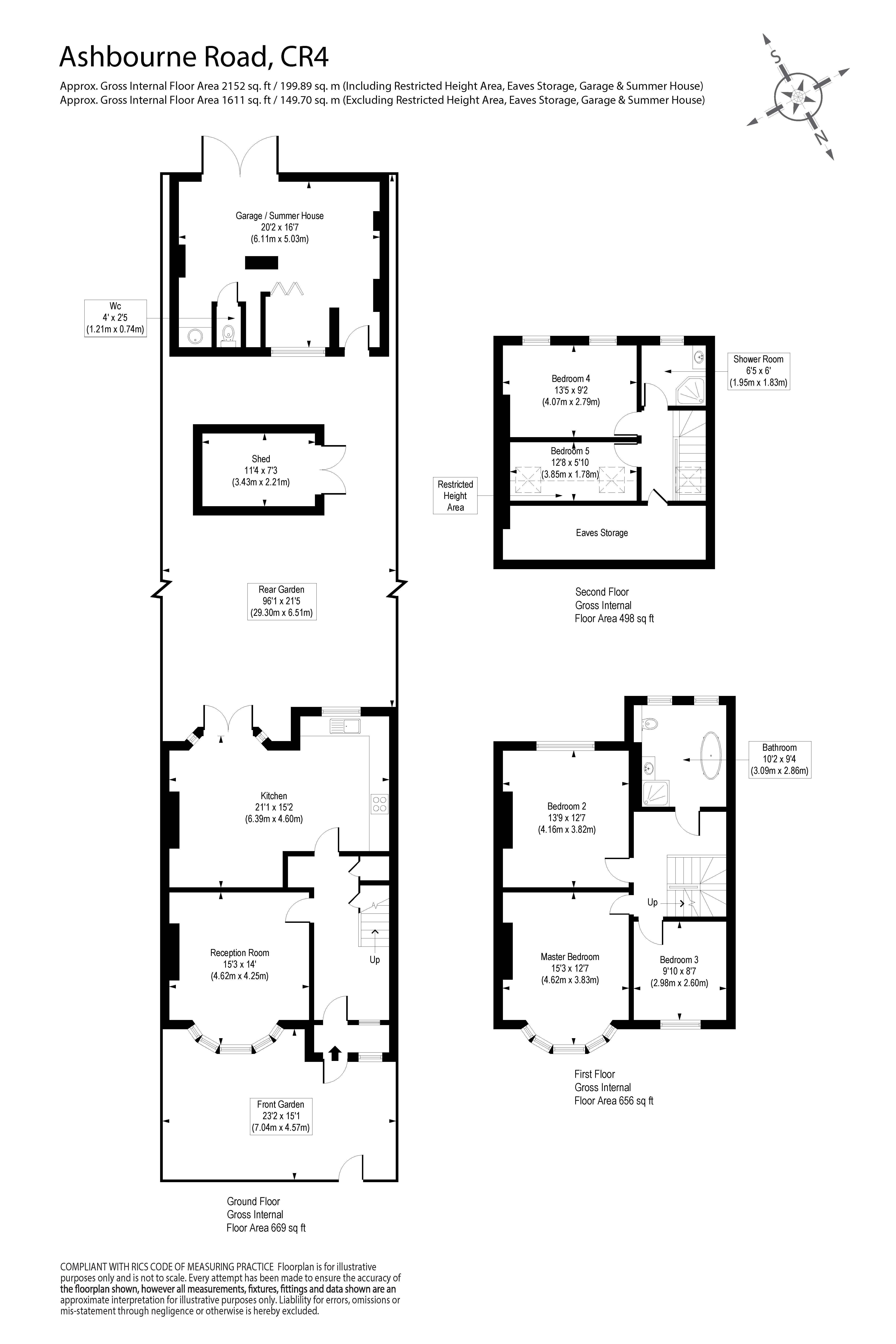
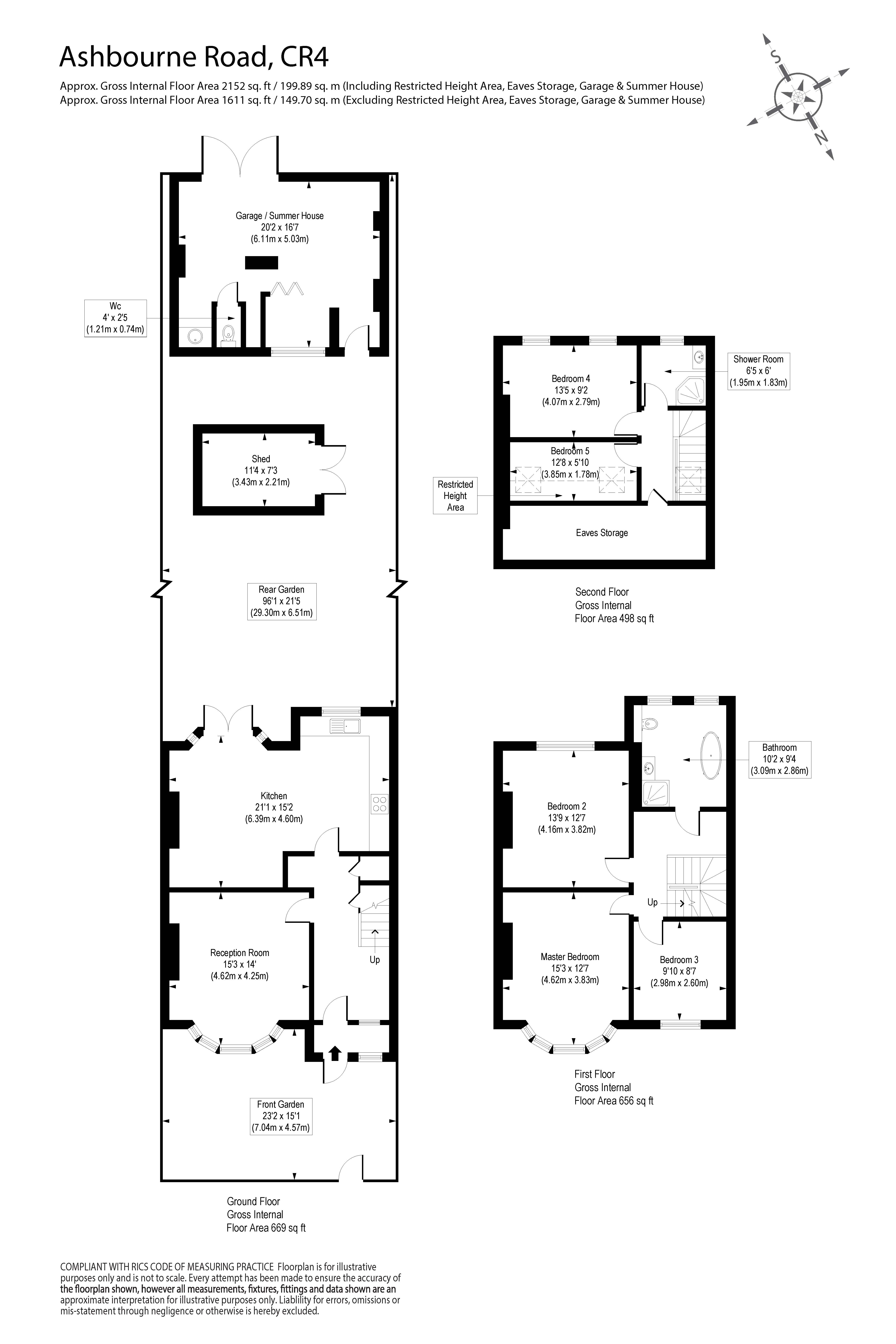
Ashbourne Road, Mitcham, CR4

5 bedroom house in Mitcham

Offers in excess of £775,000 Freehold

  • Bedrooms 5
  • Bathrooms 2
  • Reception rooms 1
  • Floorplan

PICTURES AND VIDEOS

KEY FEATURES

  • Freehold
  • Five Bedrooms
  • Two Modern Bathrooms
  • Large Open Plan Kitchen/Dining Room
  • Spacious Reception Room
  • Private Garden With Outbuilding
  • Off-Road Garage Access
  • Excellent Location
  • Good Decoration

KEY INFORMATION

  • Tenure: Freehold

Description

A fantastic five-bedroom house with a large private garden, located in this popular area close to Tooting Broadway, Furzedown and Mitcham.

The ground floor consists of a wonderful reception room with a large bay window allowing an abundance of natural light, with stunning marble fireplace features and retained period character with high ceilings and cornicing. To the rear of the property is a spacious open plan kitchen and dining room, perfect for hosting, with stunning floor-to-ceiling French doors leading out into the large private south-facing garden. The garden benefits from a shed for garden tools, plus spacious multifunctional outbuilding with drainage, power and dry storage. The property further benefits from a private off-road garage.

The first floor comprises a generous modern family bathroom, three double bedrooms with great views and ample storage. On the second floor there are two smaller bedrooms, one currently being used as a study, and a smaller bathroom. The property further benefits from separate private access to its rear.

Ashbourne Road is ideally located close to the green open spaces of Figges Marsh. Local amenities are short distance away in Tooting Broadway or Mitcham and there are numerous transport links found at Tooting Rail Station, Tooting Broadway Underground (Northern Line) and a variety of bus routes all in walking distance from the property.

Marketed by

Winkworth Tooting

Properties for sale in Tooting

Arrange a Viewing

Fill in the form below to arrange your property viewing.

This site is protected by reCAPTCHA and the Google Privacy Policy and Terms of Service apply.
Introduction text for the mortgage calculator

Mortgage Calculator

Fill in the details below to estimate your monthly repayments:

Approximate monthly repayment:

For more information, please contact Winkworth's mortgage partner, Trinity Financial, on +44 (0)20 7267 9399 and speak to the Trinity team.

Stamp Duty Calculator

Fill in the details below to estimate your stamp duty

The above calculator above is for general interest only and should not be relied upon

6/14
Picture No. 03
Picture No. 02
Picture No. 04
Picture No. 16
Picture No. 05
Picture No. 06
Picture No. 07
Picture No. 08
Picture No. 10
Picture No. 11
Picture No. 15
Picture No. 19

Meet the Team

Our team at Winkworth Tooting Estate Agents are here to support and advise our customers when they need it most. We understand that buying, selling, letting or renting can be daunting and often emotionally meaningful. We are there, when it matters, to make the journey as stress-free as possible.

See all team members

Got a question about this property?

This site is protected by reCAPTCHA and the Google Privacy Policy and Terms of Service apply.

More Properties like this

Pavilion Square, London, SW17

£1,250,000 Freehold

Under Offer

Undine Street, London, SW17

£1,200,000 Freehold

Under Offer

Graveney Road, London, SW17

£1,050,000

New Instruction

Links Road, London, SW17

£950,000 Freehold

Fairlight Road, London, SW17

£940,000 Freehold

Under Offer

Fircroft Road, London, SW17

£900,000 Freehold

Online Valuations Aren’t Worth The Paper They’re Printed On.

When online valuations don’t give you the whole picture - try Winkworth’s expert service. Get a free property appraisal. Accurate valuations from our local property experts. No obligation to list with Winkworth. Choose a time convenient for you with our online booking system.

Fill in your details and someone will be in touch soon:

You have provisionally booked a valuation for . Please confirm your details below

We don't have date info available for this property, but if you fill in your details below, someone will be in touch to arrange a date soon

Please fill in the required fields below marked with *

This site is protected by reCAPTCHA and the Google Privacy Policy and Terms of Service apply.