Skip to main content

MyWinkworth

Picture No. 19
Picture No. 30
Picture No. 18
Picture No. 23
Picture No. 24
Picture No. 21
Picture No. 34
Picture No. 20
Picture No. 22
Picture No. 32
Picture No. 29
Picture No. 27
Picture No. 33
Picture No. 35
Picture No. 31
Picture No. 28
Picture No. 25
Picture No. 26
6/14

Allison Road, London, N8

2 bedroom flat/apartment in London

Guide Price £565,000 Leasehold

  • Bedrooms 2
  • Bathrooms 1
  • Reception rooms 1
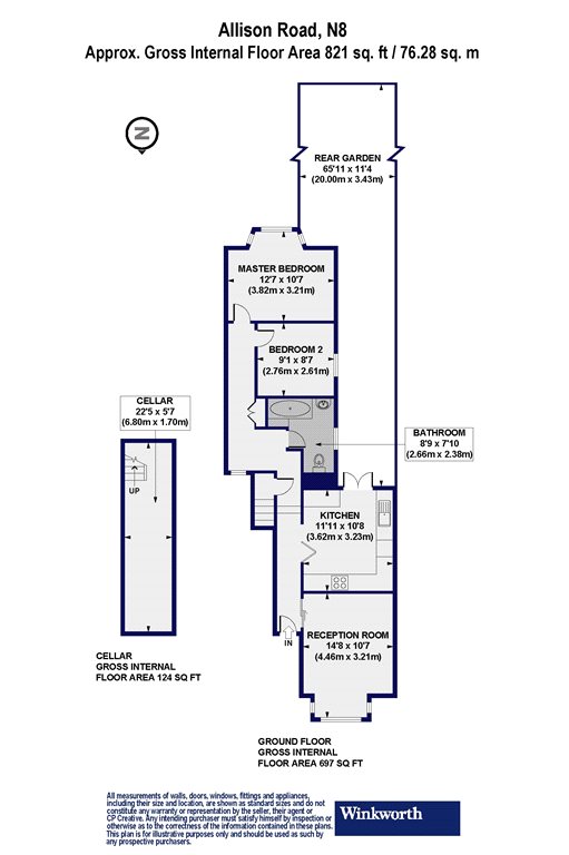
  • Dimensions 821 sq ft
    76 sq m
  • Floorplan

PICTURES AND VIDEOS

KEY FEATURES

  • 2 Bedrooms
  • Long lease
  • Modern Bathroom
  • Large Reception Room
  • Modern Kitchen Breakfast Room
  • South Facing Garden
  • Great Transport Links

KEY INFORMATION

  • Tenure: Leasehold
  • Lease Length: 147 yrs left
  • Ground rent: £50.00 per annum

Description

This immaculate two-bedroom Victorian conversion with a shared south-facing garden is situated on Allison Road, forming part of the popular and well connected Harringay Ladder.

Sole agent

Occupying the entire ground floor of a handsome Victorian end-of-terrace, this beautifully presented two-bedroom conversion seamlessly blends period character with contemporary design.

Offering approximately 821 sq. ft. of internal space and the property enjoys direct access to a charming south-facing garden, shared with just one other flat.

Inside, the home is bright and inviting, with an airy feel enhanced by high ceilings, large sash windows, and elegant period details.

A well-proportioned 15ft reception room serves as a welcoming space to relax or entertain, while the eat-in kitchen has been designed with both style and practicality in mind. Fitted with high-end finishes, sleek cabinetry, and ample workspace, this kitchen breakfast room is perfect for casual dining and social gatherings.

Both of the flats bedrooms can be found at the rear of the property, with the larger of the two overlooking the the south-facing garden, which is a peaceful retreat.

This sought-after location is well connected, with excellent transport links at Manor House, Finsbury Park (Piccadilly & Victoria Lines), and Harringay (Overground) stations. Green spaces such as Finsbury Park, the Parkland Walk, and Woodberry Wetlands are all within easy reach, offering plenty of opportunities to enjoy the outdoors.

Top-rated North Harringay and South Harringay Primary schools are nearby, while Green Lanes’ vibrant mix of independent stores, cafés, and restaurants is just a short stroll away. Crouch End’s cinemas, boutique shops, and buzzing food scene add even more to the appeal of this fantastic North London location.

Marketed by

Winkworth Harringay

Properties for sale in Harringay

Arrange a Viewing

Fill in the form below to arrange your property viewing.

This site is protected by reCAPTCHA and the Google Privacy Policy and Terms of Service apply.
Introduction text for the mortgage calculator

Mortgage Calculator

Fill in the details below to estimate your monthly repayments:

Approximate monthly repayment:

For more information, please contact Winkworth's mortgage partner, Trinity Financial, on +44 (0)20 7267 9399 and speak to the Trinity team.

Stamp Duty Calculator

Fill in the details below to estimate your stamp duty

The above calculator above is for general interest only and should not be relied upon

6/14
Picture No. 19
Picture No. 30
Picture No. 18
Picture No. 23
Picture No. 24
Picture No. 21
Picture No. 34
Picture No. 20
Picture No. 22
Picture No. 32
Picture No. 29
Picture No. 27
Picture No. 33
Picture No. 35
Picture No. 31
Picture No. 28
Picture No. 25
Picture No. 26

Meet the Team

At Winkworth Harringay Estate Agents, we have a comprehensive team of knowledgeable and personable property experts who are excited about the local area. So whether you're buying, selling, renting or letting or simply need some advice, pop into our office on Green Lanes for the experience and the local knowledge you need.

See all team members

Got a question about this property?

This site is protected by reCAPTCHA and the Google Privacy Policy and Terms of Service apply.

More Properties like this

Under Offer

Burgoyne Road, London, N4

Guide Price £735,000 Share of Freehold

Under Offer

Wightman Road, London, N4

Guide Price £650,000 Leasehold

Frankum Mews, London, N22

£649,950 Leasehold

Under Offer

Duckett Road, London, Haringey, N4

Guide Price £635,000 Share of Freehold

Under Offer

Coningsby Road, London, N4

£625,000 Share of Freehold

Under Offer

Raleigh Road, London, N8

Guide Price £625,000 Share of Freehold

Online Valuations Aren’t Worth The Paper They’re Printed On.

When online valuations don’t give you the whole picture - try Winkworth’s expert service. Get a free property appraisal. Accurate valuations from our local property experts. No obligation to list with Winkworth. Choose a time convenient for you with our online booking system.

Fill in your details and someone will be in touch soon:

You have provisionally booked a valuation for . Please confirm your details below

We don't have date info available for this property, but if you fill in your details below, someone will be in touch to arrange a date soon

Please fill in the required fields below marked with *

This site is protected by reCAPTCHA and the Google Privacy Policy and Terms of Service apply.