Skip to main content

MyWinkworth

Picture No. 30
Picture No. 18
Picture No. 28
Picture No. 20
Picture No. 22
Picture No. 17
Picture No. 19
Picture No. 25
Picture No. 27
Picture No. 29
Picture No. 26
Picture No. 31
Picture No. 23
Picture No. 24
Picture No. 21
Picture No. 34
Picture No. 32
Picture No. 33
6/14

Walcot Square, London, UK, SE11

2 bedroom house in London

£692 per week (£3,000 per month) Fees may apply

  • Bedrooms 2
  • Bathrooms 1
  • Unfurnished
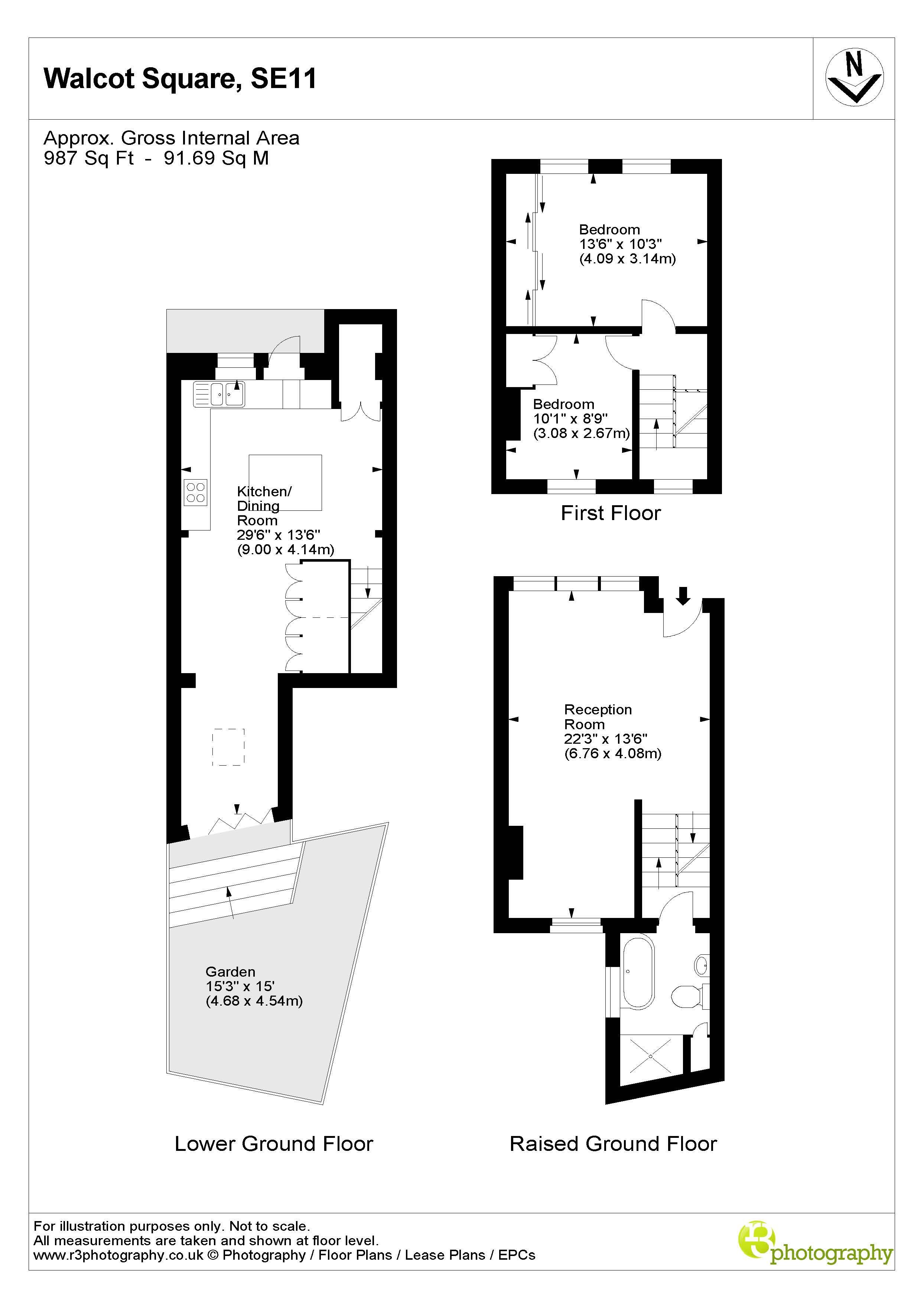
  • Floorplan

PICTURES AND VIDEOS

KEY FEATURES

  • Three storey Georgian townhouse
  • Double reception
  • Large, modern kitchen with island
  • Separate shower to bath
  • Private courtyard
  • Two good sized double bedrooms
  • Unfurnished

KEY INFORMATION

  • Deposit: Fixed £3,461.50
  • Council Tax Band: F
  • Local Authority: Lambeth

Description

A beautifully presented two double bedroom Georgian house located on the sought after Walcot Square within the Walcot Conservation Area.

This three story, Georgian home is located on the sought after Walcot Square. The house was converted from a shop into a residential dwelling by the current owner in 2012. On entering the property there is a double reception room which has been opened up to create a bright and airy living space with dual aspect windows, wooden floors, a wood burning fireplace and inbuilt joinery. A stunning, modern bathroom is located just off the lower floor landing which features a separate bathtub and a large walk in waterfall shower, it further benefits from integrated storage, a heated mirror and underfloor heating. A modern fully fitted kitchen and dining area is located on the lower ground floor. This room has a large Island, integral premium appliances, underfloor heating and plenty of storage; to the rear of the kitchen the house has been extended leading out onto the private garden through bi-fold doors. Two good sized double bedrooms are located on the top floor. The first bedroom is perfect as a double bedroom, nursery or study and to the front of the property is the light and airy Master bedroom. Both bedrooms benefit from bespoke inbuilt storage.

Walcot Square is conveniently positioned between Lambeth North, Kennington, Waterloo and Elephant and Castle stations. It is also on a number of bus routes and a 30 minute walk to the City.

Marketed by

Winkworth Kennington

Properties for rent in Kennington

Arrange a Viewing

Fill in the form below to arrange your property viewing.

This site is protected by reCAPTCHA and the Google Privacy Policy and Terms of Service apply.
6/14
Picture No. 30
Picture No. 18
Picture No. 28
Picture No. 20
Picture No. 22
Picture No. 17
Picture No. 19
Picture No. 25
Picture No. 27
Picture No. 29
Picture No. 26
Picture No. 31
Picture No. 23
Picture No. 24
Picture No. 21
Picture No. 34
Picture No. 32
Picture No. 33

Meet the Team

Our team at Winkworth Kennington Estate Agents are here to support and advise our customers when they need it most. We understand that buying, selling, letting or renting can be daunting and often emotionally meaningful. We are there, when it matters, to make the journey as stress-free as possible.

See all team members

Got a question about this property?

This site is protected by reCAPTCHA and the Google Privacy Policy and Terms of Service apply.

More Properties like this

Fentiman Road, London, SW8

£1,385 per week (£6,000 per month)

Under Offer

Kitson Road, London, UK, SE5

£1,038 per week (£4,500 per month)

Under Offer

Hanover Gardens, London, UK, SE11

£981 per week (£4,250 per month)

Under Offer

St. Marys Gardens, London, UK, SE11

£808 per week (£3,500 per month)

Under Offer

Dugard Way, London, SE11

£808 per week (£3,500 per month)

Under Offer

Henshaw Street, London, UK, SE17

£750 per week (£3,250 per month)

Online Valuations Aren’t Worth The Paper They’re Printed On.

When online valuations don’t give you the whole picture - try Winkworth’s expert service. Get a free property appraisal. Accurate valuations from our local property experts. No obligation to list with Winkworth. Choose a time convenient for you with our online booking system.

Fill in your details and someone will be in touch soon:

You have provisionally booked a valuation for . Please confirm your details below

We don't have date info available for this property, but if you fill in your details below, someone will be in touch to arrange a date soon

Please fill in the required fields below marked with *

This site is protected by reCAPTCHA and the Google Privacy Policy and Terms of Service apply.