New Instruction
Quentin Road, London, SE13
4 bedroom house in London
£969 per week
- 4
- 2
- 2
- Unfurnished
PICTURES AND VIDEOS















KEY FEATURES
- Four bedroom family home
- Two bathrooms
- Extended kitchen / breakfast room
- EPC rating: C
- Council Tax: G
- One week holding deposit
- Five week security deposit
- Unfurnished
- Available immediately
KEY INFORMATION
- Deposit: 5 Weeks rent
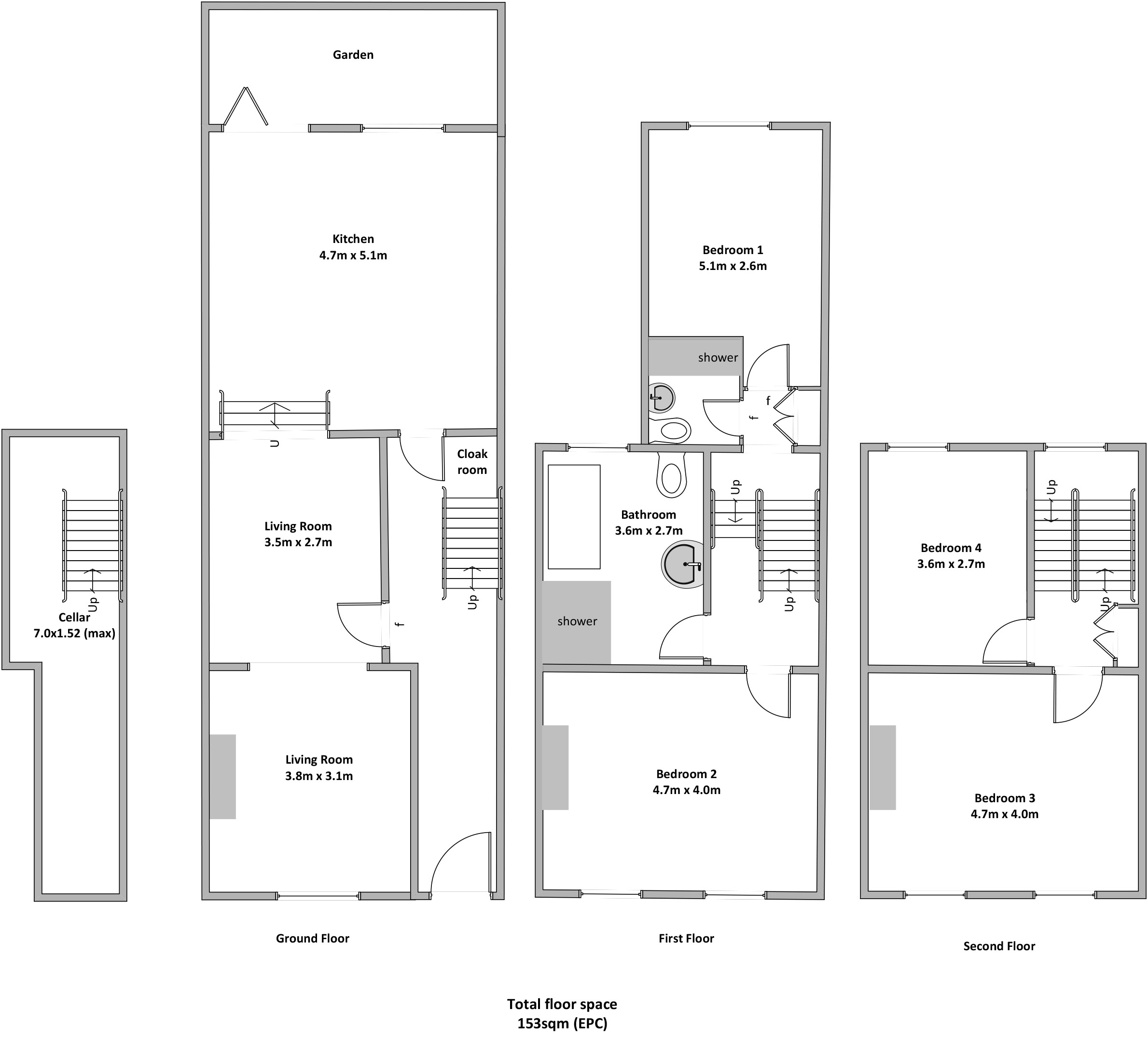
Description
A stunning four bedroom, two bathroom family home on one of the areas most desirable roads.
This beautiful property comprises a through reception with hardwood flooring, plus a large sash window and fireplace to the front reception room. There is an extended & modern fitted kitchen to the rear of the house which also has bi-folding doors leading onto the low maintenance patio garden. The first floor has two double bedrooms, a lovely family bathroom as well as an equally lovely separate shower room, and the top floor has a further two double bedrooms.
Offered unfurnished and available immediately, your earliest viewing is highly advised.
Marketed by
Winkworth Blackheath
Properties for rent in BlackheathArrange a Viewing
Fill in the form below to arrange your property viewing.
Meet the Team
As one of the oldest estate agents in Blackheath, ranked no 1 for both sales and lettings, our local knowledge and expertise is second to none. Our recently refurbished flagship office is found in the heart of the Village, directly opposite Blackheath Station, where you can call in for advice seven days a week.
See all team members