Olive Avenue, Leigh-on-Sea, Essex, SS9
3 bedroom house in Leigh-on-Sea
£414 per week
- 3
- 1
- 2
PICTURES AND VIDEOS



















KEY FEATURES
- Three Bedrooms
- Semi-Detached
- Off Street Parking
- Large Garden
- Leigh C2C Trainline 1 Mile Away
- Bath & Separate Shower
KEY INFORMATION
- Deposit: 5 Weeks rent
- Council Tax Band: D
Description
Presenting this charming three-bedroom semi-detached home in a desirable residential location in Leigh-on-Sea. Featuring a spacious layout, including a bright lounge & separate dining room with French doors leading to the garden, as well as a large bathroom with a bath & separate shower. Enjoy the comfort of gas radiator central heating, double-glazed windows, and off-street parking. Externally the home offers expansive, beautifully landscaped gardens.
Winkworth Estate Agents is delighted to offer this charming three-bedroom semi-detached house, perfectly situated in a highly desirable residential location of Leigh-on-Sea.
The property features a spacious layout, including a bright lounge & separate dining room with French doors leading to the garden, as well as a large bathroom with a bath & separate shower. Two double bedrooms and a smaller bedroom that could also be used as an office or dressing room. Enjoy the comfort of gas radiator central heating, double-glazed windows, and off-street parking. Externally the home offers expansive, beautifully landscaped gardens.
This home is conveniently located with well-regarded schools such as Belfairs Academy and West Leigh School nearby, and is just a short distance from the fashionable Leigh Broadway, known for its wide array of restaurants, cafés, and boutique shops. Leigh C2C trainline is approximately 20-minutes’ walk away.
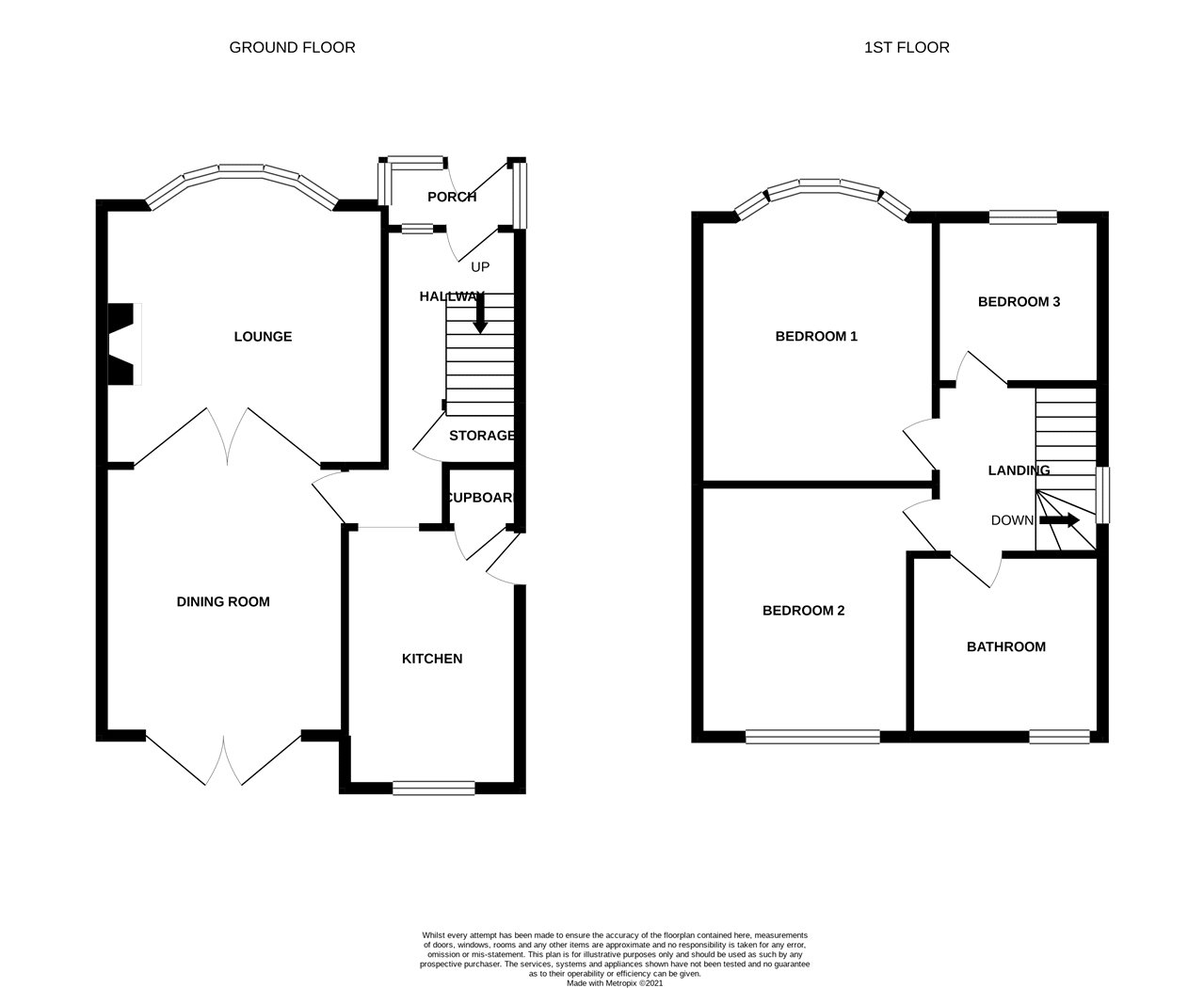
Room Dimensions
Lounge 12'11 (15'1 into bay window) x 12'4
Dining Room 12'9 x 10'10
Kitchen 12'6 x 7'4
Bedroom One 12'11 (15'1 into bay window) x 11'6
Bedroom Two 12'9 x 9'10
Bedroom Three 8'6 x 6'9
Bathroom 8'7 x 8'5
Agents Notes:-
Council Tax Band – D
Floor Area - 1054 ft 2 / 98 m 2
Electricity Supply – Mains standard
Gas Supply – Mains standard
Water Supply – Mains standard
Sewerage – Mains standard
Heating – Gas central heating
Broadband
• Standard 16 Mbps
• Superfast 80 Mbps
• Ultrafast 1800 Mbps
Satellite / Fibre Availability
• BT Yes
• Sky Yes
• Virgin No
Marketed by
Winkworth Leigh-on-Sea
Properties for rent in Leigh-on-SeaArrange a Viewing
Fill in the form below to arrange your property viewing.
Meet the Team
Our team at Winkworth Leigh-on-Sea Estate Agents are here to support and advise our customers when they need it most. We understand that buying, selling, letting or renting can be daunting and often emotionally meaningful. We are there, when it matters, to make the journey as stress-free as possible.
See all team members