Skip to main content

MyWinkworth

Picture No. 15
Picture No. 12
Picture No. 03
Picture No. 01
Picture No. 08
Picture No. 11
Picture No. 04
Picture No. 05
Picture No. 06
Picture No. 07
Picture No. 14
6/14

Minet Avenue, London, NW10

2 bedroom maisonette in London

£427 per week (£1,850 per month) Fees may apply

  • Bedrooms 2
  • Bathrooms 1
  • Reception rooms 1
  • Furnished
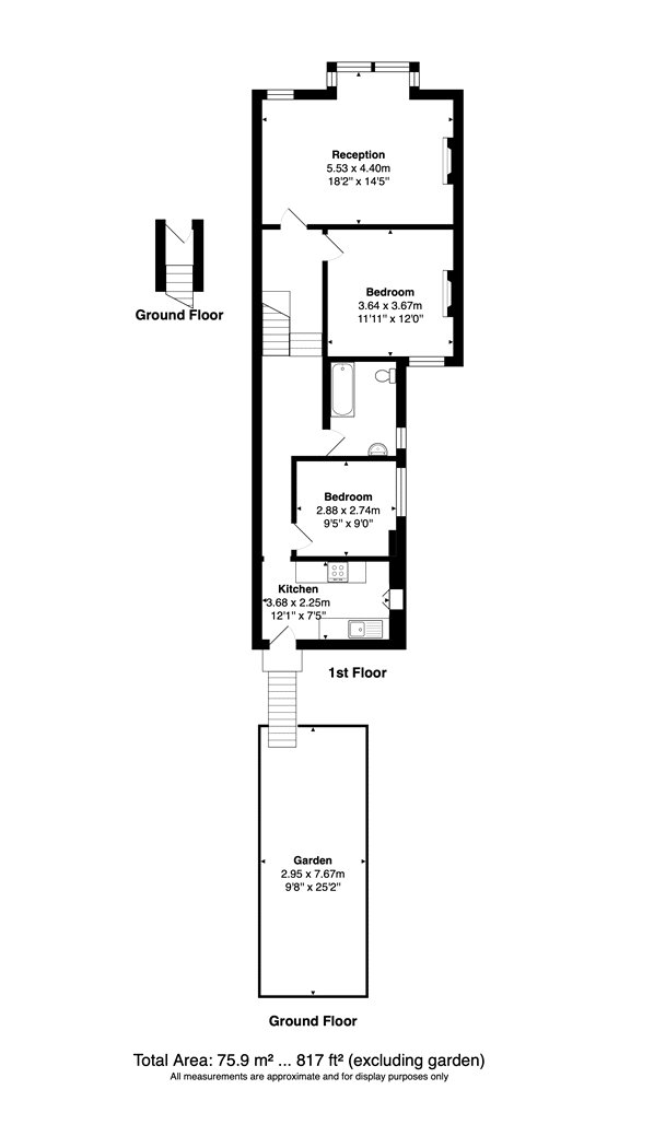
  • Dimensions 817 sq ft
    75 sq m
  • Floorplan

PICTURES AND VIDEOS

KEY FEATURES

  • First Floor
  • Two Bedrooms (Once Single)
  • Large Reception Room
  • Separate Kitchen
  • Private Rear Garden
  • Garden Access From Kitchen

KEY INFORMATION

  • Council Tax Band: D
  • Local Authority: London Borough Of Brent

Description

Two Bedroom First Floor Apartment With Access To A Private Garden.

Located on a quiet treelined street in Harlesden, this apartment is extremely light and has an airy feel.

With an enterance on the ground and then up a single flight of stairs you find yourself into the center of the apartment. To the front there is a bay front window with stained glass, feature fireplace, ceiling rose, and painted original wooden flooring. The larger of the two bedrooms is next to the reception room, this too has a feature fireplace as well as wooden flooring. The top of the hallway has space for a small desk and leads down to the family bathroom which is spacious, has white tiles and a large bath with shower over and onto the smaller of the bedroom which is a single and would be well suited as an office.

The rear kitchen has all modern appliances and has steps leading down to garden with easy to maintain stones and picnic bench and loungers.

Fully furnished.

Location

Amazing transport links. Off street parking for tenants can be applied for.

Marketed by

Winkworth Kensal Rise & Queen's Park

Properties for rent in Kensal Rise & Queen's Park

Arrange a Viewing

Fill in the form below to arrange your property viewing.

This site is protected by reCAPTCHA and the Google Privacy Policy and Terms of Service apply.
6/14
Picture No. 15
Picture No. 12
Picture No. 03
Picture No. 01
Picture No. 08
Picture No. 11
Picture No. 04
Picture No. 05
Picture No. 06
Picture No. 07
Picture No. 14

Meet the Team

Our team are here to support and advise our customers when they need it most. We understand that buying, selling, letting or renting can be daunting and often emotionally meaningful. We are there, when it matters, to make the journey as stress-free as possible.

See all team members

Got a question about this property?

This site is protected by reCAPTCHA and the Google Privacy Policy and Terms of Service apply.

Online Valuations Aren’t Worth The Paper They’re Printed On.

When online valuations don’t give you the whole picture - try Winkworth’s expert service. Get a free property appraisal. Accurate valuations from our local property experts. No obligation to list with Winkworth. Choose a time convenient for you with our online booking system.

Fill in your details and someone will be in touch soon:

You have provisionally booked a valuation for . Please confirm your details below

We don't have date info available for this property, but if you fill in your details below, someone will be in touch to arrange a date soon

Please fill in the required fields below marked with *

This site is protected by reCAPTCHA and the Google Privacy Policy and Terms of Service apply.