New Instruction
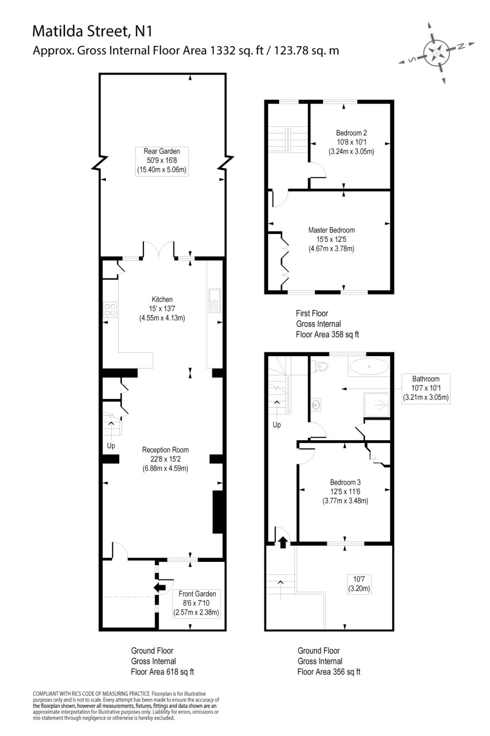
Matilda Street, London, N1
3 bedroom house in London
£1,038 per week
- 3
- 1
- 1
- Unfurnished
-
1332 sq ft
123 sq m -
PICTURES AND VIDEOS
KEY FEATURES
- EPC BAND: E
- COUNCIL TAX BAND: G
KEY INFORMATION
- Deposit: 6 Weeks rent
Description
Matilda Street has the amenities of Angel and Kings Cross within easy reach. Nearby Saint Pancras International Train Station provides direct trains to Gatwick and Luton Airports and also Eurostar Trains direct to Paris, Brussels and beyond. The excellent bus services link to London Bridge, Angel, Trafalgar Square, and Marble Arch, Wood Green, Archway and Crouch End. Offered Unfurnished.
Holding deposit - 1 weeks rent.
Marketed by
Winkworth Islington
Properties for rent in IslingtonArrange a Viewing
Fill in the form below to arrange your property viewing.
Meet the Team
Our knowledgeable, friendly team here at Winkworth Islington Estate Agents are on hand to help whether you're buying, selling or renting. While we favour the local approach, by working closely with our London and national network alongside dedicated Corporate Services, marketing and PR departments, we give our clients an unparalleled advantage, matching homes with buyers and tenants throughout London and the UK.
See all team members