Let
Eaton Gardens, Hove, BN3
2 bedroom flat/apartment in Hove
£427 per week
- 2
- 2
- 1
- Unfurnished
PICTURES AND VIDEOS



















Description
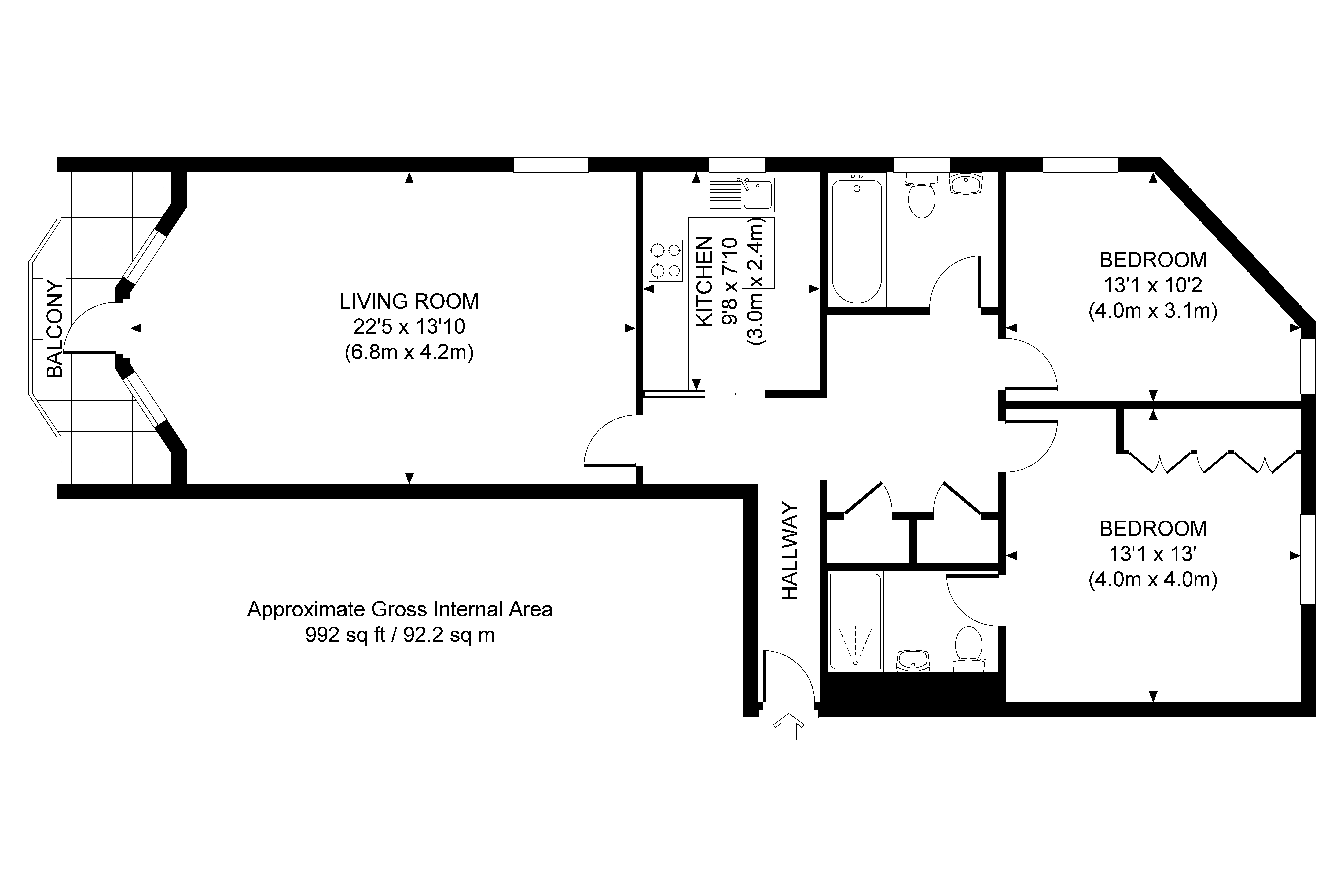
A spacious and bright two bedroom balcony apartment, located just moments from Hove Station in this tree lined road, the apartment comes with a secure designated underground car parking space.
The 1st floor apartment is offered in good condition and offers well planned, bright accommodation. Comprising of a sizable living room with a west facing balcony.
Separate kitchen complete with appliances. Two double bedrooms, one with ensuite and built in cupboards, seperate family bathroom.
Eaton Gardens is situated in the heart of Hove, with Church Road on your doorstep with its exciting range of local shops, cafes, coffees houses, bars and restaurants, in addition to the seafront.
This property is available1st February 2025 and offered unfurnished.
Sorry no pets, students or sharers.
Meet the Team
Our office is situated in the heart of Hove, we are a small team that is made up of long time Brighton locals and re-locators from Sussex, Devon and Hertfordshire. We know our area inside out and are proud of our genuine adoration of the city and everything it has to offer.
See all team members