Cromwell Grove, Brook Green, London, W6
1 bedroom flat/apartment
£515 per week
- 1
- 1
- 1
- Furnished
PICTURES AND VIDEOS









KEY FEATURES
- Bedroom
- Reception Room
- Kitchen
- Bathroom
- Separate Home Office
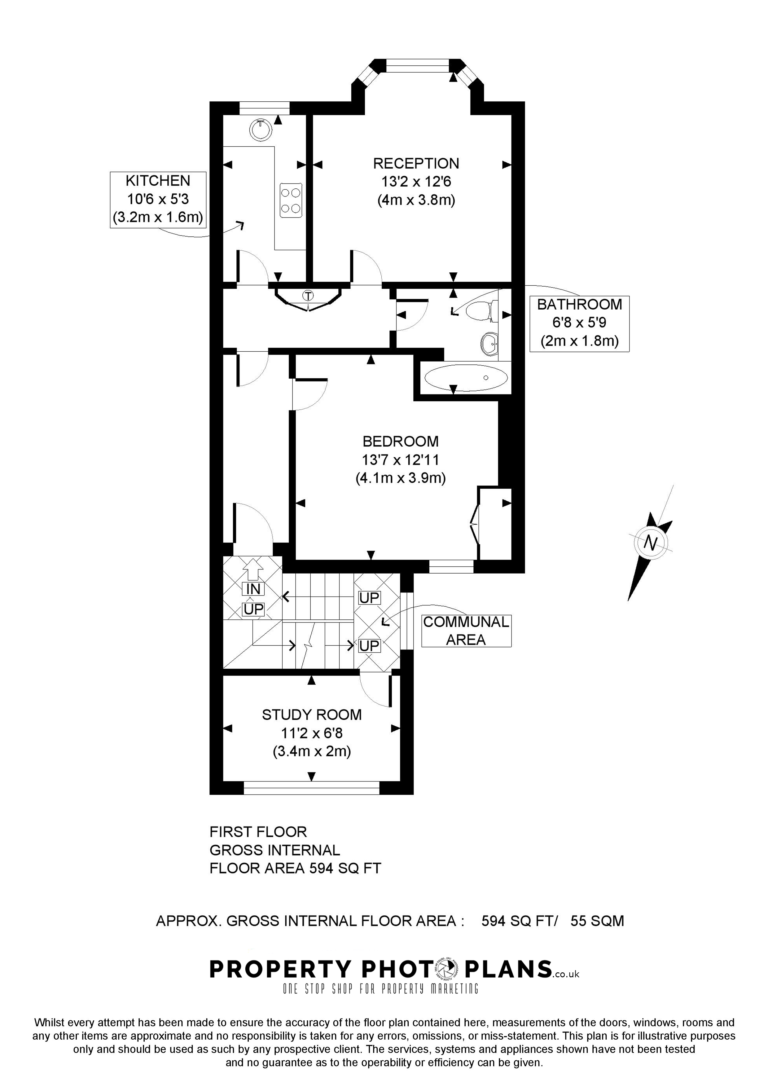
- 594 Sq Ft / 55 Sq M
- Deposit - 5 weeks' rent - £2,575 based on asking price of £515 per week
- Council Tax Band D
- EPC Rating Band C
KEY INFORMATION
- Deposit: Fixed £2,575.00
- Council Tax Band: D
Description
An extremely bright one bedroom flat on the first floor. The flat comprises of a reception room, kitchen, large bedroom with built in storage and bathroom. The property further benefits from a home office, accessed from the communal area which benefits from heating, internet connection and electricity (all utility costs to be covered by tenant). Cromwell Grove is a quiet residential road perfectly situated for the pubs and shops of Brook Green as well as the tube at Hammersmith and Shepherds Bush.
ACCESSIBILITY
- Unsuitable For Wheelchairs
Marketed by
Winkworth Hammersmith
Properties for rent in HammersmithArrange a Viewing
Fill in the form below to arrange your property viewing.
Meet the Team
The office has been established on the corner of Brook Green for many years, where the team have in excess of 30 years' experience in the area, just with Winkworth. Our longevity has led to a great deal of repeat business, selling and renting the same properties many times over.
See all team members