Skip to main content

MyWinkworth

Sold

Picture No. 10
Picture No. 03
Picture No. 08
Picture No. 09
Picture No. 02
Picture No. 14
Picture No. 13
Picture No. 04
Picture No. 01
Picture No. 05
Picture No. 07
Picture No. 06
Picture No. 11
6/14

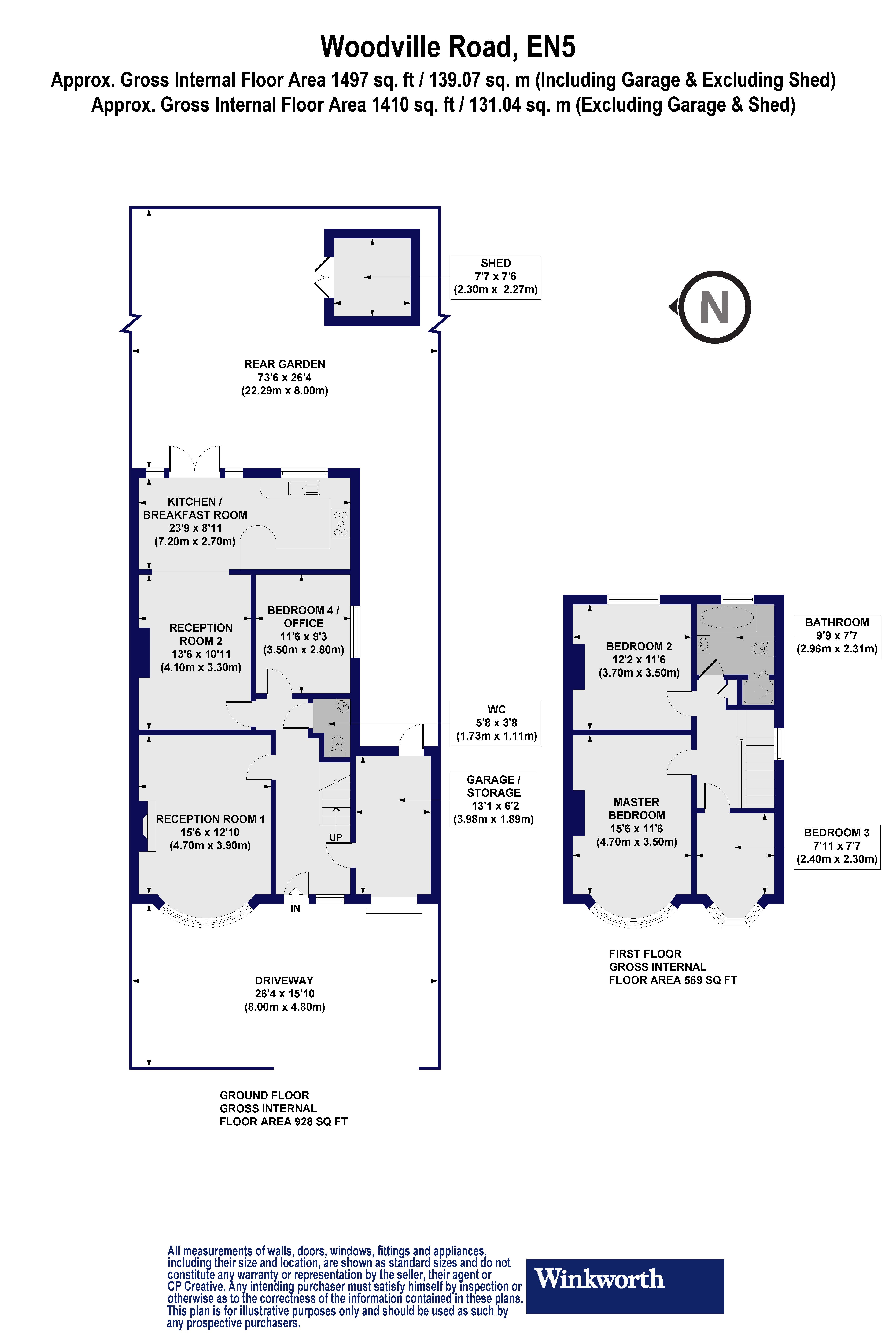
Woodville Road, New Barnet, EN5

3 bedroom house in New Barnet

Guide Price £925,000 Freehold

  • Bedrooms 3
  • Bathrooms 1
  • Reception rooms 1
  • Floorplan

PICTURES AND VIDEOS

KEY INFORMATION

  • Tenure: Freehold

Description

A link detached 1930's built three bedroom family house which has been extended on the ground floor across the rear and has further potential to extend into the roof space subject to usual consents.

The property has been the subject or improvements by the current owners both cosmetic, aesthetically and to the integrity of the house. The property is offered in very good decorative condition throughout. The accommodation is well appointed and includes two reception rooms with the rear opening to the modern fitted kitchen. In addition there is a separate utility room and a downstairs wc. On the first floor there are three bedrooms (two large doubles and a single) and a family bathroom.

Externally there is a well maintained rear garden of approximately 75ft and off street parking to the front.

Situated in this sought after residential road popular with families due to proximity to highly regarded schools, local and main shopping, transport connections (inc High Barnet tube station and New Barnet mainline station) as well as nearby recreational areas including Tudor Park and Hadley Woods.
Introduction text for the mortgage calculator

Mortgage Calculator

Fill in the details below to estimate your monthly repayments:

Approximate monthly repayment:

For more information, please contact Winkworth's mortgage partner, Trinity Financial, on +44 (0)20 7267 9399 and speak to the Trinity team.

Stamp Duty Calculator

Fill in the details below to estimate your stamp duty

The above calculator above is for general interest only and should not be relied upon

6/14
Picture No. 10
Picture No. 03
Picture No. 08
Picture No. 09
Picture No. 02
Picture No. 14
Picture No. 13
Picture No. 04
Picture No. 01
Picture No. 05
Picture No. 07
Picture No. 06
Picture No. 11

Meet the Team

Paul leads an impressive team who have been together for over 25 years, live locally, went to local schools and really understand the area. We have a deep understanding of the Barnet area and provide honest advice to our clients.

See all team members

Got a question about this property?

This site is protected by reCAPTCHA and the Google Privacy Policy and Terms of Service apply.

More Properties like this

Cockfosters Road, Hadley Wood, EN4

Offers in excess of £2,600,000 Freehold

Camlet Way, Hadley Common, EN4

£1,950,000 Freehold

Barnet Gate Lane, Arkley, Barnet, EN5

£1,900,000 Freehold

Barnet Gate Lane, Arkley, EN5

Offers in excess of £1,150,000 Freehold

Barnet Road, Arkley, EN5

£1,050,000 Freehold

Fitzjohn Avenue, High Barnet, EN5

Offers in excess of £875,000 Freehold

Online Valuations Aren’t Worth The Paper They’re Printed On.

When online valuations don’t give you the whole picture - try Winkworth’s expert service. Get a free property appraisal. Accurate valuations from our local property experts. No obligation to list with Winkworth. Choose a time convenient for you with our online booking system.

Fill in your details and someone will be in touch soon:

You have provisionally booked a valuation for . Please confirm your details below

We don't have date info available for this property, but if you fill in your details below, someone will be in touch to arrange a date soon

Please fill in the required fields below marked with *

This site is protected by reCAPTCHA and the Google Privacy Policy and Terms of Service apply.