Skip to main content

MyWinkworth

Sold

Picture No. 04
Picture No. 06
Picture No. 10
Picture No. 11
Picture No. 07
Picture No. 13
Picture No. 09
Picture No. 03
Picture No. 14
Picture No. 08
Picture No. 12
Picture No. 05
6/14

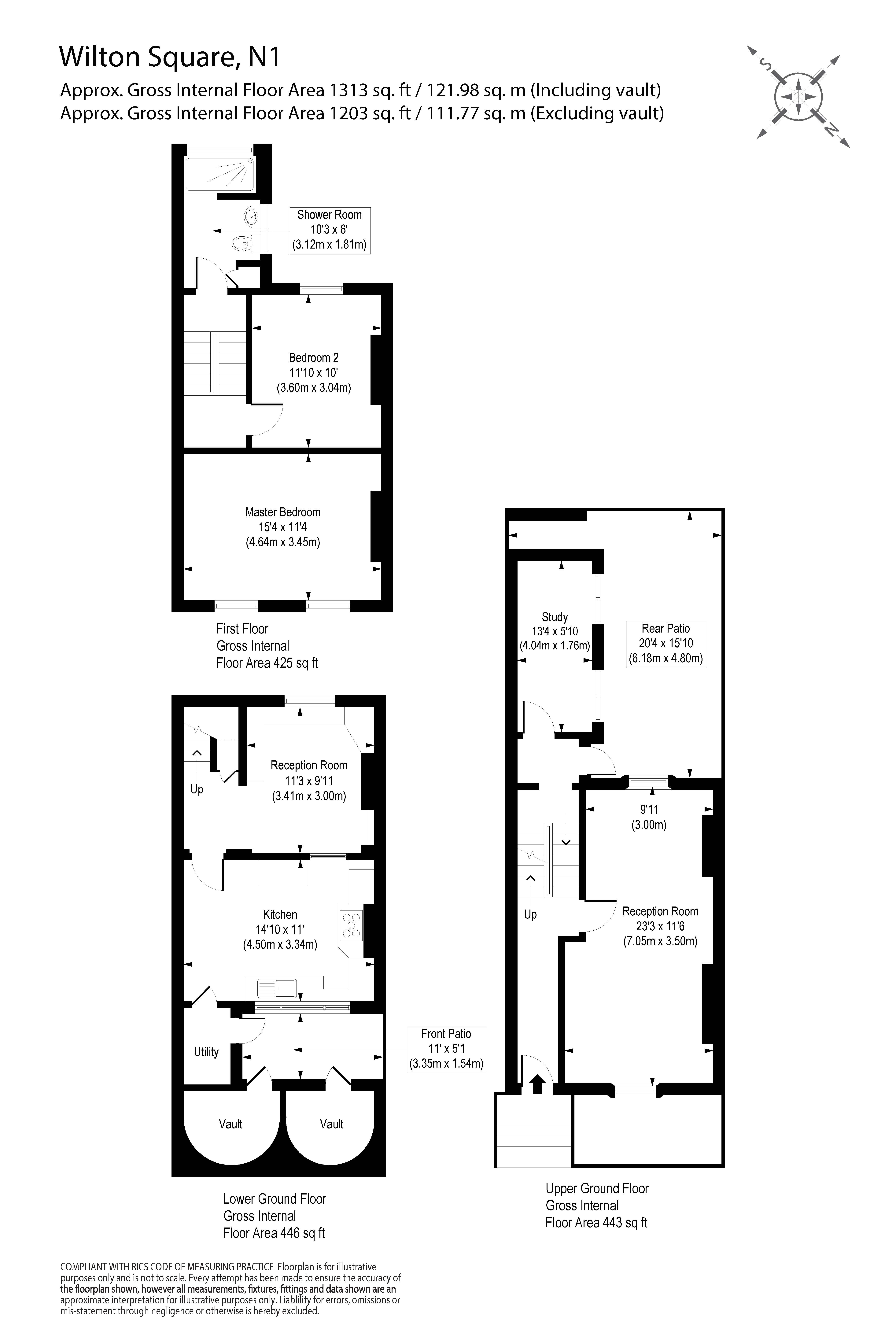
Wilton Square, Islington, London, N1

2 bedroom house in Islington

Offers in excess of £1,000,000 Freehold

  • Bedrooms 2
  • Bathrooms 1
  • Reception rooms 2
  • Floorplan

PICTURES AND VIDEOS

KEY INFORMATION

  • Tenure: Freehold

Description

A wonderful and unique opportunity to acquire a charming Grade II listed Victorian house spanning in excess of 1300sqft overlooking a peaceful garden square. The property requires modernisation throughout and presents the potential for a buyer to create a stunning home to their own taste over three floors. A wonderfully light double reception room occupies the raised ground floor whilst a sizable study is found on the half landing and additional reception room and separate kitchen is located on the lower floor.
Two well proportioned double bedrooms are located on the top floor, with a family sized bathroom on the half landing below. The house retains many period features throughout and further benefits from lots of storage including two under street vaults to the front.

Whilst situated on this wonderfully quiet garden square, the property is also within easy reach of the boutiques, bars and restaurants of Upper Street. The closest tube can be found at Angel station whilst Old Street and Essex road over ground are also within easy reach. Numerous bus routes provide easy access the City and West End whilst international travel is made easy from Kings Cross St Pancras.
Introduction text for the mortgage calculator

Mortgage Calculator

Fill in the details below to estimate your monthly repayments:

Approximate monthly repayment:

For more information, please contact Winkworth's mortgage partner, Trinity Financial, on +44 (0)20 7267 9399 and speak to the Trinity team.

Stamp Duty Calculator

Fill in the details below to estimate your stamp duty

The above calculator above is for general interest only and should not be relied upon

6/14
Picture No. 04
Picture No. 06
Picture No. 10
Picture No. 11
Picture No. 07
Picture No. 13
Picture No. 09
Picture No. 03
Picture No. 14
Picture No. 08
Picture No. 12
Picture No. 05

Meet the Team

Our knowledgeable, friendly team here at Winkworth Islington Estate Agents are on hand to help whether you're buying, selling or renting. While we favour the local approach, by working closely with our London and national network alongside dedicated Corporate Services, marketing and PR departments, we give our clients an unparalleled advantage, matching homes with buyers and tenants throughout London and the UK.

See all team members

Got a question about this property?

This site is protected by reCAPTCHA and the Google Privacy Policy and Terms of Service apply.

More Properties like this

Under Offer

Canonbury Park North, Islington, London, N1

£2,850,000 Freehold

Under Offer

Canonbury Park North, Islington, London, N1

£2,850,000 Freehold

Video Tour

Bingham Street, London, N1

£2,400,000 Freehold

Elysian Mews, London, N7

Offers in excess of £1,300,000 Freehold

Caledonian Road, London, N7

Offers in excess of £1,000,000 Freehold

Online Valuations Aren’t Worth The Paper They’re Printed On.

When online valuations don’t give you the whole picture - try Winkworth’s expert service. Get a free property appraisal. Accurate valuations from our local property experts. No obligation to list with Winkworth. Choose a time convenient for you with our online booking system.

Fill in your details and someone will be in touch soon:

You have provisionally booked a valuation for . Please confirm your details below

We don't have date info available for this property, but if you fill in your details below, someone will be in touch to arrange a date soon

Please fill in the required fields below marked with *

This site is protected by reCAPTCHA and the Google Privacy Policy and Terms of Service apply.