Skip to main content

MyWinkworth

Sold

Picture No.12
Picture No.01
Picture No.02
Picture No.03
Picture No.04
Picture No.05
Picture No.06
Picture No.07
Picture No.08
Picture No.13
Picture No.15
Picture No.14
Picture No.09
Picture No.11
Picture No.10
Picture No.19
Picture No.17
Picture No.18
Picture No.20
Picture No.21
Picture No.23
Picture No.24
Picture No.25
Picture No.16
6/14

Waldeck Road, London, N15

3 bedroom house in London

£795,000 Freehold

  • Bedrooms 3
  • Bathrooms 1
  • Reception rooms 2
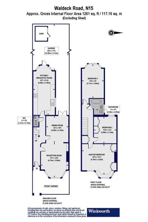
  • Floorplan

PICTURES AND VIDEOS

KEY FEATURES

  • 3 Bedrooms
  • Early Victorian House
  • Period Features
  • Neutral Decor Throughout
  • West facing Rear Garden
  • Close To Transport Links

KEY INFORMATION

  • Tenure: Freehold

Description

An elegant 3 bedroom Victorian family home spanning almost 1265 Sq. Ft of living accommodation. Chain free

Sole Agent.

Occupying approx 1261 sq ft this lovingly restored three double bedroom early Victorian family home has a 55ft West facing rear garden. Offering great proportions with an impressive through reception room, modern kitchen diner and ground floor cloakroom /WC. Period features include one working period fire place, antique oak floors throughout the ground floor, ceiling mouldings and centre roses.

Waldeck Road is one of a collection of sought after roads near to the award winning Downhills Park. It is also within close proximity of Ofsted rated "Outstanding" Belmont Infant and Primary School and St John Vianney Primary School, which is an outstanding Catholic school.

Within a short walk of Turnpike Lane Underground Station (Piccadilly Line Zone 3), Harringay Green Lanes and Wood Green shopping area which include independent local stores, cafes, restaurants and cinemas and a Tesco Express and a Sainsbury Local.



Winkworth.co.uk
On Line l In Office l Mobile

61 London offices including a local North London network covering: Islington-Highbury-Crouch End-Stroud Green-Harringay-Tottenham & Seven Sisters-Wood Green-Bounds Green-Highgate-Kentish Town-Hackney
Introduction text for the mortgage calculator

Mortgage Calculator

Fill in the details below to estimate your monthly repayments:

Approximate monthly repayment:

For more information, please contact Winkworth's mortgage partner, Trinity Financial, on +44 (0)20 7267 9399 and speak to the Trinity team.

Stamp Duty Calculator

Fill in the details below to estimate your stamp duty

The above calculator above is for general interest only and should not be relied upon

6/14
Picture No.12
Picture No.01
Picture No.02
Picture No.03
Picture No.04
Picture No.05
Picture No.06
Picture No.07
Picture No.08
Picture No.13
Picture No.15
Picture No.14
Picture No.09
Picture No.11
Picture No.10
Picture No.19
Picture No.17
Picture No.18
Picture No.20
Picture No.21
Picture No.23
Picture No.24
Picture No.25
Picture No.16

Meet the Team

At Winkworth Harringay Estate Agents, we have a comprehensive team of knowledgeable and personable property experts who are excited about the local area. So whether you're buying, selling, renting or letting or simply need some advice, pop into our office on Green Lanes for the experience and the local knowledge you need.

See all team members

Got a question about this property?

This site is protected by reCAPTCHA and the Google Privacy Policy and Terms of Service apply.

More Properties like this

New Instruction

Warham Road, London, N4

Guide Price £1,275,000 Freehold

Under Offer

Atterbury Road, Finsbury Park, N4

Guide Price £1,275,000 Freehold

Under Offer

Sydney Road, London, N8

Guide Price £1,150,000 Freehold

Jansons Road, London, N15

£1,100,000 Freehold

Under Offer

Hewitt Road, London, N8

Guide Price £1,100,000 Freehold

Under Offer

Lausanne Road, London, N8

Guide Price £1,050,000 Freehold

Online Valuations Aren’t Worth The Paper They’re Printed On.

When online valuations don’t give you the whole picture - try Winkworth’s expert service. Get a free property appraisal. Accurate valuations from our local property experts. No obligation to list with Winkworth. Choose a time convenient for you with our online booking system.

Fill in your details and someone will be in touch soon:

You have provisionally booked a valuation for . Please confirm your details below

We don't have date info available for this property, but if you fill in your details below, someone will be in touch to arrange a date soon

Please fill in the required fields below marked with *

This site is protected by reCAPTCHA and the Google Privacy Policy and Terms of Service apply.