Skip to main content

MyWinkworth

Sold

Exterior Front
Front Reception
Entrance Hallway
Rear Reception
Kitchen
Bathroom
Bedroom One
Garden
Bedroom Two
Bedroom Three
Exterior Front
6/14

The Chase, London, SW16

3 bedroom house in London

£599,950 Freehold

  • Bedrooms 3
  • Bathrooms 1
  • Reception rooms 2
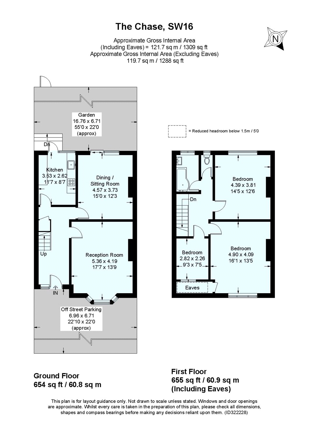
  • Dimensions 1288 sq ft
    119 sq m
  • Floorplan

PICTURES AND VIDEOS

KEY FEATURES

  • Terraced 1930's House
  • Quiet Street by Commons
  • Three Bedrooms
  • Bathroom & WC
  • Fitted Kitchen
  • Two Reception Rooms
  • Large Sunny Garden
  • Off street parking
  • Freehold
  • Sole Agent

KEY INFORMATION

  • Tenure: Freehold
  • Council Tax Band: E
  • Local Authority: London Borough Of Croydon

Description

Located in a very quiet and pretty tree-lined street in Norbury (off Green Lane) we are pleased to offer for sale this three bedroom terraced 1930's house with a large sunny garden and off-street parking.

Available exclusively through Winkworth, we are pleased to offer for sale this attractive terraced house on a quiet residential street. The house has a large rear garden with a sunny southerly aspect. On the ground floor there is a welcoming entrance hall, two reception rooms and a wide galley kitchen fitted with modern units. The kitchen and rear reception both lead directly on to the garden that is mainly laid to lawn. At the front there is a full width hard standing area providing off street parking for two cars. Upstairs there are three bedrooms (two doubles and a single) and a newly revamped bathroom and separate WC as well as access to a large loft with potential to convert (subject to usual consents)
The Chase is close to Streatham Common, the Rookery Gardens and Norbury recreation areas - popular with families, runners and dog owners. Nearby schools include St Joseph's and Kensington Avenue Primary and there are several large supermarkets including a large Sainsbury's and Lidl nearby. Norbury station runs a regular commuter service into Central London and is only a short walk from the property.

Location

Norbury/Streatham Common borders, close to the station and High Street.
Introduction text for the mortgage calculator

Mortgage Calculator

Fill in the details below to estimate your monthly repayments:

Approximate monthly repayment:

For more information, please contact Winkworth's mortgage partner, Trinity Financial, on +44 (0)20 7267 9399 and speak to the Trinity team.

Stamp Duty Calculator

Fill in the details below to estimate your stamp duty

The above calculator above is for general interest only and should not be relied upon

6/14
Exterior Front
Front Reception
Entrance Hallway
Rear Reception
Kitchen
Bathroom
Bedroom One
Garden
Bedroom Two
Bedroom Three
Exterior Front

Meet the Team

Our team at Winkworth Streatham Estate Agents are here to support and advise our customers when they need it most. We understand that buying, selling, letting or renting can be daunting and often emotionally meaningful. We are there, when it matters, to make the journey as stress-free as possible.

See all team members

Got a question about this property?

This site is protected by reCAPTCHA and the Google Privacy Policy and Terms of Service apply.

More Properties like this

Conyers Road, London, SW16

£1,450,000 Freehold

Hitherfield Road, London, SW16

Guide Price £1,400,000 Freehold

Mitcham Lane, London, SW16

£1,300,000 Freehold

Atkins Road, London, SW12

Guide Price £1,200,000 Freehold

Wavertree Road, London, SW2

Offers in excess of £1,125,000 Freehold

Gleneagle Road, London, SW16

£1,050,000 Freehold

Online Valuations Aren’t Worth The Paper They’re Printed On.

When online valuations don’t give you the whole picture - try Winkworth’s expert service. Get a free property appraisal. Accurate valuations from our local property experts. No obligation to list with Winkworth. Choose a time convenient for you with our online booking system.

Fill in your details and someone will be in touch soon:

You have provisionally booked a valuation for . Please confirm your details below

We don't have date info available for this property, but if you fill in your details below, someone will be in touch to arrange a date soon

Please fill in the required fields below marked with *

This site is protected by reCAPTCHA and the Google Privacy Policy and Terms of Service apply.