Skip to main content

MyWinkworth

Sold

Picture No. 07
Picture No. 11
Picture No. 02
Picture No. 03
Picture No. 05
Picture No. 04
Picture No. 08
Picture No. 06
Picture No. 09
Picture No. 10
Picture No. 12
6/14

St. Pauls Terrace, London, SE17

1 bedroom flat/apartment in London

£299,950 Leasehold

  • Bedrooms 1
  • Bathrooms 1
  • Reception rooms 1
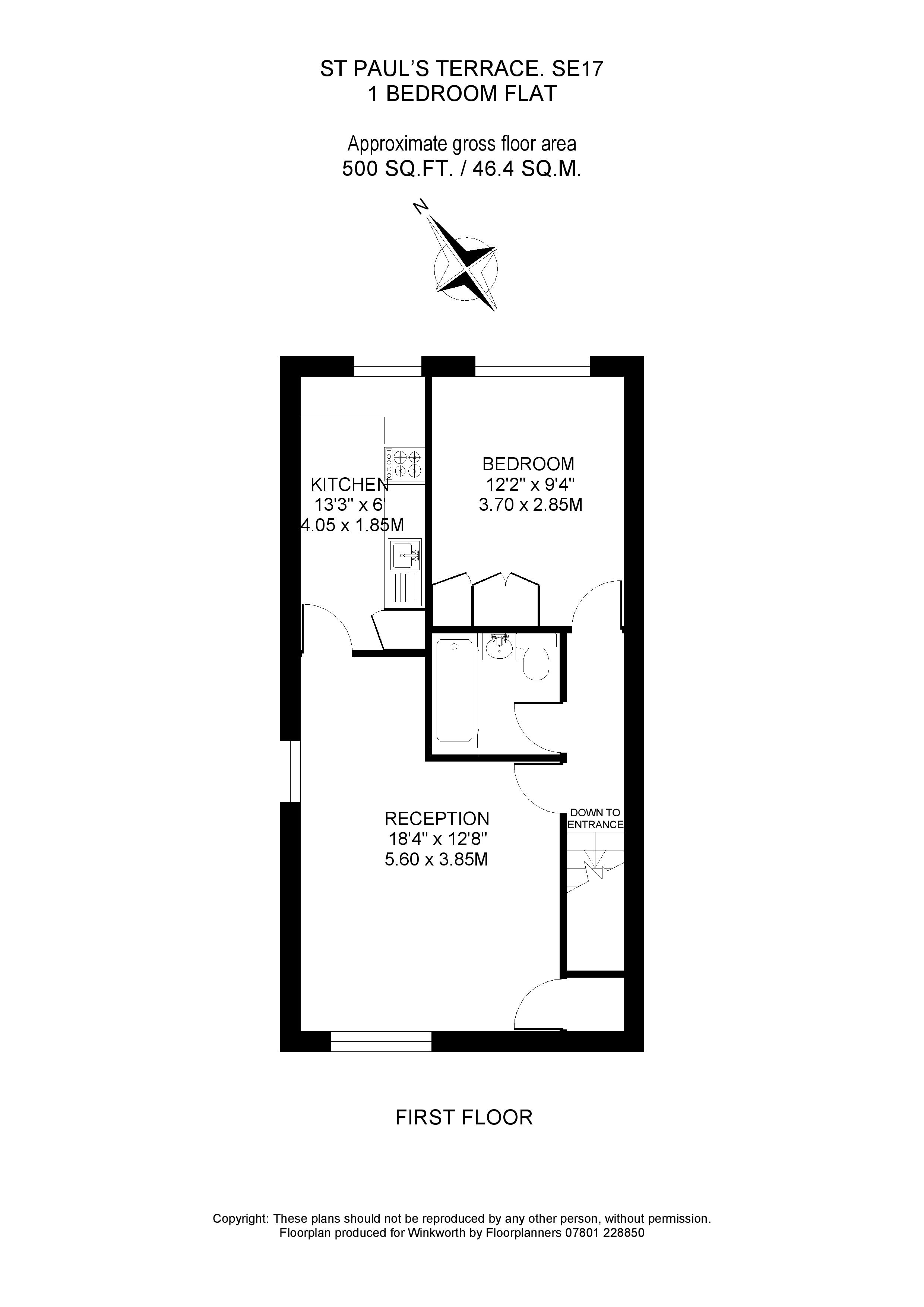
  • Floorplan

PICTURES AND VIDEOS

KEY INFORMATION

  • Tenure: Leasehold
  • Council Tax Band: B
  • Local Authority: Southwark

Description

A fantastic opportunity to acquire a well laid out one-bedroom apartment with a long lease of 960 years.

The flat is on the first floor of this purpose-built, first-time buyer starter home. The flat was built in the late 1980s and has its own private front door.
A handy space for hanging coats can be found on entry to the flat before the stairs. At the top of the stairs, a generous-sized reception room can be found. The space provided will occupy two sofas, a coffee table and a dining table for two.
The kitchen has an ample amount of storage and plenty of worktop space. A large window can be found at the end which draws a substantial amount of light in.
The bathroom houses a bath with an overhead electric shower, a wash basin and a W.C. The bathroom is tiled on all the walls and a vanity cabinet can be found above the sink.
The bedroom is also carpeted and has a built-in wardrobe with space enough for a large double bed.
Lastly, a parking bay can be found opposite the flat.

Location

St. Paul’s Terrace is situated off Westcott Road. St. Paul’s Terrace is only a short walk from Kennington Underground Station and the delights of Kennington Park are equally as convenient. Kennington Road is a stone's throw away and provides access to an abundance of local amenities such as restaurants and cafes.
Introduction text for the mortgage calculator

Mortgage Calculator

Fill in the details below to estimate your monthly repayments:

Approximate monthly repayment:

For more information, please contact Winkworth's mortgage partner, Trinity Financial, on +44 (0)20 7267 9399 and speak to the Trinity team.

Stamp Duty Calculator

Fill in the details below to estimate your stamp duty

The above calculator above is for general interest only and should not be relied upon

6/14
Picture No. 07
Picture No. 11
Picture No. 02
Picture No. 03
Picture No. 05
Picture No. 04
Picture No. 08
Picture No. 06
Picture No. 09
Picture No. 10
Picture No. 12

Meet the Team

Our team at Winkworth Kennington Estate Agents are here to support and advise our customers when they need it most. We understand that buying, selling, letting or renting can be daunting and often emotionally meaningful. We are there, when it matters, to make the journey as stress-free as possible.

See all team members

Got a question about this property?

This site is protected by reCAPTCHA and the Google Privacy Policy and Terms of Service apply.

More Properties like this

Video Tour

Rennie Court, 11 Upper Ground, London, SE1

£2,380,000 Leasehold

Video Tour

Colnbrook Street, London, SE1

£1,100,000 Share of Freehold

Video Tour

Under Offer

Groveway, London, SW9

£895,000 Leasehold

Video Tour

Stannary Street, London, SE11

Offers in excess of £850,000 Leasehold

Video Tour

Under Offer

Lawn Lane, London, SW8

£795,000 Share of Freehold

Video Tour

Under Offer

McAuley Close, London, SE1

£769,950 Leasehold

Online Valuations Aren’t Worth The Paper They’re Printed On.

When online valuations don’t give you the whole picture - try Winkworth’s expert service. Get a free property appraisal. Accurate valuations from our local property experts. No obligation to list with Winkworth. Choose a time convenient for you with our online booking system.

Fill in your details and someone will be in touch soon:

You have provisionally booked a valuation for . Please confirm your details below

We don't have date info available for this property, but if you fill in your details below, someone will be in touch to arrange a date soon

Please fill in the required fields below marked with *

This site is protected by reCAPTCHA and the Google Privacy Policy and Terms of Service apply.