Skip to main content

MyWinkworth

Sold

Picture No. 01
Picture No. 02
Picture No. 03
Picture No. 04
Picture No. 05
Picture No. 06
Picture No. 07
Picture No. 08
Picture No. 09
Picture No. 10
EPC Rating Graph
Picture No. 12
Picture No. 13
Picture No. 14
6/14

Southfields Road, Putney, SW18

4 bedroom house in Putney

£1,295,000 Freehold

  • Bedrooms 4
  • Bathrooms 2
  • Reception rooms 1
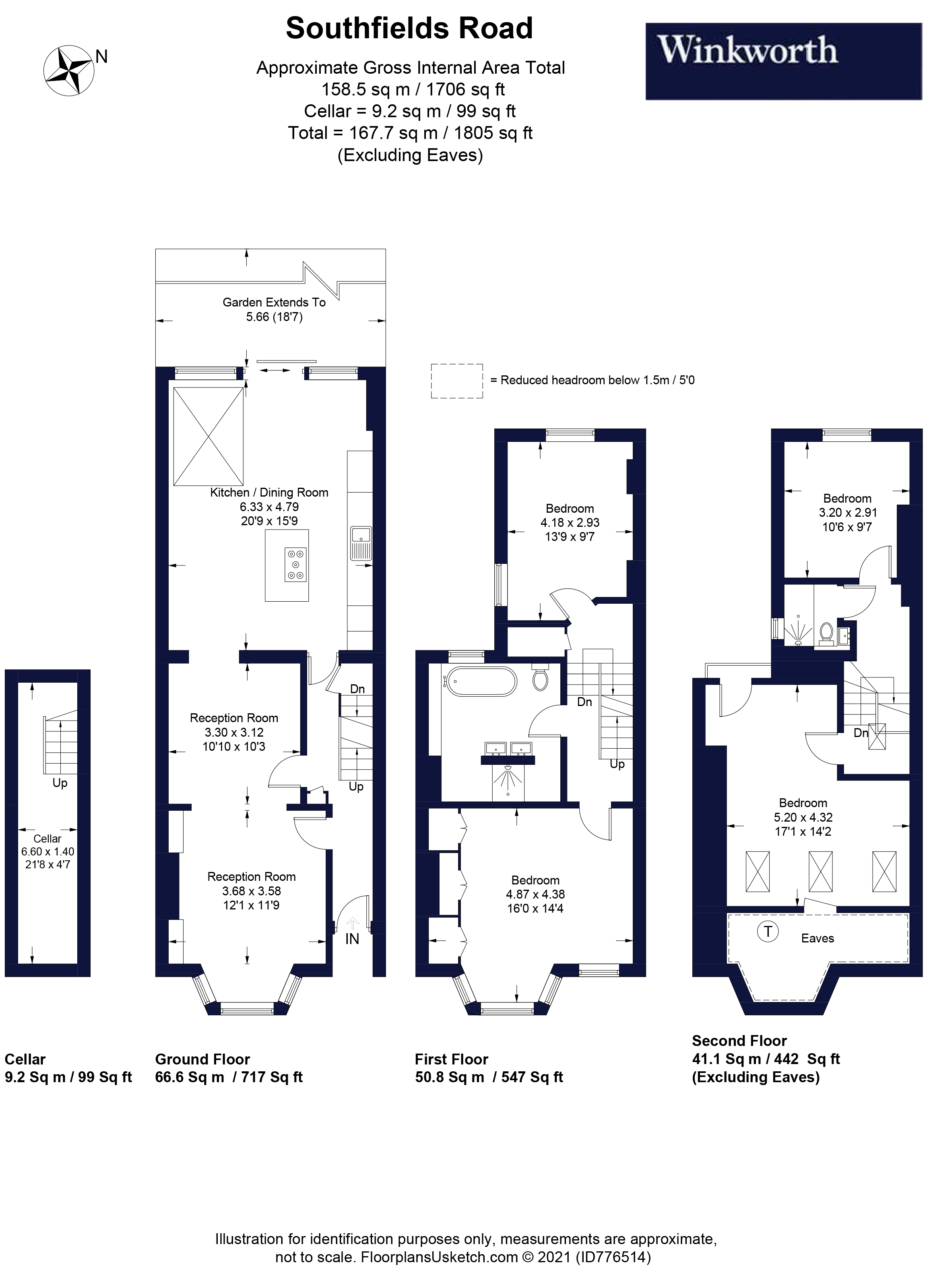
  • Dimensions 1805 sq ft
    167 sq m
  • Floorplan

PICTURES AND VIDEOS

KEY FEATURES

  • PERIOD FAMILY HOME
  • IMMACULATELY PRESENTED
  • OPEN PLAN KITCHEN/DINING ROOM
  • DOUBLE RECEPTION ROOM
  • CELLAR SPACE
  • FOUR DOUBLE BEDROOMS
  • TWO BATHROOMS
  • POPULAR LOCATION
  • PRIVATE GARDEN
  • 1,805 SQ. FT.

KEY INFORMATION

  • Tenure: Freehold

Description

An immaculate four double bedroom period home in this popular location in Putney. Having been fully extended and completely refurbished by the current owners the property combines original character features with modern contemporary design.

This superb period family home provides over 1,800 sq. ft. and is offered to the market in superb condition. Having been fully extended and sensitively renovated by the current owners, the contemporary accommodation is based over three floors and is comprised of bright and spacious rooms throughout, all finished to the highest of standards.

Of particular note is the impressive open plan kitchen / dining room, complete with central island and sliding doors out onto the patio garden. A spacious double reception room at the font of the house benefits from plantation shutters and retains a feature fireplace and original period cornicing. On the upper floors, four generous double bedrooms are again presented in fantastic condition. These are serviced by two bathrooms. The main family bathroom is stunning, providing both bath and shower as well as his and hers sinks. This property also benefits from cellar space.

Location

Southfields Road is well located for access to Putney, Southfields and central Wandsworth, with East Putney and Southfields Underground stations (District Line), Putney and Wandsworth Town mainline (into Clapham Junction and Waterloo) all providing excellent transport links into London. Furthermore, there are plenty of shops, bars and restaurants within easy reach as well as some outstanding local schools.
Introduction text for the mortgage calculator

Mortgage Calculator

Fill in the details below to estimate your monthly repayments:

Approximate monthly repayment:

For more information, please contact Winkworth's mortgage partner, Trinity Financial, on +44 (0)20 7267 9399 and speak to the Trinity team.

Stamp Duty Calculator

Fill in the details below to estimate your stamp duty

The above calculator above is for general interest only and should not be relied upon

6/14
Picture No. 01
Picture No. 02
Picture No. 03
Picture No. 04
Picture No. 05
Picture No. 06
Picture No. 07
Picture No. 08
Picture No. 09
Picture No. 10
EPC Rating Graph
Picture No. 12
Picture No. 13
Picture No. 14

Meet the Team

Our team at Winkworth Putney Estate Agents are here to support and advise our customers when they need it most. We understand that buying, selling, letting or renting can be daunting and often emotionally meaningful. We are there, when it matters, to make the journey as stress-free as possible.

See all team members

Got a question about this property?

This site is protected by reCAPTCHA and the Google Privacy Policy and Terms of Service apply.

More Properties like this

Under Offer

Gwendolen Avenue, London, SW15

£7,500,000 Freehold

Under Offer

Holmbush Road, London, SW15

Guide Price £5,850,000 Freehold

Video Tour

Under Offer

Hazlewell Road, London, SW15

Guide Price £4,500,000 Freehold

Under Offer

Larpent Avenue, London, SW15

Guide Price £4,500,000 Freehold

Under Offer

Gwendolen Avenue, London, SW15

£3,950,000 Freehold

Video Tour

Putney Park Avenue, London, SW15

Guide Price £3,850,000 Freehold

Online Valuations Aren’t Worth The Paper They’re Printed On.

When online valuations don’t give you the whole picture - try Winkworth’s expert service. Get a free property appraisal. Accurate valuations from our local property experts. No obligation to list with Winkworth. Choose a time convenient for you with our online booking system.

Fill in your details and someone will be in touch soon:

You have provisionally booked a valuation for . Please confirm your details below

We don't have date info available for this property, but if you fill in your details below, someone will be in touch to arrange a date soon

Please fill in the required fields below marked with *

This site is protected by reCAPTCHA and the Google Privacy Policy and Terms of Service apply.