New Instruction
Rigeley Road, London, NW10
3 bedroom house in London
£795,000 Freehold
- 3
- 2
- 1
PICTURES AND VIDEOS











KEY FEATURES
- Charming Victorian home
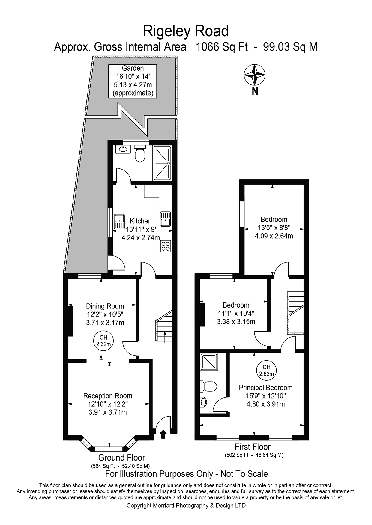
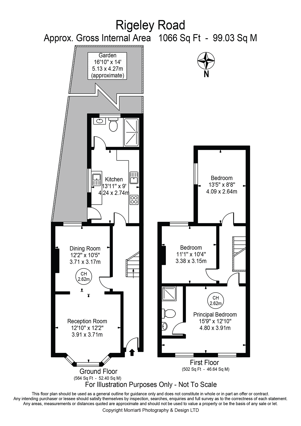
- 1,066 sq ft
- Original period features
- Two spacious receptions
- Private garden access
- Master with ensuite
- Loft expansion potential
- Prime location
- EPC Rating C
KEY INFORMATION
- Tenure: Freehold
- Council Tax Band: E
Description
Upstairs, a generous landing leads to three well-proportioned bedrooms, including a master with an ensuite bathroom. The loft provides ample storage space and presents an excellent opportunity for expansion (STPP).
Nestled on a quiet residential street, the property is within easy walking distance of both Kensal Green and Willesden Junction Tube and Train stations, as well as a great selection of trendy pubs, shops, and restaurants. It also falls within the catchment area of some of the area’s most sought-after and highly regarded schools.
Marketed by
Winkworth North Kensington
Properties for sale in North KensingtonArrange a Viewing
Fill in the form below to arrange your property viewing.
Mortgage Calculator
Fill in the details below to estimate your monthly repayments:
Approximate monthly repayment:
For more information, please contact Winkworth's mortgage partner, Trinity Financial, on +44 (0)20 7267 9399 and speak to the Trinity team.
Stamp Duty Calculator
Fill in the details below to estimate your stamp duty
The above calculator above is for general interest only and should not be relied upon
Meet the Team
At Winkworth North Kensington Estate Agents, we've been using our local knowledge and expertise to help people find homes in the Ladbroke Grove area since 1998. Our office is just moments from Ladbroke Grove tube station, close to Portobello Market and the wonderful period houses of Notting Hill. Whether you're buying, selling, renting, letting or simply need a bit of advice, we always promise a warm welcome. But don't just take our word for it; pop in and find out for yourself.
See all team members