Skip to main content

MyWinkworth

Sold

Picture No. 03
Picture No. 18
Picture No. 10
Picture No. 22
Picture No. 11
Picture No. 04
Picture No. 09
Picture No. 19
Picture No. 20
Picture No. 21
Picture No. 05
Picture No. 06
Picture No. 15
Picture No. 12
Picture No. 14
Picture No. 16
Picture No. 08
Picture No. 17
Picture No. 07
6/14

Ranelagh Road, London, N17

1 bedroom flat/apartment in London

£395,000 Leasehold

  • Bedrooms 1
  • Bathrooms 1
  • Reception rooms 1
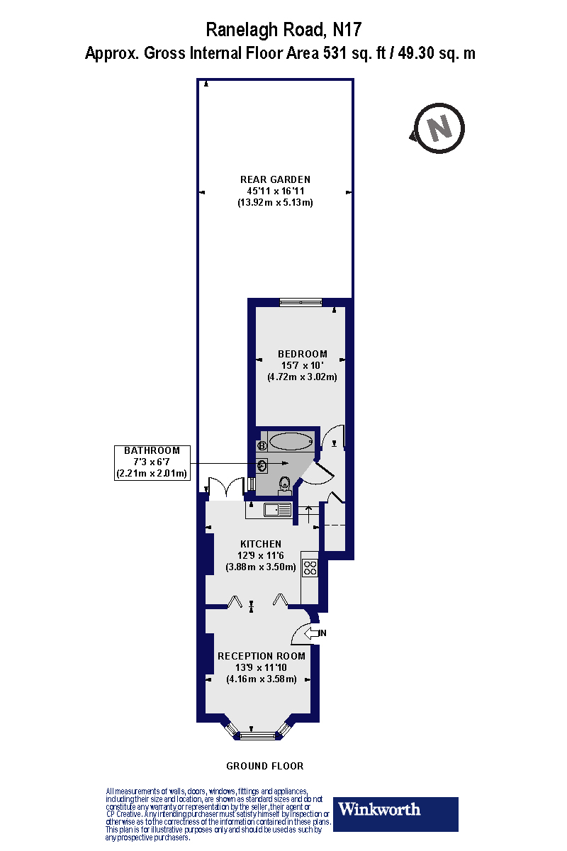
  • Floorplan

PICTURES AND VIDEOS

KEY FEATURES

  • One Bedroom
  • One Reception
  • Open Plan Living
  • Modern Bathroom
  • Period Features
  • Long Lease
  • Private East Facing Garden
  • Potential To Extend (STPP)

KEY INFORMATION

  • Tenure: Leasehold

Description

This inviting one-bedroom garden flat is situated on a sought-after street, just off Philip Lane N17.

Sole Agents.

Nestled on a tranquil street in South Tottenham, this delightful one-bedroom ground floor Victorian conversion boasts original features and a spacious East-facing private garden spanning approximately 45 feet. With 531 Sq.ft of living space, this apartment exudes charm and offers a tastefully decorated first home with neutral tones throughout.

Step through the front door into an inviting and open space, adorned with a dreamy colour palette. The flat has been thoughtfully opened up and remodelled, creating an incredibly social living arrangement. At the front, a formal reception room features original wooden floors, a period fireplace, and intricate ceiling mouldings. The large bay window floods the space with natural light, making it bright and welcoming.

Moving though the concertina doors, the central kitchen is a standout feature of this flat, redefining the concept of the "heart of the home". This open and inviting space, with an industrial feel, boasts wooden worktops, a stainless-steel splashback on the cooker, cleverly placed shelving, and ample room for dining, making it perfect for entertaining guests.

Moving towards the rear, you'll find the generously sized double bedroom overlooking the tranquil rear garden, strategically positioned for privacy and comfort. Completing the interior of the flat is a modern family bathroom adorned with subway tiles and a sleek three-piece suite.

Step outside to discover the sunny East-facing rear garden, a haven for outdoor entertaining or cultivating a green oasis. With its sprawling lawn area and a sun-drenched patio at the rear, spanning approximately 45 feet, it's the perfect retreat for relaxation and enjoyment.
Nestled on Ranelagh Road, this location offers the best of both worlds. Minutes away, you'll find the lush expanses of Downhills Park and Lordship Rec for a breath of fresh air, while the renowned Walthamstow Wetlands, Europe's largest, beckon for leisurely strolls or cycling adventures.

For city-bound journeys, Victoria and Piccadilly Line access is a mere 10 minutes away, with Tottenham Hale Station offering swift connections to Stansted Airport, Stratford, and London Liverpool Street.

Seeking village vibes? Look no further. Whether it's the charm of Stoke Newington, the allure of Clapton, or the quaintness of Crouch End and Highgate, all are within easy reach. With an array of shopping and dining options along Tottenham High Road, Green Lanes Harringay, Stoke Newington Church Street, Stamford Hill, and Crouch End, convenience is at your doorstep.

Public transport is excellent, complemented by the Cycle Superhighway (CS1) providing a fast and safe route from Tottenham High Road to Liverpool Street.

South Tottenham is a burgeoning hub of creativity, boasting attractive housing options and abundant green spaces, making it a sought-after property hotspot. Explore the vibrant West Green Road with its bustling eateries like Pasero, Café Lemon, and True Craft pub and restaurant.

Nearby, Downhills Park offers relaxation with its popular cafés, while Philip Lane beckons with The Palm pub and restaurant and With Milk coffee shop. Tottenham Green Leisure Centre and the Bernie Grant Arts Centre add to the local charm.

Outdoor enthusiasts will delight in the proximity to the Lea Valley's verdant expanse, offering miles of walking, cycling, and kayaking opportunities, alongside the Olympic water centre.


Please contact the Sales department at Winkworth Harringay office to arrange an appointment to view 020 8800 5151 - [email protected]

Winkworth.co.uk

Your local independently owned property agency with a network of 61 London offices.

Est 1835

Follow us on Instagram - @winkworthharringay
Introduction text for the mortgage calculator

Mortgage Calculator

Fill in the details below to estimate your monthly repayments:

Approximate monthly repayment:

For more information, please contact Winkworth's mortgage partner, Trinity Financial, on +44 (0)20 7267 9399 and speak to the Trinity team.

Stamp Duty Calculator

Fill in the details below to estimate your stamp duty

The above calculator above is for general interest only and should not be relied upon

6/14
Picture No. 03
Picture No. 18
Picture No. 10
Picture No. 22
Picture No. 11
Picture No. 04
Picture No. 09
Picture No. 19
Picture No. 20
Picture No. 21
Picture No. 05
Picture No. 06
Picture No. 15
Picture No. 12
Picture No. 14
Picture No. 16
Picture No. 08
Picture No. 17
Picture No. 07

Meet the Team

At Winkworth Harringay Estate Agents, we have a comprehensive team of knowledgeable and personable property experts who are excited about the local area. So whether you're buying, selling, renting or letting or simply need some advice, pop into our office on Green Lanes for the experience and the local knowledge you need.

See all team members

Got a question about this property?

This site is protected by reCAPTCHA and the Google Privacy Policy and Terms of Service apply.

More Properties like this

Under Offer

Green Lanes, London, N4

£750,000 Share of Freehold

Under Offer

Burgoyne Road, London, N4

Guide Price £735,000 Share of Freehold

Under Offer

Sydney Road, London, N8

Guide Price £725,000 Share of Freehold

Lausanne Road, London, N8

£675,000 Leasehold

Under Offer

Duckett Road, London, Haringey, N4

Guide Price £635,000 Share of Freehold

Hermitage Road, London, N4

£625,000 Leasehold

Online Valuations Aren’t Worth The Paper They’re Printed On.

When online valuations don’t give you the whole picture - try Winkworth’s expert service. Get a free property appraisal. Accurate valuations from our local property experts. No obligation to list with Winkworth. Choose a time convenient for you with our online booking system.

Fill in your details and someone will be in touch soon:

You have provisionally booked a valuation for . Please confirm your details below

We don't have date info available for this property, but if you fill in your details below, someone will be in touch to arrange a date soon

Please fill in the required fields below marked with *

This site is protected by reCAPTCHA and the Google Privacy Policy and Terms of Service apply.