Skip to main content

MyWinkworth

Sold

Picture No. 08
Picture No. 09
Picture No. 10
Picture No. 11
Picture No. 03
Picture No. 04
Picture No. 06
Picture No. 07
6/14

Priestfield Road, London, SE23

3 bedroom house in London

Guide Price £575,000 Freehold

  • Bedrooms 3
  • Bathrooms 1
  • Reception rooms 2
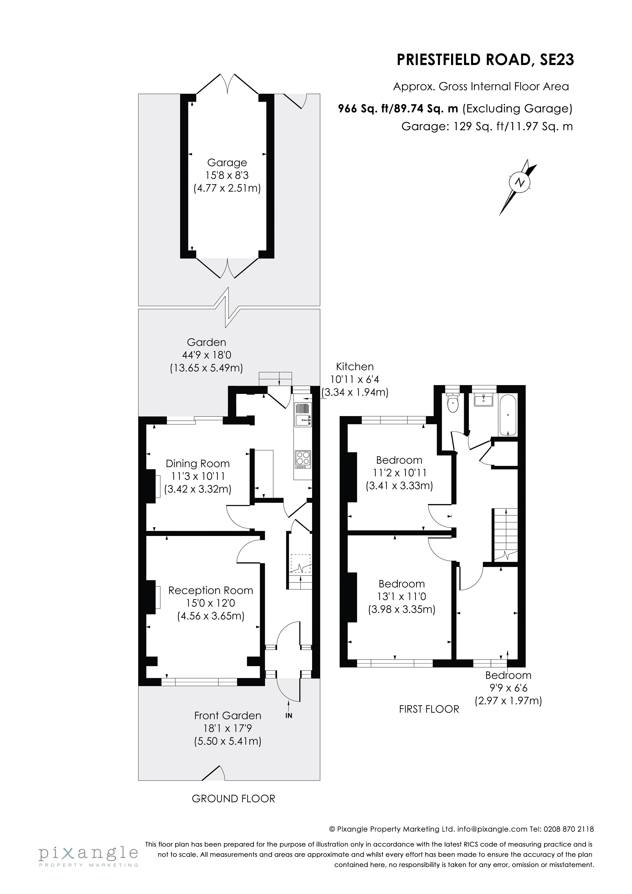
  • Dimensions 966 sq ft
    89 sq m
  • Floorplan

PICTURES AND VIDEOS

KEY FEATURES

  • Three Bedrooms
  • Garage
  • Southeast-facing garden
  • Sought-after neighbourhood
  • Great potential
  • Chain free
  • 966 Sq ft / 90 Sqm
  • Forest Hill, Zone 3

KEY INFORMATION

  • Tenure: Freehold
  • Council Tax Band: D
  • Local Authority: Lewisham

Description

Three bedroom, family house in a sought-after road of Forest Hill, with southeast-facing garden and garage. Offered chain free, with great potential to expand and modernise.

**Guide Price: £575,000 - £600,000**

Introducing this fantastic family home set within a highly sought after quiet residential road in Forest Hill.

The accommodation on offer comprises, private entrance, entrance hall, 15' reception room, 11'3 dining room and fitted kitchen to the ground floor.

To the first floor there is a landing giving access to two double bedrooms and one single room, furthermore there is a bathroom and separate W.C.

Externally, there is access to a beautiful rear garden and garage accessed via an access road.

The property is in need of modernisation throughout but offers great potential with others on the road adding extensions and loft conversions subject to planning.

The property is offered chain free for a quick sale and internal viewing is highly recommended.

Please call Winkworth to arrange an appointment to view.

Location

Located on Priestfield Road within close proximity to Forest Hill and Sydenham mainline stations and Overground.

Locally there is a vast array of cafes, vibrant bars, independent restaurants and local boutique shops. Within 0.4miles is Kilmorie Primary School Ofsted Outstanding and there is a superb range of local and independent primary and secondary schools in the area. Close by there is a choice of green spaces including Horniman Museum & Gardens and Mayow Park.
Introduction text for the mortgage calculator

Mortgage Calculator

Fill in the details below to estimate your monthly repayments:

Approximate monthly repayment:

For more information, please contact Winkworth's mortgage partner, Trinity Financial, on +44 (0)20 7267 9399 and speak to the Trinity team.

Stamp Duty Calculator

Fill in the details below to estimate your stamp duty

The above calculator above is for general interest only and should not be relied upon

6/14
Picture No. 08
Picture No. 09
Picture No. 10
Picture No. 11
Picture No. 03
Picture No. 04
Picture No. 06
Picture No. 07

Meet the Team

Our team at Winkworth Forest Hill Estate Agents are here to support and advise our customers when they need it most. We understand that buying, selling, letting or renting can be daunting and often emotionally meaningful. We are there, when it matters, to make the journey as stress-free as possible.

See all team members

Got a question about this property?

This site is protected by reCAPTCHA and the Google Privacy Policy and Terms of Service apply.

More Properties like this

Sydenham Hill, Sydenham, SE26

Guide Price £2,750,000 Freehold

Devonshire Road, London, SE23

£1,500,000 Freehold

Under Offer

Benson Road, London, SE23

£1,400,000 Freehold

Virtual Tour

Under Offer

Allenby Road, London, SE23

Guide Price £1,400,000 Freehold

Under Offer

Wood Vale, London, SE23

Guide Price £1,100,000 Freehold

Carholme Road, London, SE23

£1,100,000 Freehold

Online Valuations Aren’t Worth The Paper They’re Printed On.

When online valuations don’t give you the whole picture - try Winkworth’s expert service. Get a free property appraisal. Accurate valuations from our local property experts. No obligation to list with Winkworth. Choose a time convenient for you with our online booking system.

Fill in your details and someone will be in touch soon:

You have provisionally booked a valuation for . Please confirm your details below

We don't have date info available for this property, but if you fill in your details below, someone will be in touch to arrange a date soon

Please fill in the required fields below marked with *

This site is protected by reCAPTCHA and the Google Privacy Policy and Terms of Service apply.