New Instruction
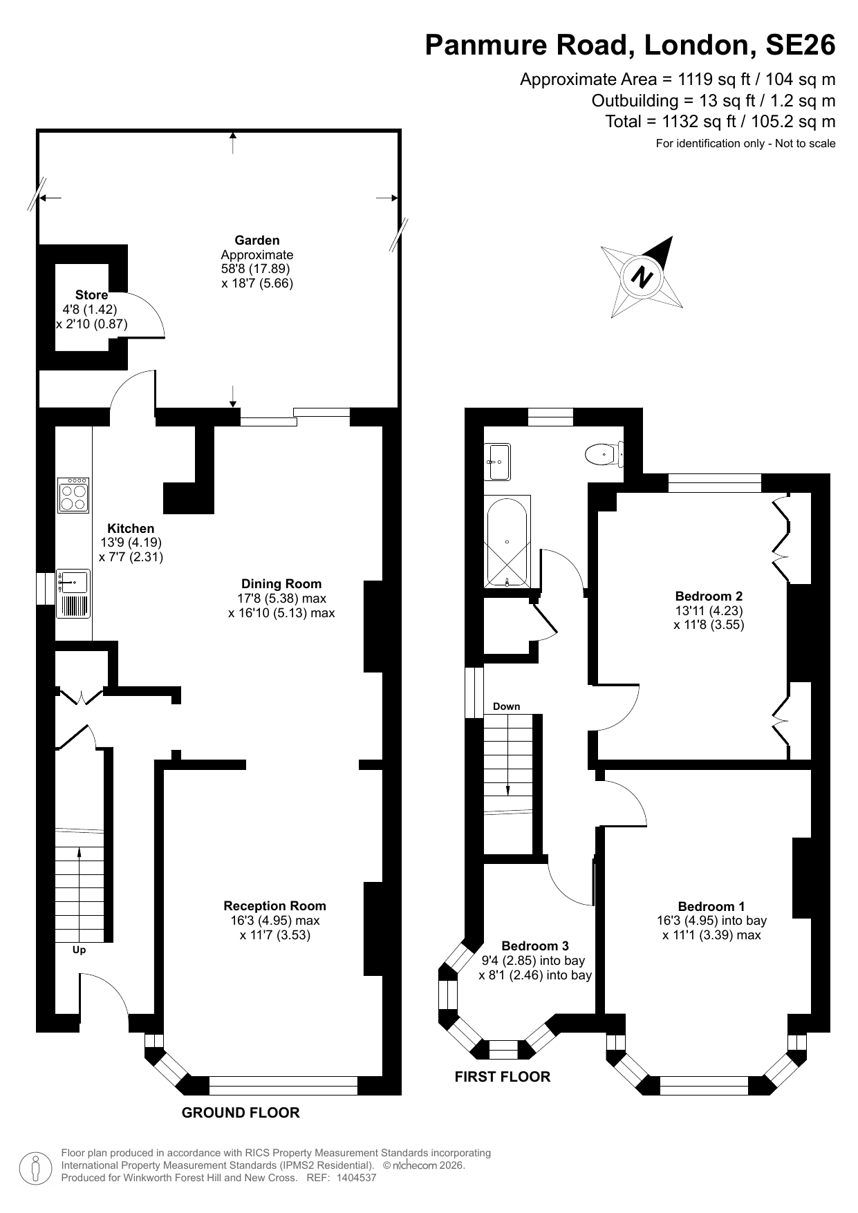
Panmure Road, London, SE26
3 bedroom house in London
£850,000 Freehold
- 3
- 1
- 2
-
119 sq ft
11 sq m -
PICTURES AND VIDEOS
KEY INFORMATION
- Tenure: Freehold
Description
This attractive Three bedroom end of terrace house is ideally positioned on the popular Panmure Road, offering well-balanced accommodation and a wonderful sense of space and natural light throughout.
The property features a bright and practical layout, with generous living areas well suited to both everyday living and entertaining. As an end-of-terrace home, it further benefits from side access, increased privacy and additional natural light, enhancing the overall feel of the house.
Upstairs, there are three well-proportioned bedrooms, making the property ideal for families, first-time buyers or those seeking extra space for home working. There is also scope to further enhance and personalise the property, subject to planning permission.
Panmure Road is a quiet residential street, well located for local amenities, highly regarded schools, green spaces and excellent transport links, offering easy access into central London while retaining a strong community atmosphere.
Marketed by
Winkworth Forest Hill
Properties for sale in Forest HillArrange a Viewing
Fill in the form below to arrange your property viewing.
Mortgage Calculator
Fill in the details below to estimate your monthly repayments:
Approximate monthly repayment:
For more information, please contact Winkworth's mortgage partner, Trinity Financial, on +44 (0)20 7267 9399 and speak to the Trinity team.
Stamp Duty Calculator
Fill in the details below to estimate your stamp duty
The above calculator above is for general interest only and should not be relied upon
Meet the Team
Our team at Winkworth Forest Hill Estate Agents are here to support and advise our customers when they need it most. We understand that buying, selling, letting or renting can be daunting and often emotionally meaningful. We are there, when it matters, to make the journey as stress-free as possible.
See all team members