Skip to main content

MyWinkworth

Picture No. 25
Picture No. 20
Picture No. 17
Picture No. 27
Picture No. 22
Picture No. 23
Picture No. 19
Picture No. 26
Picture No. 18
Picture No. 21
Picture No. 24
Picture No. 28
6/14

Newington Green Mansions, Green Lanes, London, N16

2 bedroom flat/apartment in Green Lanes

Offers in excess of £475,000 Leasehold

  • Bedrooms 2
  • Bathrooms 1
  • Reception rooms 1
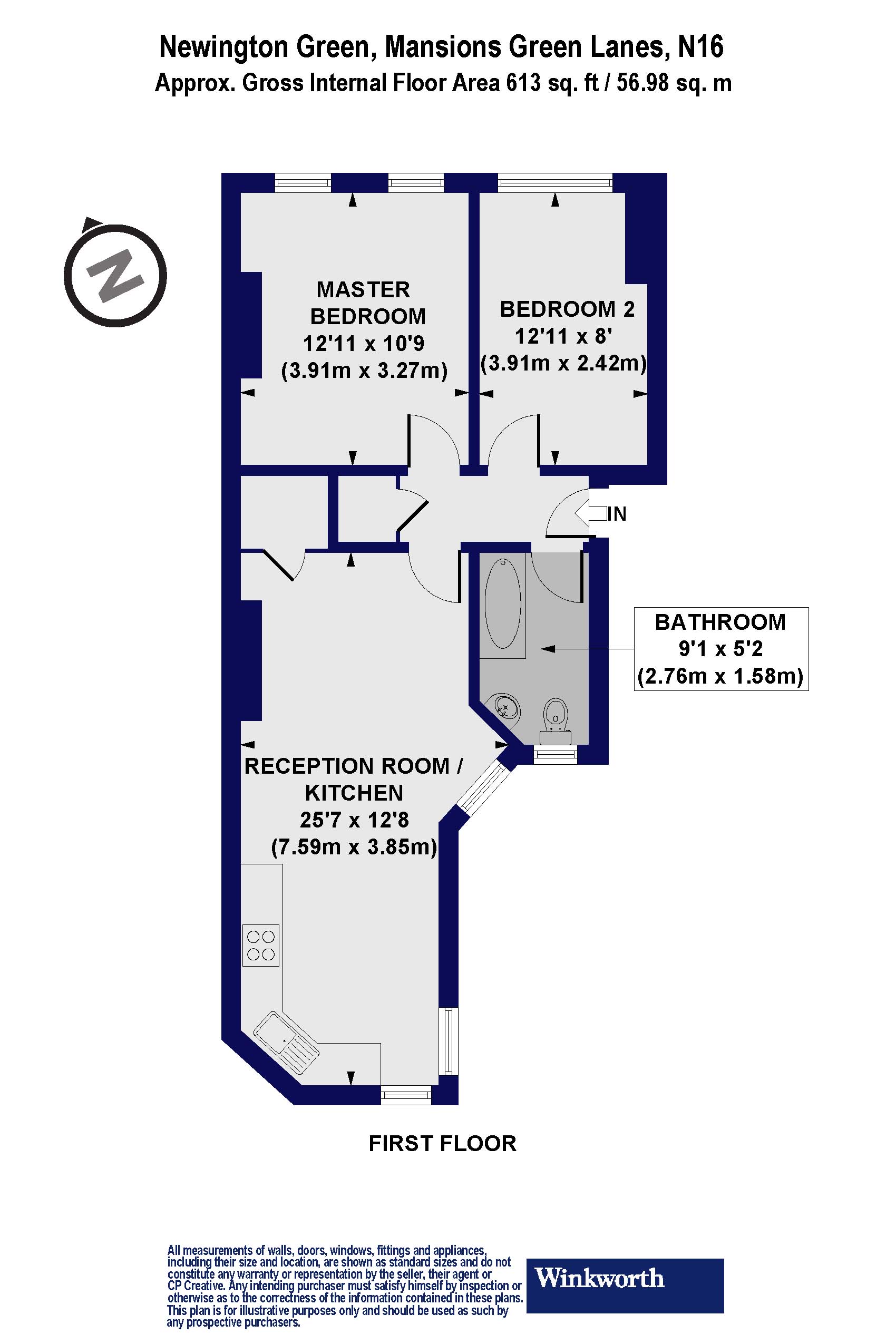
  • Dimensions 628 sq ft
    58 sq m
  • Floorplan

PICTURES AND VIDEOS

KEY INFORMATION

  • Tenure: Leasehold
  • Lease Length: 84 yrs left
  • Service charge: £2133.24 per annum

Description

Set over the first floor of this charming mansion block moments from Newington Green is a fantastic two bed flat. Spanning in excess of 600 sqft of lateral space the property consists of a bright open-plan kitchen living space, perfect for entertaining. Off the hallway you have two double bedrooms, and a modern family bathroom. The property further benefits from communal gardens and is offered to the market chain free.

Newington Green offers a wide array of cafes and restaurants and is well known for its selection of local shops and village atmosphere. The green spaces of Clissold park are just a short distance away and transport across London is made easy from Canonbury over ground as well as numerous bus routes providing routes to the City, Angel and West End.

*Any associated charges including, but not limited to, service charge, ground rent and sinking funds outlined in the marketing material is an approximation calculated using information provided by and described by the client at the time of instruction. The actual cost may be subject to change and therefore we recommend all interested parties carry out their own enquiries.*

Marketed by

Winkworth Stoke Newington

Properties for sale in Stoke Newington

Arrange a Viewing

Fill in the form below to arrange your property viewing.

This site is protected by reCAPTCHA and the Google Privacy Policy and Terms of Service apply.
Introduction text for the mortgage calculator

Mortgage Calculator

Fill in the details below to estimate your monthly repayments:

Approximate monthly repayment:

For more information, please contact Winkworth's mortgage partner, Trinity Financial, on +44 (0)20 7267 9399 and speak to the Trinity team.

Stamp Duty Calculator

Fill in the details below to estimate your stamp duty

The above calculator above is for general interest only and should not be relied upon

6/14
Picture No. 25
Picture No. 20
Picture No. 17
Picture No. 27
Picture No. 22
Picture No. 23
Picture No. 19
Picture No. 26
Picture No. 18
Picture No. 21
Picture No. 24
Picture No. 28

Contact Stoke Newington

See all team members

Got a question about this property?

This site is protected by reCAPTCHA and the Google Privacy Policy and Terms of Service apply.

More Properties like this

Under Offer

Albion Road, London, N16

£950,000 Share of Freehold

Listria Park, London, N16

£830,000 Share of Freehold

Alconbury Road, London, E5

£825,000 Share of Freehold

Under Offer

Walford Road, London, N16

Offers in excess of £750,000 Leasehold

Under Offer

Green Lanes, London, N16

£725,000 Share of Freehold

Under Offer

Albion Road, London, N16

£699,950 Leasehold

Online Valuations Aren’t Worth The Paper They’re Printed On.

When online valuations don’t give you the whole picture - try Winkworth’s expert service. Get a free property appraisal. Accurate valuations from our local property experts. No obligation to list with Winkworth. Choose a time convenient for you with our online booking system.

Fill in your details and someone will be in touch soon:

You have provisionally booked a valuation for . Please confirm your details below

We don't have date info available for this property, but if you fill in your details below, someone will be in touch to arrange a date soon

Please fill in the required fields below marked with *

This site is protected by reCAPTCHA and the Google Privacy Policy and Terms of Service apply.