Skip to main content

MyWinkworth

Sold

Picture No.06
Picture No.09
Picture No.08
Picture No.05
Picture No.04
Picture No.03
Picture No.02
Picture No.07
6/14

Mexfield Road, London, SW15

4 bedroom house in London

£1,450,000 Freehold

  • Bedrooms 4
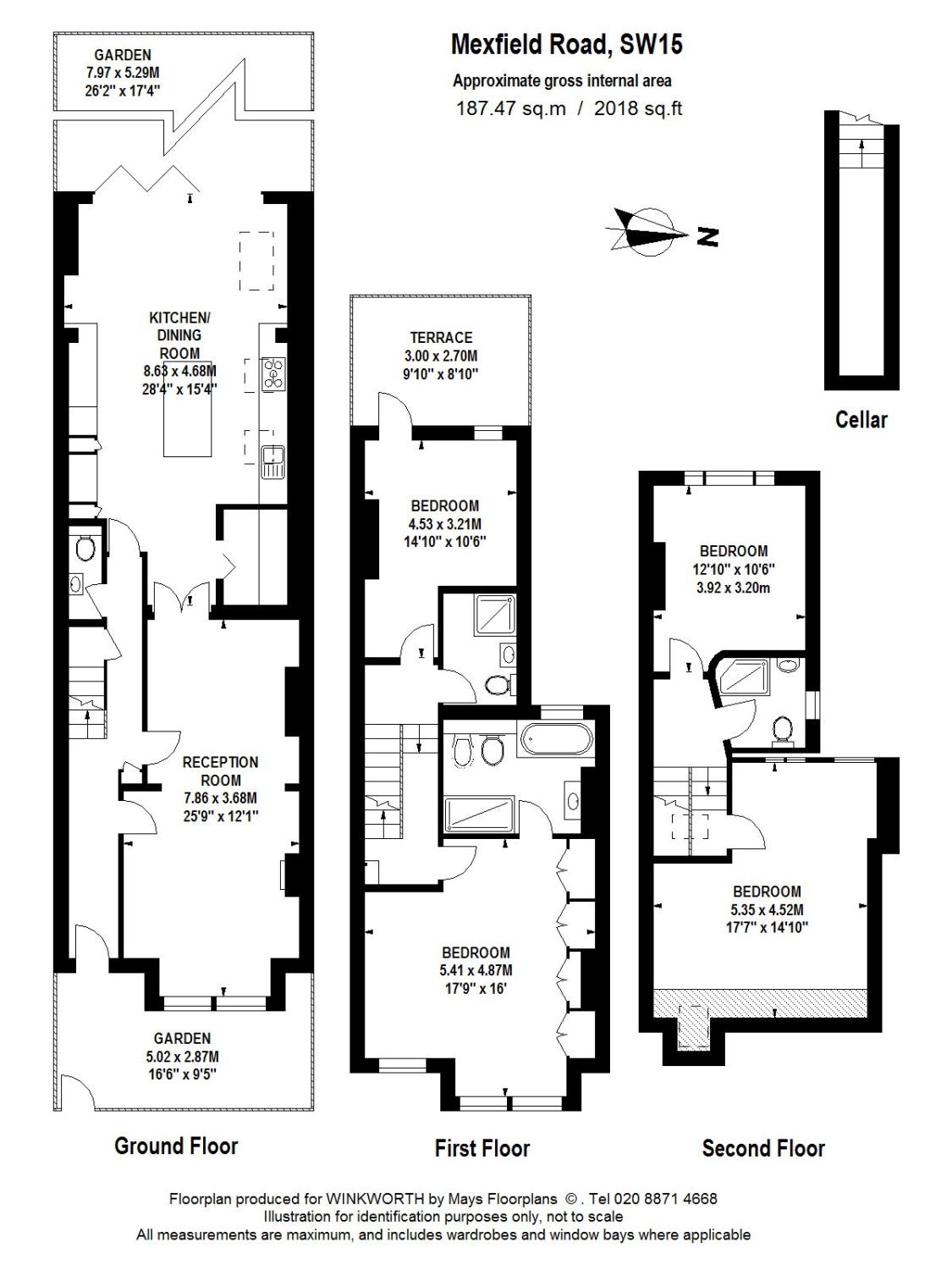
  • Floorplan

PICTURES AND VIDEOS

KEY FEATURES

  • Entrance Hall
  • Double Reception Room
  • Kitchen
  • Utility Room (off Kitchen)
  • Dining Room
  • Cloakroom
  • Cellar
  • Master Bedroom with Luxury En-Suite Bathroom
  • Three Further Double Bedrooms
  • Two Shower Rooms
  • Roof Terrace
  • 25ft West Facing Rear Garden

KEY INFORMATION

  • Tenure: Freehold

Description

A spacious four-bedroom house situated in this popular and quiet location only 0.4 miles from East Putney underground station.
The house boasts a large double reception room with solid wood flooring. The kitchen/dining room is very impressive with a large island, seating for four and bi-folding doors to the west facing rear garden.

The upper floors of the property offer flexible accommodation and of particular note is the large master bedroom with a luxury en-suite bathroom and plenty of fitted wardrobes (the remaining three double bedrooms are of a good size and with access to two shower rooms).

Outside of the property, the rear garden has been landscaped with Lazylawn artificial grass and a decked area, all facing west. The property also boasts a 9.1ft x 8ft roof terrace.

Location

Mexfield Road runs between Oakhill Road and Upper Richmond Road and is therefore only a seven to ten minute walk from both East Putney tube and Putney mainline stations. Also close at hand and Wandsworth Park and the river Thames taxi service.
Introduction text for the mortgage calculator

Mortgage Calculator

Fill in the details below to estimate your monthly repayments:

Approximate monthly repayment:

For more information, please contact Winkworth's mortgage partner, Trinity Financial, on +44 (0)20 7267 9399 and speak to the Trinity team.

Stamp Duty Calculator

Fill in the details below to estimate your stamp duty

The above calculator above is for general interest only and should not be relied upon

6/14
Picture No.06
Picture No.09
Picture No.08
Picture No.05
Picture No.04
Picture No.03
Picture No.02
Picture No.07

Meet the Team

Our team at Winkworth Putney Estate Agents are here to support and advise our customers when they need it most. We understand that buying, selling, letting or renting can be daunting and often emotionally meaningful. We are there, when it matters, to make the journey as stress-free as possible.

See all team members

Got a question about this property?

This site is protected by reCAPTCHA and the Google Privacy Policy and Terms of Service apply.

More Properties like this

Under Offer

Gwendolen Avenue, London, SW15

£7,500,000 Freehold

Under Offer

Holmbush Road, London, SW15

Guide Price £5,850,000 Freehold

Under Offer

Larpent Avenue, London, SW15

Guide Price £4,500,000 Freehold

Under Offer

Gwendolen Avenue, London, SW15

£3,950,000 Freehold

Video Tour

Putney Park Avenue, London, SW15

Guide Price £3,850,000 Freehold

Under Offer

Woodthorpe Road, London, SW15

£3,800,000 Freehold

Online Valuations Aren’t Worth The Paper They’re Printed On.

When online valuations don’t give you the whole picture - try Winkworth’s expert service. Get a free property appraisal. Accurate valuations from our local property experts. No obligation to list with Winkworth. Choose a time convenient for you with our online booking system.

Fill in your details and someone will be in touch soon:

You have provisionally booked a valuation for . Please confirm your details below

We don't have date info available for this property, but if you fill in your details below, someone will be in touch to arrange a date soon

Please fill in the required fields below marked with *

This site is protected by reCAPTCHA and the Google Privacy Policy and Terms of Service apply.