Skip to main content

MyWinkworth

Sold

Picture No. 03
Picture No. 11
Picture No. 10
Picture No. 04
Picture No. 08
Picture No. 06
Picture No. 07
Picture No. 05
6/14

Lordsmead Road, London, N17

2 bedroom flat/apartment in London

Guide Price £304,995 Leasehold

  • Bedrooms 2
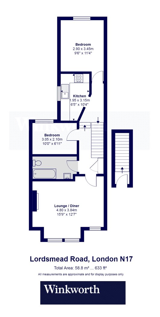
  • Floorplan

PICTURES AND VIDEOS

KEY FEATURES

  • 2 Bedrooms
  • Large Reception Room
  • Kitchen
  • Bathroom
  • Period Conversion
  • Long Lease
  • Close To Parks
  • Close To Transport Links

KEY INFORMATION

  • Tenure: Leasehold

Description

This two bedroom first floor period conversion is situated on a highly sought after Bruce Grove turning close to parks and transport links.

Sole Agent

Set on the first floor of a classic Victorian terrace this spacious apartment offers plenty of potential, with a smart interior upgrade it could easily be transformed into a truly impressive home in this increasingly popular North London neighbourhood.

Accommodation covers a generous 633 sq ft including a large reception room to front which provides ample entertaining space, two bedrooms, bathroom and kitchen.

Lordsmead Road is one of Bruce Grove's most sought after streets and provides convenient access to transport links at Bruce Grove BR (2O mins to Liverpool Street St) and Turnpike Lane / Seven Sisters Underground St.
The historic Bruce Castle Park, Lordship Recreation grounds and Downhills Park are all within easy reach making this a superb opportunity. Close to Tottenham High Road with its great selection of restaurants, Coffee shops, pubs and green grocers.

Please contact the Sales department at Winkworth Harringay office to arrange an appointment to view 020 8800 [email protected]

Winkworth.co.uk

Your local independently owned property agency with a network of 61 London offices.

Est 1835
Introduction text for the mortgage calculator

Mortgage Calculator

Fill in the details below to estimate your monthly repayments:

Approximate monthly repayment:

For more information, please contact Winkworth's mortgage partner, Trinity Financial, on +44 (0)20 7267 9399 and speak to the Trinity team.

Stamp Duty Calculator

Fill in the details below to estimate your stamp duty

The above calculator above is for general interest only and should not be relied upon

6/14
Picture No. 03
Picture No. 11
Picture No. 10
Picture No. 04
Picture No. 08
Picture No. 06
Picture No. 07
Picture No. 05

Meet the Team

At Winkworth Harringay Estate Agents, we have a comprehensive team of knowledgeable and personable property experts who are excited about the local area. So whether you're buying, selling, renting or letting or simply need some advice, pop into our office on Green Lanes for the experience and the local knowledge you need.

See all team members

Got a question about this property?

This site is protected by reCAPTCHA and the Google Privacy Policy and Terms of Service apply.

More Properties like this

Under Offer

Burgoyne Road, London, N4

Guide Price £735,000 Share of Freehold

Under Offer

Sydney Road, London, N8

Guide Price £725,000 Share of Freehold

Under Offer

Wightman Road, London, N4

Guide Price £650,000 Leasehold

Frankum Mews, London, N22

£649,950 Leasehold

Under Offer

Duckett Road, London, Haringey, N4

Guide Price £635,000 Share of Freehold

New Instruction

Coningsby Road, London, N4

£625,000 Share of Freehold

Online Valuations Aren’t Worth The Paper They’re Printed On.

When online valuations don’t give you the whole picture - try Winkworth’s expert service. Get a free property appraisal. Accurate valuations from our local property experts. No obligation to list with Winkworth. Choose a time convenient for you with our online booking system.

Fill in your details and someone will be in touch soon:

You have provisionally booked a valuation for . Please confirm your details below

We don't have date info available for this property, but if you fill in your details below, someone will be in touch to arrange a date soon

Please fill in the required fields below marked with *

This site is protected by reCAPTCHA and the Google Privacy Policy and Terms of Service apply.