Skip to main content

MyWinkworth

Sold

Front Shot
Drawing Room
Kitchen
Picture No. 24
Landing
Kitchen
Hall
Master En Suite
Guest Bedroom
6/14

Leachman Way, Petersfield, Hampshire, GU31

5 bedroom house in Petersfield

Guide Price £850,000 Freehold

  • Bedrooms 5
  • Bathrooms 3
  • Reception rooms 3
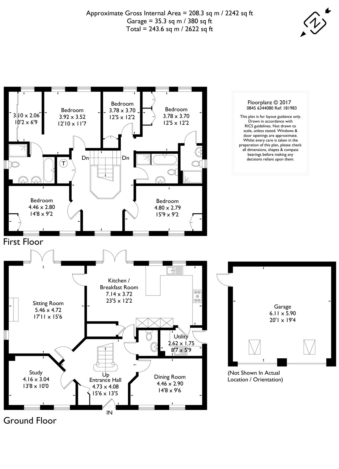
  • Floorplan

PICTURES AND VIDEOS

KEY FEATURES

  • Master Bedroom with En Suite Bathroom, Guest Bedroom with En Suite Shower Room, 3 Further Bedrooms, Family Bathroom, Reception Hall, Drawing Room, Kitchen/Breakfast Room, Dining Room, Study, Double Garage, Parking and Gardens. EPC Rating: "B" (88).

KEY INFORMATION

  • Tenure: Freehold
  • Local Authority: East Hampshire District Council

Description

Formerly the show home, a modern detached family house on this popular residential development.

A beautifully presented five bedroom detached former show home for the highly popular Foxfield Grove development constructed by Messrs David Wilson Homes. No stone has been left unturned with many creature comforts you would expect to find in a modern, high specification home. The floorplan denotes the layout which is well proportioned and practical for modern day living. Of particular note is the impressive hall with doors leading to the principal rooms and a staircase which splits to the galleried landing. The kitchen has double doors leading to the rear garden, the usual built-in appliances under quartz work surfaces and there is a separate utility room. The drawing room is a fabulous entertaining space with double doors leading outside and a feature fireplace. There are a further two reception rooms. On the first floor off the galleried landing are five bedrooms and a family bathroom. The master bedroom has its own dressing area and bathroom with separate shower and the guest bedroom has its own en suite shower room. The enclosed garden to the rear is landscaped to ensure minimal maintenance and to the side of the house is a large double garage, in front of which is ample parking. Being the former show home, the house has never been lived in and is essentially being sold as new and with no onward chain.

Location

Located on the highly popular Foxfield Grove development situated towards the southern fringes of Petersfield. Petersfield is situated in the heart of The South Downs National Park and offers a variety of amenities in a bustling town centre. Shops include Waitrose, M&S Food, Tesco and there are numerous boutiques, cafes and further shops. The station provides a service to London Waterloo to the north (in approximately an hour) and Portsmouth to the south. The town has many active clubs and societies with golf available at Petersfield and Liphook, horse and motor racing at Goodwood, The Festival Theatre in Chichester, Polo at Cowdray Park and sailing along the south coast. There are many excellent schools in the area including Churcher’s College, Bedales, Ditcham Park and The Petersfield School.

Services: Mains gas, electricity, water and drainage. The property also has solar panels.

Ref: AB/160114/2
Introduction text for the mortgage calculator

Mortgage Calculator

Fill in the details below to estimate your monthly repayments:

Approximate monthly repayment:

For more information, please contact Winkworth's mortgage partner, Trinity Financial, on +44 (0)20 7267 9399 and speak to the Trinity team.

Stamp Duty Calculator

Fill in the details below to estimate your stamp duty

The above calculator above is for general interest only and should not be relied upon

6/14
Front Shot
Drawing Room
Kitchen
Picture No. 24
Landing
Kitchen
Hall
Master En Suite
Guest Bedroom

Meet the Team

Our team at Winkworth Petersfield Estate Agents are here to support and advise our customers when they need it most. We understand that buying, selling, letting or renting can be daunting and often emotionally meaningful. We are there, when it matters, to make the journey as stress-free as possible.

See all team members

Got a question about this property?

This site is protected by reCAPTCHA and the Google Privacy Policy and Terms of Service apply.

More Properties like this

Under Offer

Stoner Hill, Steep, Petersfield, Hampshire, GU32

Guide Price £1,750,000 Freehold

Under Offer

Barnfield Road, Petersfield, Hampshire, GU31

Guide Price £1,600,000 Freehold

Borough Road, Petersfield, Hampshire, GU32

Guide Price £1,350,000 Freehold

Under Offer

Parsonage Close, Petersfield, Hampshire, GU32

Guide Price £1,250,000 Freehold

Under Offer

Ramsdean Road, Petersfield, Hampshire, GU32

Guide Price £1,250,000 Freehold

Under Offer

The Avenue, Petersfield, Hampshire, GU31

Offers over £1,200,000 Freehold

Online Valuations Aren’t Worth The Paper They’re Printed On.

When online valuations don’t give you the whole picture - try Winkworth’s expert service. Get a free property appraisal. Accurate valuations from our local property experts. No obligation to list with Winkworth. Choose a time convenient for you with our online booking system.

Fill in your details and someone will be in touch soon:

You have provisionally booked a valuation for . Please confirm your details below

We don't have date info available for this property, but if you fill in your details below, someone will be in touch to arrange a date soon

Please fill in the required fields below marked with *

This site is protected by reCAPTCHA and the Google Privacy Policy and Terms of Service apply.