Skip to main content

MyWinkworth

Sold

Picture No. 07
Picture No. 10
Picture No. 08
Picture No. 09
Picture No. 01
Picture No. 06
Picture No. 04
Picture No. 02
Picture No. 03
Picture No. 05
6/14

Langham Gardens, London, W13

2 bedroom flat/apartment in London

£450,000 Leasehold

  • Bedrooms 2
  • Bathrooms 2
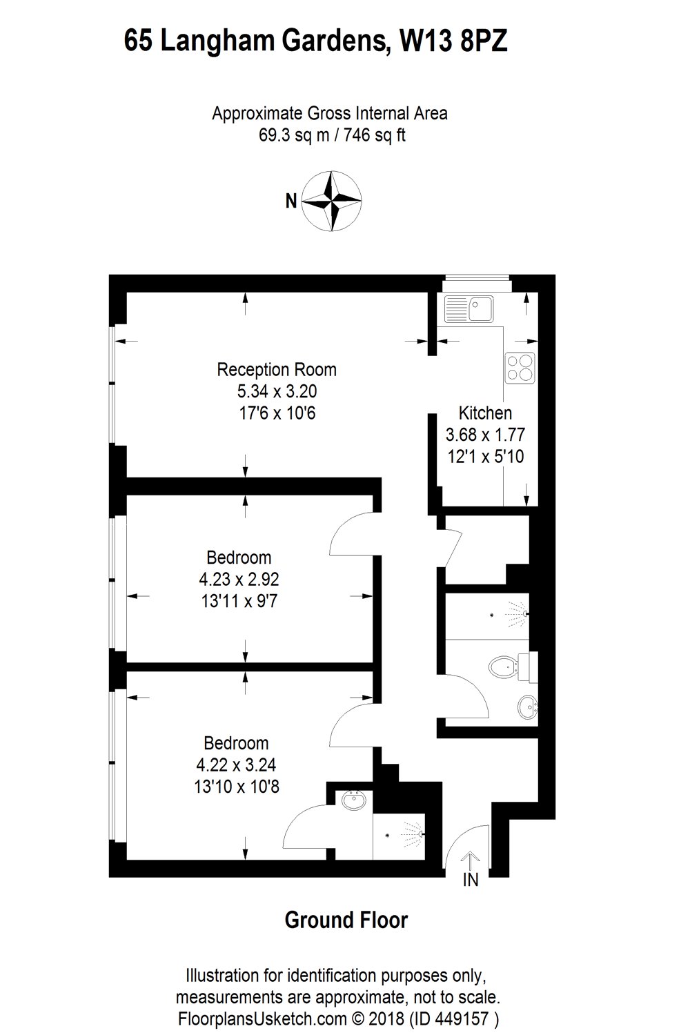
  • Floorplan

PICTURES AND VIDEOS

KEY FEATURES

  • Newly refurbished flat in the heart of Ealing
  • Two well-proportioned double bedrooms
  • Two bathrooms
  • Bright and airy kitchen-living room
  • Utility room
  • Garage
  • Long lease

KEY INFORMATION

  • Tenure: Leasehold

Description

On offer is a newly refurbished two bedroom two bathroom flat in the heart of Ealing. The property consists of bright and airy kitchen-living room, with two well-proportioned double bedrooms, one with ensuite shower room, and modern family bathroom and utility room adjacent. The flat also benefits from a garage and long lease.

Langham Gardens is the perfect location for links into London, especially with the imminent arrival of the new Crossrail line at both West Ealing station (0.3m) and Ealing Broadway (0.7m). Ealing Broadway also provides links via the Central line, District line, and Mainline. With local amenities a short walk away, this is a fantastic opportunity for any commuter.
Introduction text for the mortgage calculator

Mortgage Calculator

Fill in the details below to estimate your monthly repayments:

Approximate monthly repayment:

For more information, please contact Winkworth's mortgage partner, Trinity Financial, on +44 (0)20 7267 9399 and speak to the Trinity team.

Stamp Duty Calculator

Fill in the details below to estimate your stamp duty

The above calculator above is for general interest only and should not be relied upon

6/14
Picture No. 07
Picture No. 10
Picture No. 08
Picture No. 09
Picture No. 01
Picture No. 06
Picture No. 04
Picture No. 02
Picture No. 03
Picture No. 05

Meet the Team

Our handpicked team are knowledgeable and professional and really have their finger on the pulse keeping up with local market trends 'People buy people' has always been the unwritten strapline in the office. This is why so many clients or indeed anyone contacting the office will have such a positive experience.

See all team members

Got a question about this property?

This site is protected by reCAPTCHA and the Google Privacy Policy and Terms of Service apply.

More Properties like this

Virtual Tour

Castlebar Hill, London, UK, W5

£780,000 Share of Freehold

Under Offer

Woodgrange Avenue, London, W5

£650,000 Leasehold

Warwick Road, London, W5

£650,000 Leasehold

Under Offer

Relph Court, Kenneth Way, London, W5

£600,000 Leasehold

Lakeside Drive, London, NW10

Offers in excess of £600,000 Leasehold

Mount Park Road, London, W5

£595,000 Share of Freehold

Online Valuations Aren’t Worth The Paper They’re Printed On.

When online valuations don’t give you the whole picture - try Winkworth’s expert service. Get a free property appraisal. Accurate valuations from our local property experts. No obligation to list with Winkworth. Choose a time convenient for you with our online booking system.

Fill in your details and someone will be in touch soon:

You have provisionally booked a valuation for . Please confirm your details below

We don't have date info available for this property, but if you fill in your details below, someone will be in touch to arrange a date soon

Please fill in the required fields below marked with *

This site is protected by reCAPTCHA and the Google Privacy Policy and Terms of Service apply.