Skip to main content

MyWinkworth

New Instruction

Exterior Front
Kitchen/Reception
Kitchen Detail
Reception One
Dining Room
Open-Plan Living
Exterior Rear
Principal Bedroom
Principal Bedroom
Bedroom Two
Bedroom Three
Bedroom Four
Bathroom Two
Wc
Family Bathroom
Hallway
Hallway
6/14

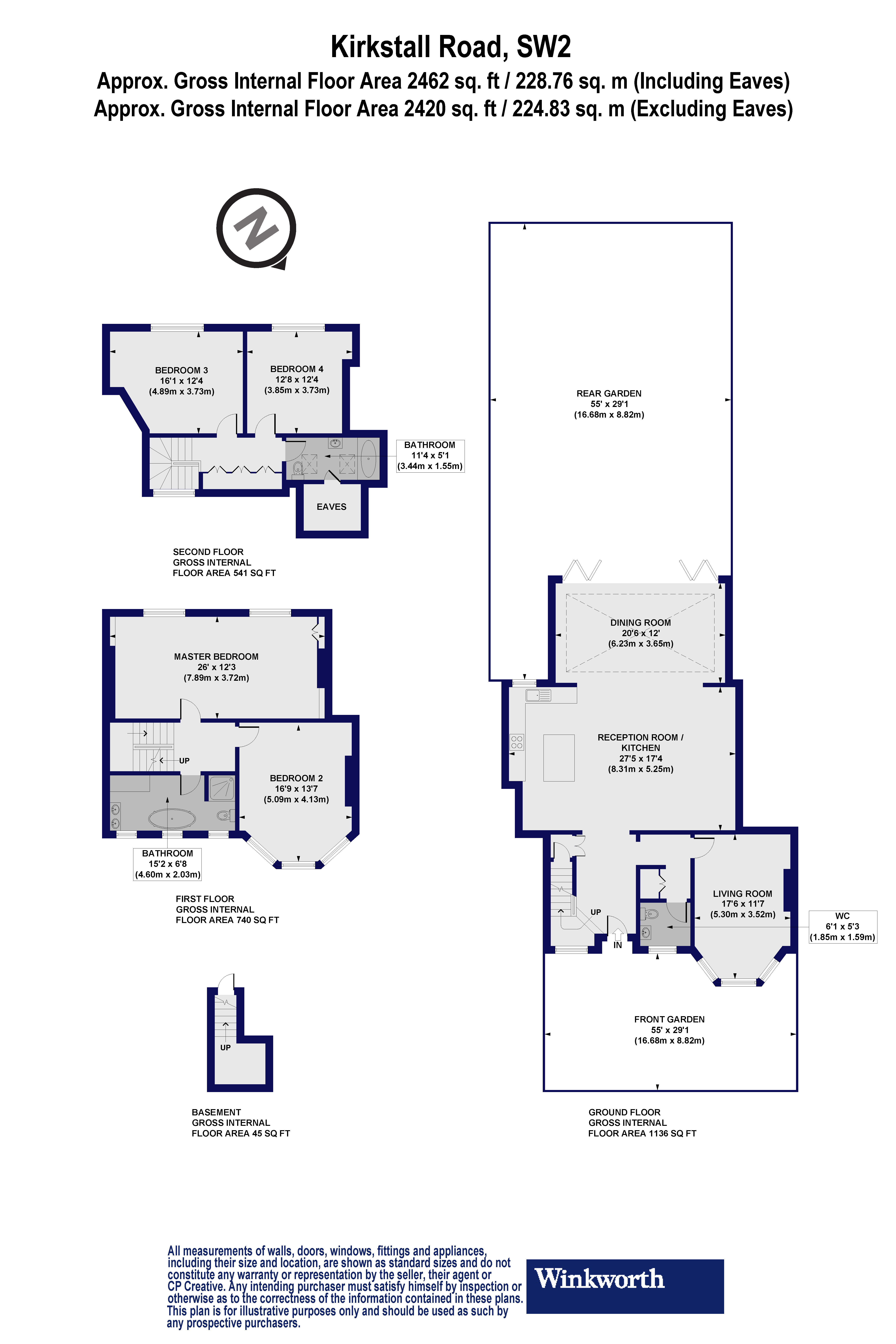
Kirkstall Road, London, SW2

4 bedroom house in London

£1,750,000 Freehold

  • Bedrooms 4
  • Bathrooms 2
  • Reception rooms 2
  • Dimensions 2462 sq ft
    228 sq m
  • Floorplan

PICTURES AND VIDEOS

KEY FEATURES

  • Semi-detached Victorian House
  • Modern extension
  • Large hallway/lobby
  • Open-plan kitchen
  • Dining room
  • 55ft. patio garden
  • 4 double bedrooms
  • 2 bathrooms
  • Basement storage
  • Abbeville and Balham

KEY INFORMATION

  • Tenure: Freehold
  • Council Tax Band: G
  • Local Authority: Lambeth

Description

We are delighted to present this gem of a Victorian house for sal on Kirkstall Road.

Spanning three floors with a spacious ground floor modern extension, the property is well-connected to local transport, schools, tennis club, and nearby amenities.

The property features a large hallway/lobby, a downstairs WC, front reception, and a rear reception open-plan with a stunning kitchen. The kitchen boasts an island/breakfast unit, ample wall and base units, and high-quality integrated appliances, including a Rangemaster cooker. A dining room seamlessly connects to this space, providing direct access to the 55ft. patio garden- ideal for in/out summer entertaining.

The first and second floors house four double bedrooms and two bathrooms, all in excellent decorative order. Retaining many original period features, the house has been extended and beautifully refurbished by the present owners, resulting in a well-laid-out and surprisingly spacious family home with meticulous attention to detail. Additionally, the property includes a basement for extra storage space.

Situated in the conservation area of Telford Park, this residential neighbourhood off Streatham Hill is particularly popular with families. The local tennis club, charming period properties, and access to excellent nearby schools enhance its appeal. Abbeville "Village" and Balham, with their diverse range of shops, cafes, and restaurants, are just a short walk away.

Location

Telford Park Conservation Area

Marketed by

Winkworth Streatham

Properties for sale in Streatham

Arrange a Viewing

Fill in the form below to arrange your property viewing.

This site is protected by reCAPTCHA and the Google Privacy Policy and Terms of Service apply.
Introduction text for the mortgage calculator

Mortgage Calculator

Fill in the details below to estimate your monthly repayments:

Approximate monthly repayment:

For more information, please contact Winkworth's mortgage partner, Trinity Financial, on +44 (0)20 7267 9399 and speak to the Trinity team.

Stamp Duty Calculator

Fill in the details below to estimate your stamp duty

The above calculator above is for general interest only and should not be relied upon

6/14
Exterior Front
Kitchen/Reception
Kitchen Detail
Reception One
Dining Room
Open-Plan Living
Exterior Rear
Principal Bedroom
Principal Bedroom
Bedroom Two
Bedroom Three
Bedroom Four
Bathroom Two
Wc
Family Bathroom
Hallway
Hallway

Meet the Team

Our team at Winkworth Streatham Estate Agents are here to support and advise our customers when they need it most. We understand that buying, selling, letting or renting can be daunting and often emotionally meaningful. We are there, when it matters, to make the journey as stress-free as possible.

See all team members

Got a question about this property?

This site is protected by reCAPTCHA and the Google Privacy Policy and Terms of Service apply.

More Properties like this

Lewin Road, London, SW16

£1,600,000 Freehold

Mitcham Lane, London, SW16

£1,300,000 Freehold

Atkins Road, London, SW12

Guide Price £1,200,000 Freehold

Wavertree Road, London, SW2

Offers in excess of £1,125,000 Freehold

Rosedene Avenue, London, SW16

£1,100,000 Freehold

Kirkstall Gardens, London, SW2

£1,100,000 Freehold

Online Valuations Aren’t Worth The Paper They’re Printed On.

When online valuations don’t give you the whole picture - try Winkworth’s expert service. Get a free property appraisal. Accurate valuations from our local property experts. No obligation to list with Winkworth. Choose a time convenient for you with our online booking system.

Fill in your details and someone will be in touch soon:

You have provisionally booked a valuation for . Please confirm your details below

We don't have date info available for this property, but if you fill in your details below, someone will be in touch to arrange a date soon

Please fill in the required fields below marked with *

This site is protected by reCAPTCHA and the Google Privacy Policy and Terms of Service apply.