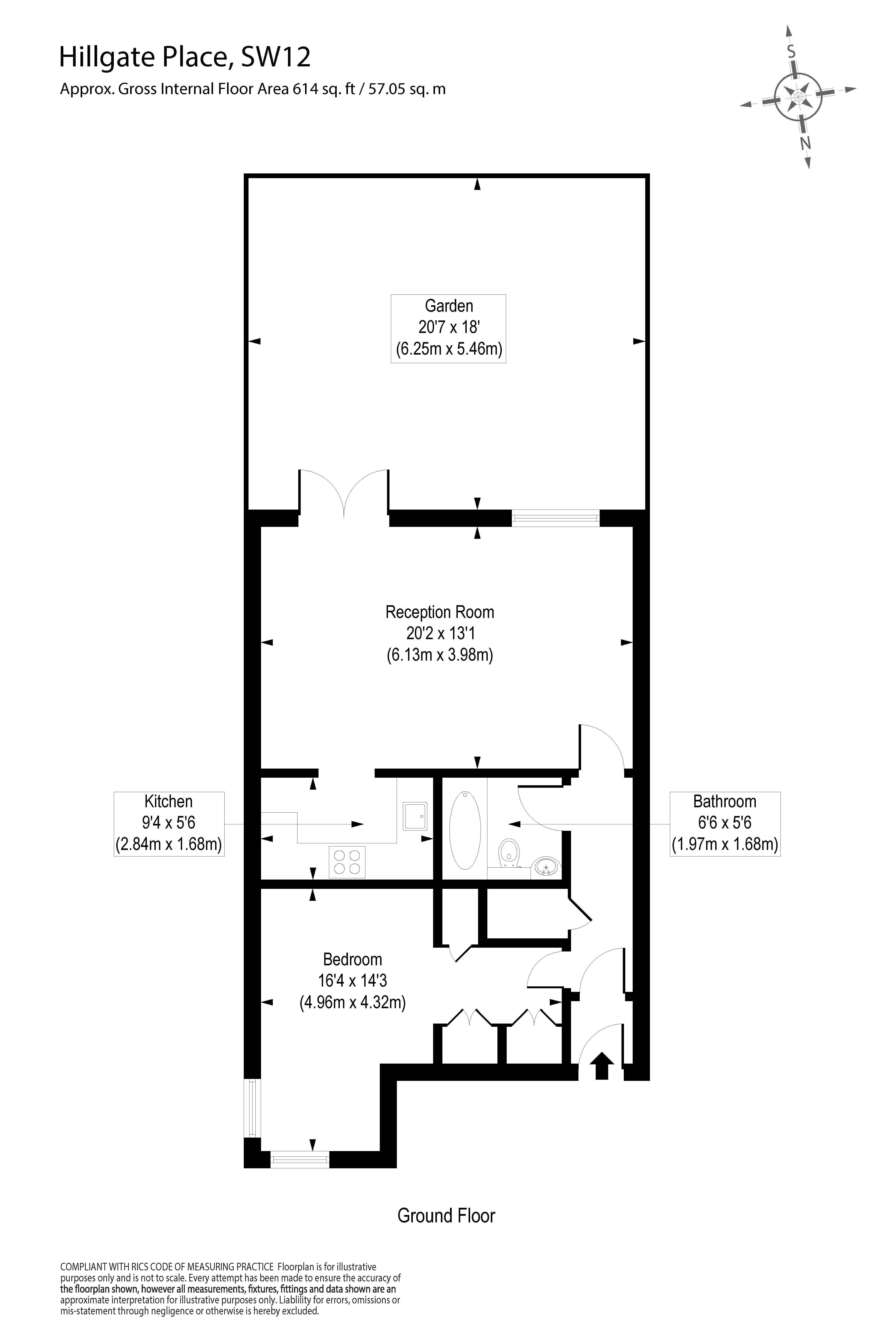
Hillgate Place, London, SW12
1 bedroom flat/apartment in London
£500,000 Share of Freehold
- 1
- 1
- 1
-
614 sq ft
57 sq m -
PICTURES AND VIDEOS










KEY FEATURES
- A Generous One Bedroom Apartment
- An Attractive and Sizable Private Garden
- 614 sqft
- Share of Freehold
- Chain Free
- Secure Allocated Parking
- Communal Court Yard
- Council Tax Band: D
KEY INFORMATION
- Tenure: Share of Freehold
- Lease Length: 900 yrs left
- Service charge: £2000.00 per annum
Description
The double bedroom is light-filled and benefits from built-in wardrobes and matching engineered wood flooring. The bathroom is finished to a contemporary standard, offering a three-piece suite with a smart tiled surround. In addition to the private garden, the property enjoys access to a communal courtyard and comes with an allocated secure underground parking space, providing both extra outdoor space and convenient parking.
Hillgate Place is a peaceful cul-de-sac tucked just behind Balham Hill, giving residents a real sense of privacy while still being minutes from the buzz of South London life. The street has a quiet, mews-like feel, yet step outside and you’re quickly connected: Clapham South Underground (0.2 miles) is only a short walk away, with Northern Line trains into the West End and City, while Balham station (0.7 miles) offers both tube and rail services towards Victoria, making commuting and weekend trips effortless. Local bus routes along Balham Hill also provide easy links to Clapham Junction and beyond. With leafy Clapham Common around the corner and Balham’s lively cafés, bars, and restaurants close at hand, Hillgate Place blends calm residential living with excellent transport options and a vibrant neighbourhood atmosphere.
Wandsworth Council Tax Band: D
Marketed by
Winkworth Tooting
Properties for sale in TootingArrange a Viewing
Fill in the form below to arrange your property viewing.
Mortgage Calculator
Fill in the details below to estimate your monthly repayments:
Approximate monthly repayment:
For more information, please contact Winkworth's mortgage partner, Trinity Financial, on +44 (0)20 7267 9399 and speak to the Trinity team.
Stamp Duty Calculator
Fill in the details below to estimate your stamp duty
The above calculator above is for general interest only and should not be relied upon
Meet the Team
Our team at Winkworth Tooting Estate Agents are here to support and advise our customers when they need it most. We understand that buying, selling, letting or renting can be daunting and often emotionally meaningful. We are there, when it matters, to make the journey as stress-free as possible.
See all team members