Skip to main content

MyWinkworth

Sold

Picture No. 01
Picture No. 04
Picture No. 06
Picture No. 08
Picture No. 10
Picture No. 11
Picture No. 15
Picture No. 13
Picture No. 12
Picture No. 09
Picture No. 14
Picture No. 03
Picture No. 05
Picture No. 07
Picture No. 02
6/14

High Street, Thurlby, Bourne, Lincolnshire, PE10

4 bedroom house in Thurlby

Guide Price £525,000 Freehold

  • Bedrooms 4
  • Bathrooms 3
  • Reception rooms 2
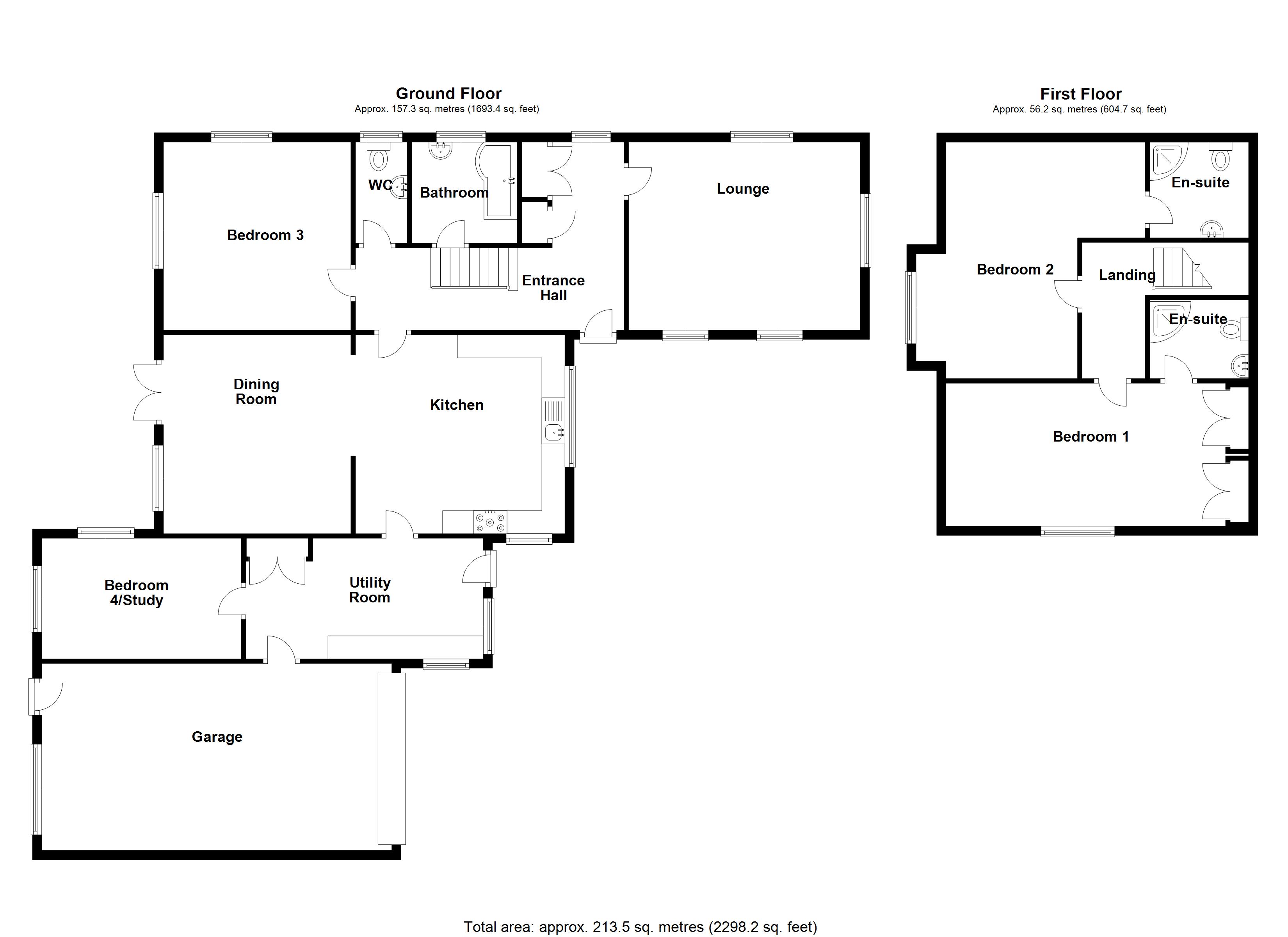
  • Floorplan

PICTURES AND VIDEOS

KEY FEATURES

  • Superbly presented individual 3/4 bedroom detached chalet
  • Views over open fields
  • Gas central heating
  • Solar panels
  • Woodburning stoves
  • Brick built home office/storage

KEY INFORMATION

  • Tenure: Freehold
  • Council Tax Band: E
  • Local Authority: South Kesteven District Council

Description

Unexpectedly re-available due to a chain break down! Winkworth Estate Agents are delighted to offer for sale this superbly presented individual 3/4 bedroom detached chalet set on a non-estate position with views over open fields. The property offers spacious and flexible accommodation benefiting from, lounge with woodburning stove, modern fitted kitchen opening to a dining room, utility room, study/bedroom four, bedroom three and family bathroom with separate wc. On the first floor there are two spacious bedrooms both benefiting from en-suite facilities. The property also benefits from gas central heating to radiators, upvc double glazed windows, solar panels and woodburning stoves in the lounge and kitchen. Outside there is a gravelled driveway providing ample off road parking leading to an oversized garage and to the rear an established generous size plot backing onto open fields with brick built home office/storage and further brick built wood store. Agent note. The 2.5kw solar panels are owned by the vendor and will be included in the sale. We are informed by the vendor that they receive a feed-in tariff of approximately £1500 per annum/index linked until 2036.

Rooms and Accommodations

  • Entrance Hall
  • With stairs leading to the first floor, upvc double glazed window to the side, built in storage cupboard, further built in airing cupboard housing hot water tank, radiator and door leading to.
  • Lounge
  • 5.28m x 4.06m
  • With upvc double glazed windows to three sides, feature fireplace with woodburning stove, radiator, power points and coved ceiling.
  • Kitchen
  • 4.78m x 4.52m
  • With fitted units comprising, ceramic sink with cupboard below, excellent range of wall and base units with oak worktop and upstands, range cooker with extractor canopy above, space for fridge freezer, feature woodburning stove, upvc double glazed window to the front, tiled flooring and open to.
  • Dining Room
  • 4.34m x 4.1m
  • With tiled flooring, radiator, coved ceiling and upvc double glazed french doors onto the rear garden.
  • Utility Room
  • 5.08m x 2.51m
  • With range of fitted units, space and plumbing for washing machine, space for tumble dryer, built in storage cupboard, door and window to the front, door to the garage and door to.
  • Bedroom Four/Study
  • 4.1m x 2.54m
  • With upvc double glazed windows to the rear garden, radiator and power points.
  • Bedroom Three
  • 4.11m x 4.1m
  • With upvc double glazed windows to the rear and side, radiator, power points and coved ceiling.
  • Family Bathroom
  • Modern fitted suite comprising, P-shaped bath with wall mounted shower and glass screen, wash hand basin, fitted cupboard, tiled walls, tiled flooring and frosted window.
  • Separate WC
  • With low level wc, wash hand basin, tiled walls and flooring and frosted window.
  • First Floor Landing
  • Bedroom One
  • 5.05m x 3.28m
  • With upvc double glazed window to the side, built in wardrobes, radiator, power points and door leading to.
  • En-Suite Shower Room
  • With corner shower cubicle, low level wc, wash hand basin and heated towel rail.
  • Bedroom Two
  • 5.2m x 3.76m (narrowing to 3.05m)
  • With upvc double glazed window to the rear, radiator, power points and door to.
  • En-Suite
  • With corner shower cubicle, low level wc, wash hand basin and heated towel rail.
  • Outside
  • To the front there is an estblashed stone fronted lawn with gated gravelled driveway providing ample off road parking leading to.
  • Oversized Garage
  • 7.44m x 4.01m
  • With up and over door, window and door onto the rear garden and power and light.
  • Rear Garden
  • With a paved patio leading onto a generous lawned garden with established shrubs and trees providing an excellent degree of privacy and enjoys fantastic views across open fields. There is a brick built home office/store (15'3" x 8'2") with upvc double glazed sash windows, tiled flooring and power and light. There is also a further brick built log store (8'0" x 7'8")
Introduction text for the mortgage calculator

Mortgage Calculator

Fill in the details below to estimate your monthly repayments:

Approximate monthly repayment:

For more information, please contact Winkworth's mortgage partner, Trinity Financial, on +44 (0)20 7267 9399 and speak to the Trinity team.

Stamp Duty Calculator

Fill in the details below to estimate your stamp duty

The above calculator above is for general interest only and should not be relied upon

6/14
Picture No. 01
Picture No. 04
Picture No. 06
Picture No. 08
Picture No. 10
Picture No. 11
Picture No. 15
Picture No. 13
Picture No. 12
Picture No. 09
Picture No. 14
Picture No. 03
Picture No. 05
Picture No. 07
Picture No. 02

Meet the Team

Our team are here to support and advise our customers when they need it most. We understand that buying, selling, letting or renting can be daunting and often emotionally meaningful. We are there, when it matters, to make the journey as stress-free as possible.

See all team members

Got a question about this property?

This site is protected by reCAPTCHA and the Google Privacy Policy and Terms of Service apply.

More Properties like this

Under Offer

Swallow Hill, Thurlby, Bourne, Lincolnshire, PE10

Offers in excess of £900,000 Freehold

North Road, Gedney Hill, Spalding, Lincolnshire, PE12

£695,000 Freehold

Under Offer

Clarks Close, Morton, Bourne, Lincolnshire, PE10

£695,000 Freehold

New Instruction

Swallow Hill, Thurlby, Bourne, Lincolnshire, PE10

£685,000 Freehold

High Street, Horbling, Sleaford, Lincolnshire, NG34

£675,000 Freehold

Donington Road, Horbling, Sleaford, NG34

£570,000 Freehold

Online Valuations Aren’t Worth The Paper They’re Printed On.

When online valuations don’t give you the whole picture - try Winkworth’s expert service. Get a free property appraisal. Accurate valuations from our local property experts. No obligation to list with Winkworth. Choose a time convenient for you with our online booking system.

Fill in your details and someone will be in touch soon:

You have provisionally booked a valuation for . Please confirm your details below

We don't have date info available for this property, but if you fill in your details below, someone will be in touch to arrange a date soon

Please fill in the required fields below marked with *

This site is protected by reCAPTCHA and the Google Privacy Policy and Terms of Service apply.