Skip to main content

MyWinkworth

Sold

Picture No. 02
Picture No. 19
Picture No. 13
Picture No. 05
Picture No. 04
Picture No. 03
Picture No. 07
Picture No. 06
Picture No. 08
Picture No. 09
Picture No. 10
Picture No. 11
Picture No. 12
Picture No. 01
Picture No. 14
Picture No. 15
6/14

High Road, Moulton, Spalding, Lincolnshire, PE12

4 bedroom house in Moulton

Offers in excess of £310,000 Freehold

  • Bedrooms 4
  • Bathrooms 3
  • Reception rooms 3
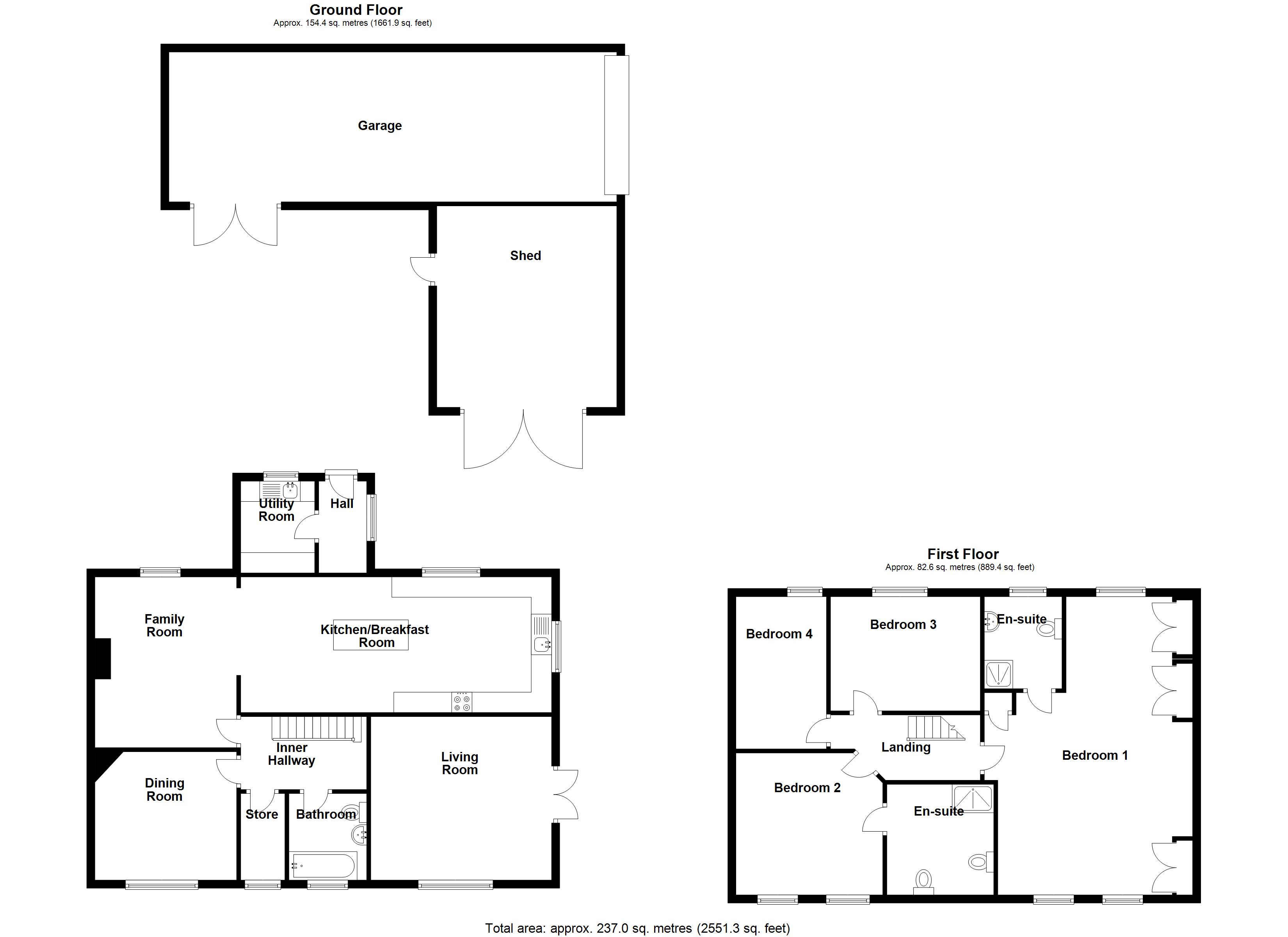
  • Floorplan

PICTURES AND VIDEOS

KEY FEATURES

  • Four Bedroom Semi-Detached
  • Two Bedrooms with En Suite
  • Three Reception Rooms
  • Garage/Workshop
  • Council Tax Band A
  • EPC Rating C

KEY INFORMATION

  • Tenure: Freehold
  • Council Tax Band: A
  • Local Authority: South Holland

Description

Winkworth are delighted to offer for sale this impressive extended and much improved four bedroom semi detached home located in a non estate position with 38ft garage/workshop and 18ft shed. The property offers excellent family accommodation benefiting from, lounge and separate dining room, 36ft kitchen/family room with newly fitted units, large master bedroom with en-suite, guest bedroom with further en-suite, downstairs bathroom and two further bedrooms. Outside there is a generous front garden with driveway to the side providing ample off road parking and to the rear a fully enclosed garden with access to the outbuildings. Please call 01778 392807 for more information.

Rooms and Accommodations

  • Lounge
  • 4.45m x 4.01m
  • With wood effect flooring, upvc double glazed window to the front and french doors to the side, radiator and power points.
  • Dining Room
  • 3.48m x 3.15m
  • With attractive feature fireplace with woodburning stove, wood effect flooring, upvc double glazed window to the front, radiator and power points.
  • Inner Hall
  • With stairs leading to the first floor, wood effect flooring, walk in storage cupboard and door leading to.
  • Downstairs Bathroom
  • With panelled bath with shower attachment, low level wc, wash hand basin, tiled walls, radiator and frosted window.
  • Kitchen
  • 7.34m x 2.82m
  • With superb newly fitted units comprising, sink with cupboard below, excellent range of wall and base units incorporating centre island with breakfast bar, built in double oven, built in gas hob with extractor above, built in microwave, integrated fridge freezer, part tiled walls, upvc double glazed windows to the rear and side, wood effect flooring and open to.
  • Family Room
  • 4.2m x 3.56m
  • With attractive feature fireplace, wood effect flooring, radiator, power points and upvc double glazed window to the rear.
  • Rear Porch
  • With door and window to the rear and door leading to.
  • Utility Room
  • 2.29m x 1.83m
  • With range of wall and base units, single drainer sink, space and plumbing for washing machine, gas boiler supplying hot water and central heating and upvc double glazed window to the rear.
  • First Floor Landing
  • With door leading to
  • Bedroom One
  • 6.93m x 5.7m
  • A fantastic bright and spacious room with extensive fitted wardrobes, radiator, power points, upvc double glazed window to the front and rear and door to.
  • En-Suite
  • Modern fitted suite comprising, shower cubicle, low level wc, wash hand basin, tiled walls, tiled flooring, heated towel rail and frosted window.
  • Bedroom Two
  • 3.58m x 3.05m
  • With two upvc double glazed windows to the front, radiator, power points and door leading to.
  • En-Suite Shower Room
  • Modern fitted suite comprising, shower cubicle, low level wc, wash hand basin, tiled walls, heated towel rail and extractor fan.
  • Bedroom Three
  • 3.68m x 2.84m
  • With upvc double glazed window to the rear, radiator and power points.
  • Bedroom Four
  • 3.84m x 2.29m
  • With upvc double glazed window to the rear, radiator and power points.
  • Outside
  • To the front there is a generous lawned garden with driveway to the side providing ample off road parking.
    The rear garden has a paved patio leading to a lawned garden which is fully enclosed and gives access to.
  • Timber Shed
  • 6.27m x 5.61m
  • With double opening doors and personal door to the side, power and light.
  • Garage/Workshop
  • 11.35m x 3.89m
  • With electric rolltop door, further french doors to the garden, power and light.
Introduction text for the mortgage calculator

Mortgage Calculator

Fill in the details below to estimate your monthly repayments:

Approximate monthly repayment:

For more information, please contact Winkworth's mortgage partner, Trinity Financial, on +44 (0)20 7267 9399 and speak to the Trinity team.

Stamp Duty Calculator

Fill in the details below to estimate your stamp duty

The above calculator above is for general interest only and should not be relied upon

6/14
Picture No. 02
Picture No. 19
Picture No. 13
Picture No. 05
Picture No. 04
Picture No. 03
Picture No. 07
Picture No. 06
Picture No. 08
Picture No. 09
Picture No. 10
Picture No. 11
Picture No. 12
Picture No. 01
Picture No. 14
Picture No. 15

Meet the Team

Our team are here to support and advise our customers when they need it most. We understand that buying, selling, letting or renting can be daunting and often emotionally meaningful. We are there, when it matters, to make the journey as stress-free as possible.

See all team members

Got a question about this property?

This site is protected by reCAPTCHA and the Google Privacy Policy and Terms of Service apply.

More Properties like this

Under Offer

Swallow Hill, Thurlby, Bourne, Lincolnshire, PE10

Offers in excess of £900,000 Freehold

North Road, Gedney Hill, Spalding, Lincolnshire, PE12

£695,000 Freehold

Under Offer

Clarks Close, Morton, Bourne, Lincolnshire, PE10

£695,000 Freehold

New Instruction

Swallow Hill, Thurlby, Bourne, Lincolnshire, PE10

£685,000 Freehold

High Street, Horbling, Sleaford, Lincolnshire, NG34

£675,000 Freehold

Donington Road, Horbling, Sleaford, NG34

£570,000 Freehold

Online Valuations Aren’t Worth The Paper They’re Printed On.

When online valuations don’t give you the whole picture - try Winkworth’s expert service. Get a free property appraisal. Accurate valuations from our local property experts. No obligation to list with Winkworth. Choose a time convenient for you with our online booking system.

Fill in your details and someone will be in touch soon:

You have provisionally booked a valuation for . Please confirm your details below

We don't have date info available for this property, but if you fill in your details below, someone will be in touch to arrange a date soon

Please fill in the required fields below marked with *

This site is protected by reCAPTCHA and the Google Privacy Policy and Terms of Service apply.