Skip to main content

MyWinkworth

Sold

Picture No. 06
Picture No. 20
Picture No. 01
Picture No. 26
Picture No. 17
Picture No. 21
Picture No. 11
Picture No. 10
Picture No. 12
Picture No. 16
Picture No. 13
Picture No. 03
Picture No. 04
Picture No. 15
Picture No. 14
Picture No. 22
Picture No. 02
Picture No. 09
Picture No. 23
Picture No. 08
Picture No. 07
Picture No. 05
6/14

Hampden Road, London, N8

2 bedroom flat/apartment in London

Guide Price £465,000 Leasehold

  • Bedrooms 2
  • Bathrooms 1
  • Reception rooms 1
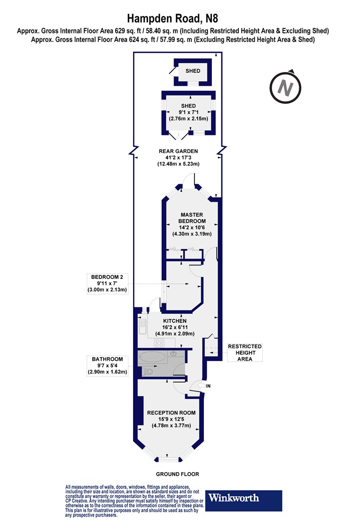
  • Floorplan

PICTURES AND VIDEOS

KEY FEATURES

  • Two Double Bedrooms
  • Lovely Reception Room With High Ceilings
  • Fully Fitted Kitchen
  • Modern Bathroom with Utility Area
  • Smart Interior
  • Period Character
  • Attractive Private Garden With Outdoor Office
  • Additional Storage Shed
  • Close To Transport Links, Parks and Shops / Restaurants

KEY INFORMATION

  • Tenure: Leasehold

Description

A beautifully presented two bedroom ground floor garden flat situated on a popular Harringay ladder street, close to transport links, Parks and restaurants.

Sole Agent

This fabulous period conversion with private garden arrives on to the market in excellent internal order measuring approx.629.sq. ft. / 58.40 sq m.

The property comprises a communal entrance hallway with access to the flat. The reception room is at the front of the building, it’s an attractive space with high ceilings, period fireplace and wood floors as well as large sash windows which allow lots of natural light to flow through. The rest of the property includes a modern fitted kitchen diner, bathroom with a utility area, two comfortable and nicely presented double bedrooms and a beautifully kept private garden with access to a spacious office for working from home.

The 'Harringay Ladder' is popular due to its beautiful Victorian built terraces and proximity to the Piccadilly Line Tube and Hornsey Overground stations on either side. As well as a friendly and welcoming community of residents, you will be able to take your pick from a burgeoning selection of independent shops, cafes and restaurants that have blossomed along Harringay Green Lanes. Alternatively you can swing round to nearby Crouch End Broadway for even more dining and shopping. The area is also close to a variety of parks including Alexandra Palace, Priory Park,Finsbury Park and Downhills Park/Lordship Rec.

Transport links are excellent: Turnpike Lane Underground Station on the Piccadilly Line is just 6 minutes’ walk away. Even closer in the opposite direction is Hornsey Rail Station, with frequent trains to Finsbury Park, Kings Cross, Old Street and Moorgate, making it just a 20-minute commute into the city.

Hampden Road is in the catchment area for North Harringay School. There are plentiful kids’ activities and community groups for those with young families.

The sellers thoughts:

"We’ve lived here for more than five years, and it’s been the perfect spot for us as young professionals. The transport links to the city from here are great. There’s a Tube and Overground station within a few minutes’ walk. On weekends, the Overground also gets us out to the countryside around Hertfordshire for walks and bike rides. There are plenty of parks in the local area, too. A hidden gem is the Parklands Walk, an abandoned railroad walkway that links Finsbury Park with Alexandra Palace. We love the garden, which has provided us with a private space to entertain, play, exercise and relax. There’s nothing better than enjoying a morning cup of tea in bed while looking out at the greenery. In addition, the outdoor office has served us well in recent times as a quiet place to work from home".

Please contact the Sales department at Winkworth Harringay office to arrange an appointment to view 020 8800 5151 - [email protected]

Winkworth.co.uk

Your local independently owned property agency with a network of 58 London offices.

Est 1835
Introduction text for the mortgage calculator

Mortgage Calculator

Fill in the details below to estimate your monthly repayments:

Approximate monthly repayment:

For more information, please contact Winkworth's mortgage partner, Trinity Financial, on +44 (0)20 7267 9399 and speak to the Trinity team.

Stamp Duty Calculator

Fill in the details below to estimate your stamp duty

The above calculator above is for general interest only and should not be relied upon

6/14
Picture No. 06
Picture No. 20
Picture No. 01
Picture No. 26
Picture No. 17
Picture No. 21
Picture No. 11
Picture No. 10
Picture No. 12
Picture No. 16
Picture No. 13
Picture No. 03
Picture No. 04
Picture No. 15
Picture No. 14
Picture No. 22
Picture No. 02
Picture No. 09
Picture No. 23
Picture No. 08
Picture No. 07
Picture No. 05

Meet the Team

At Winkworth Harringay Estate Agents, we have a comprehensive team of knowledgeable and personable property experts who are excited about the local area. So whether you're buying, selling, renting or letting or simply need some advice, pop into our office on Green Lanes for the experience and the local knowledge you need.

See all team members

Got a question about this property?

This site is protected by reCAPTCHA and the Google Privacy Policy and Terms of Service apply.

More Properties like this

Under Offer

Green Lanes, London, N4

£750,000 Share of Freehold

Under Offer

Burgoyne Road, London, N4

Guide Price £735,000 Share of Freehold

Under Offer

Sydney Road, London, N8

Guide Price £725,000 Share of Freehold

Lausanne Road, London, N8

£675,000 Leasehold

Under Offer

Duckett Road, London, Haringey, N4

Guide Price £635,000 Share of Freehold

Hermitage Road, London, N4

£625,000 Leasehold

Online Valuations Aren’t Worth The Paper They’re Printed On.

When online valuations don’t give you the whole picture - try Winkworth’s expert service. Get a free property appraisal. Accurate valuations from our local property experts. No obligation to list with Winkworth. Choose a time convenient for you with our online booking system.

Fill in your details and someone will be in touch soon:

You have provisionally booked a valuation for . Please confirm your details below

We don't have date info available for this property, but if you fill in your details below, someone will be in touch to arrange a date soon

Please fill in the required fields below marked with *

This site is protected by reCAPTCHA and the Google Privacy Policy and Terms of Service apply.