Skip to main content

MyWinkworth

Garden
Kitchen
External
Reception Room
Reception Room
Kitchen
Bedroom One
Bedroom Two
Garden
Garden
Courtyard
Bathroom
6/14

Friern Road, East Dulwich, London, SE22

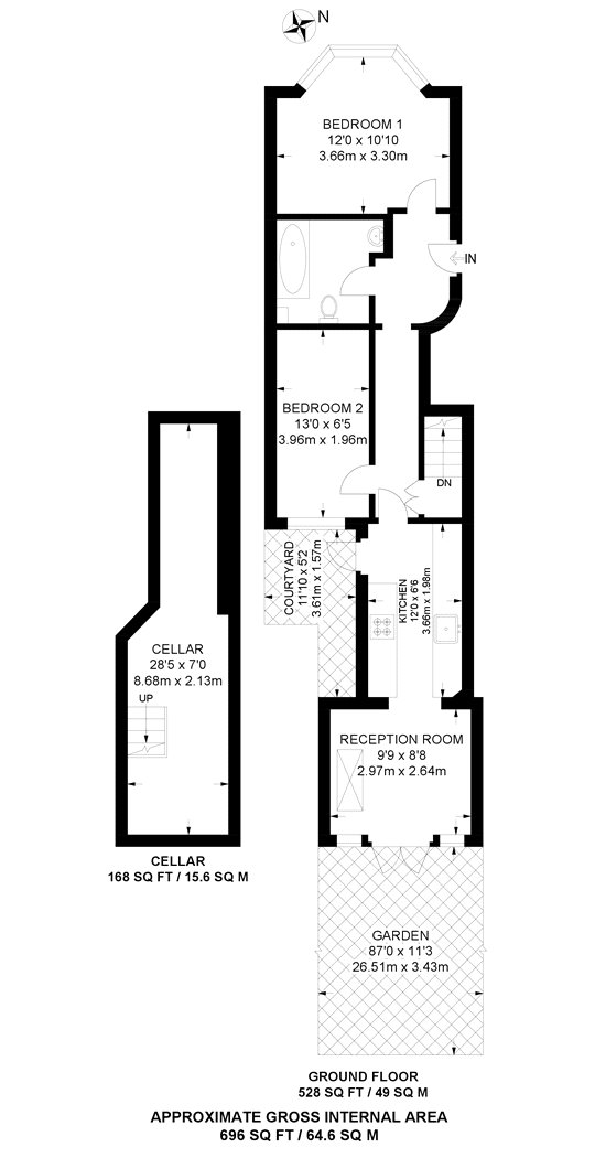
2 bedroom flat/apartment

Guide Price £600,000 Share of Freehold

  • Bedrooms 2
  • Bathrooms 1
  • Reception rooms 1
  • Floorplan

PICTURES AND VIDEOS

KEY FEATURES

  • Two-bedroom ground floor flat in Victorian conversion
  • Exceptionally large rear garden (private status to be confirmed)
  • Bright kitchen with direct garden access
  • Separate living room with period features
  • Light-filled bedrooms with versatile layouts
  • Peaceful, tree-lined residential street
  • Walking distance to Lordship Lane & Peckham Rye
  • Excellent transport links via East Dulwich & Peckham Rye stations

KEY INFORMATION

  • Tenure: Share of Freehold
  • Council Tax Band: B
  • Local Authority: London Borough Of Southwark

Description

Positioned on a quiet, tree-lined street in ever-popular East Dulwich, this delightful two-bedroom flat occupies the ground floor of a handsome Victorian conversion and boasts an exceptionally large rear garden — a rare find in this area.

Step inside to a central hallway that leads through to a bright, practical kitchen at the rear of the property — offering direct access to the extensive garden, perfect for outdoor dining, entertaining, or simply relaxing in your own green haven.

At the front, a cosy yet characterful living room provides a welcoming space to unwind, featuring classic period detailing and large windows. Both bedrooms are modest in size but benefit from good natural light and versatile layouts that can suit a variety of uses — ideal for a guest room, home office or nursery.

The standout feature here is undoubtedly the generously sized garden — rarely available with flats in the area. Whether you're a keen gardener, entertainer, or just looking for peaceful outdoor space, this garden offers fantastic potential. (Buyers are advised to confirm the exact status of private access.)

Located just a short walk from the shops, cafés and restaurants of Lordship Lane, as well as the open green spaces of Peckham Rye and Dulwich Park, this home is perfectly placed to enjoy the best of East Dulwich living. Excellent transport links are nearby, including East Dulwich and Peckham Rye stations, providing easy access to central London.

Ideal for first-time buyers, young professionals or downsizers looking for outdoor space and a great location, this is a unique opportunity not to be missed.

AGENT NOTES:

Mobile phone coverage:
EE (Good outdoor and in-home)
Three (Good outdoor and in-home)
O2 (Good outdoor and in-home)
Vodaphone (Good outdoor and in-home)

(Potential purchasers are advised to seek their own advice as to the suitability of the services and mobile phone coverage, the above is for guidance only.)

Available broadband: Ultrafast Broadband: FTTP /
Superfast Broadband: FTTC
Standard Broadband: ADSL
Networks in your area: Virgin media, Openreach
(Information supplied by Ofcom)

Flood Risk: Very low risk of surface water flooding / Very low risk river and sea flooding (Information supplied by gov.uk and purchasers are advised to seek their own legal advice)

Tenure: Freehold / Leasehold / Share Of Freehold

Local Council: Southwark / Tax Band: B
EPC Rating: C

Floor plan: Whilst every attempt has been made to ensure accuracy, all measurements are approximate and not to scale. The floor plan is for illustrative purposes only.

Marketed by

Winkworth Dulwich

Properties for sale in Dulwich

Arrange a Viewing

Fill in the form below to arrange your property viewing.

This site is protected by reCAPTCHA and the Google Privacy Policy and Terms of Service apply.
Introduction text for the mortgage calculator

Mortgage Calculator

Fill in the details below to estimate your monthly repayments:

Approximate monthly repayment:

For more information, please contact Winkworth's mortgage partner, Trinity Financial, on +44 (0)20 7267 9399 and speak to the Trinity team.

Stamp Duty Calculator

Fill in the details below to estimate your stamp duty

The above calculator above is for general interest only and should not be relied upon

6/14
Garden
Kitchen
External
Reception Room
Reception Room
Kitchen
Bedroom One
Bedroom Two
Garden
Garden
Courtyard
Bathroom

Meet the Team

Our team at Winkworth Dulwich Estate Agents are here to support and advise our customers when they need it most. We understand that buying, selling, letting or renting can be daunting and often emotionally meaningful. We are there, when it matters, to make the journey as stress-free as possible.

See all team members

Got a question about this property?

This site is protected by reCAPTCHA and the Google Privacy Policy and Terms of Service apply.

More Properties like this

Under Offer

Marmora Road, East Dulwich, London, SE22

£825,000 Leasehold

Under Offer

Dunstans Road, East Dulwich, London, SE22

Offers in excess of £800,000 Share of Freehold

Under Offer

Lordship Lane, East Dulwich, London, SE22

Offers in excess of £800,000 Share of Freehold

Under Offer

Lordship Lane, East Dulwich, London, SE22

Offers in excess of £800,000 Share of Freehold

Beauval Road, East Dulwich, London, SE22

£800,000 Leasehold

Under Offer

Oakhurst Grove, East Dulwich, London, SE22

£799,950 Share of Freehold

Online Valuations Aren’t Worth The Paper They’re Printed On.

When online valuations don’t give you the whole picture - try Winkworth’s expert service. Get a free property appraisal. Accurate valuations from our local property experts. No obligation to list with Winkworth. Choose a time convenient for you with our online booking system.

Fill in your details and someone will be in touch soon:

You have provisionally booked a valuation for . Please confirm your details below

We don't have date info available for this property, but if you fill in your details below, someone will be in touch to arrange a date soon

Please fill in the required fields below marked with *

This site is protected by reCAPTCHA and the Google Privacy Policy and Terms of Service apply.