Skip to main content

MyWinkworth

Sold

Picture No. 14
Picture No. 11
Picture No. 05
Picture No. 13
Picture No. 04
Picture No. 12
Picture No. 06
Picture No. 08
Picture No. 09
Picture No. 02
Picture No. 15
Picture No. 07
Picture No. 10
Picture No. 03
6/14

Elm Park Road, Finchley, London, N3

2 bedroom flat/apartment in Finchley

£370,000 Leasehold

  • Bedrooms 2
  • Bathrooms 1
  • Reception rooms 1
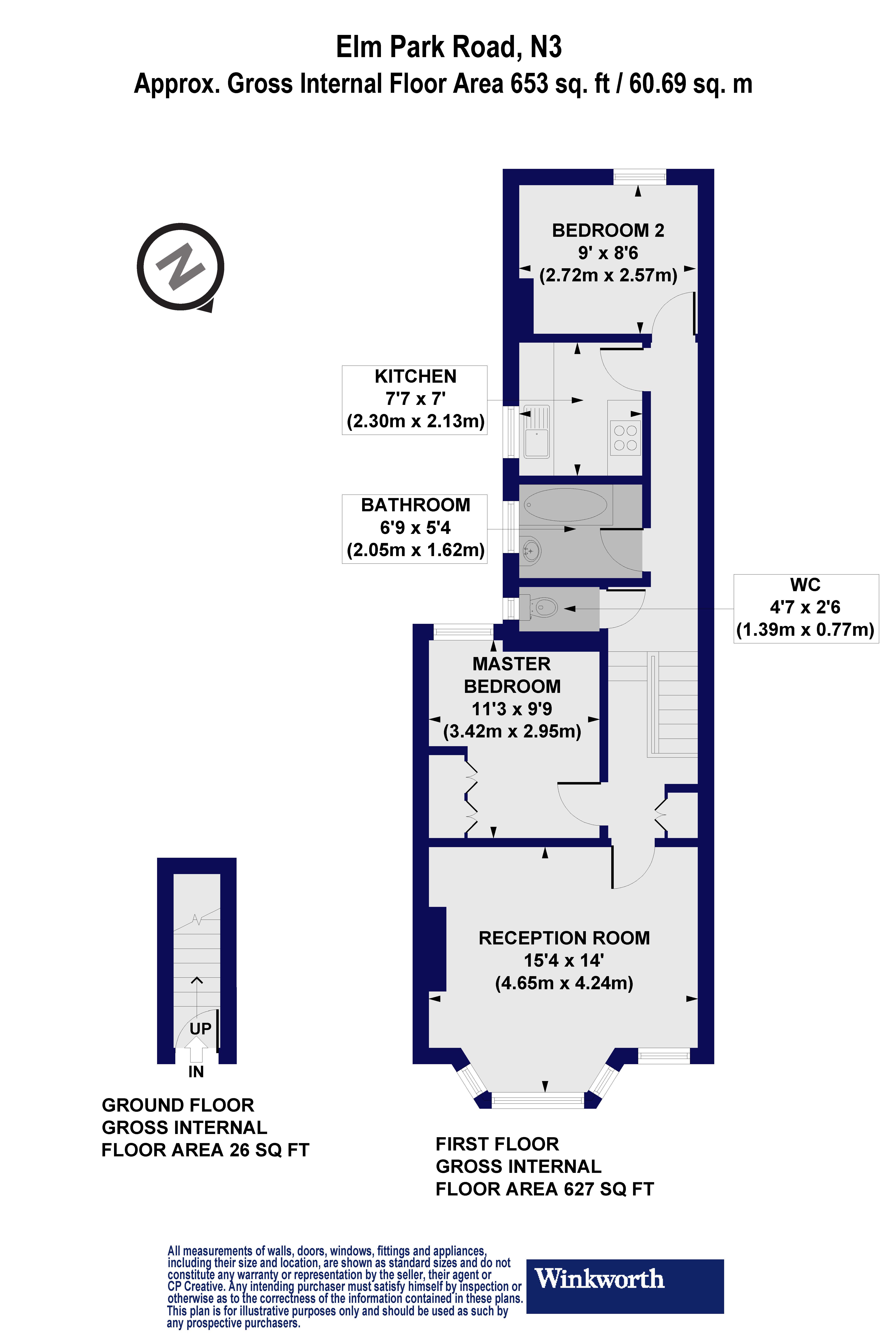
  • Floorplan

PICTURES AND VIDEOS

KEY FEATURES

  • Set on a popular residential turning
  • Period style building
  • First floor
  • Spacious reception room
  • Two bedrooms
  • Long lease
  • Offered chain free

KEY INFORMATION

  • Tenure: Leasehold
  • Ground rent: £250.00 per annum
  • Council Tax Band: D
  • Local Authority: Barnet Council

Description

Situated in a popular turning off Nether Street, within easy access to both West Finchley and Finchley Central underground stations, local schools and recreational parkland, such as Dollis Brook, we are pleased to offer this first floor two bedroom flat. The property does require modernising throughout but is a perfect opportunity for someone to put their own stamp on it! The flat comprises of a spacious reception room, two bedrooms, kitchen, bathroom and separate wc. Further benefits include period features, front garden, extended lease and the potential to extend into the loft stpp. The property is being offered on a chain free basis. An internal viewing is highly recommended.
Introduction text for the mortgage calculator

Mortgage Calculator

Fill in the details below to estimate your monthly repayments:

Approximate monthly repayment:

For more information, please contact Winkworth's mortgage partner, Trinity Financial, on +44 (0)20 7267 9399 and speak to the Trinity team.

Stamp Duty Calculator

Fill in the details below to estimate your stamp duty

The above calculator above is for general interest only and should not be relied upon

6/14
Picture No. 14
Picture No. 11
Picture No. 05
Picture No. 13
Picture No. 04
Picture No. 12
Picture No. 06
Picture No. 08
Picture No. 09
Picture No. 02
Picture No. 15
Picture No. 07
Picture No. 10
Picture No. 03

Meet the Team

Here at Winkworth Finchley Estate Agents, our local knowledge and expertise will give you the advantage. Thanks to 25 years serving the Finchley community, we know the area inside out and we always ensure our service is friendly, professional and personal from start to finish.

See all team members

Got a question about this property?

This site is protected by reCAPTCHA and the Google Privacy Policy and Terms of Service apply.

More Properties like this

New Instruction

Inglis Way, Mill Hill East, London, NW7

£925,000 Leasehold

Under Offer

Spencer Close, Finchley, London, N3

£850,000 Leasehold

Voysey Close, Finchley, London, N3

£740,000 Share of Freehold

Bermont Lodge, 78 Hendon Lane, Finchley, London, N3

£700,000 Leasehold

Under Offer

Hendon Lane, Finchley, London, N3

£690,000 Share of Freehold

Hendon Lane, Finchley, London, N3

OIRO £650,000 Share of Freehold

Online Valuations Aren’t Worth The Paper They’re Printed On.

When online valuations don’t give you the whole picture - try Winkworth’s expert service. Get a free property appraisal. Accurate valuations from our local property experts. No obligation to list with Winkworth. Choose a time convenient for you with our online booking system.

Fill in your details and someone will be in touch soon:

You have provisionally booked a valuation for . Please confirm your details below

We don't have date info available for this property, but if you fill in your details below, someone will be in touch to arrange a date soon

Please fill in the required fields below marked with *

This site is protected by reCAPTCHA and the Google Privacy Policy and Terms of Service apply.