Under Offer
Downhills Park Road, London, N17
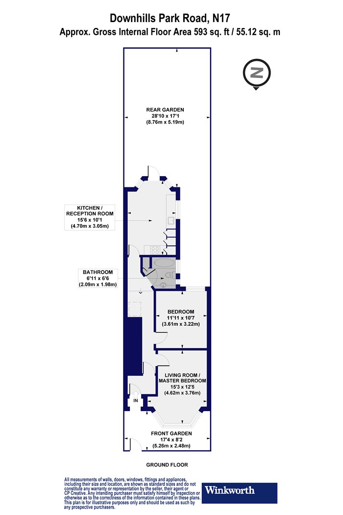
1 bedroom flat/apartment in London
Guide Price £445,000 Leasehold
- 1
- 1
- 1
PICTURES AND VIDEOS




















KEY FEATURES
- Bright and spacious Victorian flat with flexible one-to-two bedroom layout
- Rare private south-facing garden with direct access
- Peaceful residential street within Harringay’s Low Traffic Neighbourhood
- Generous kitchen-diner-reception offering versatile living space
- Modern bathroom, beautifully maintained throughout
- Excellent local cafés, pubs and parks nearby
- Close to Turnpike Lane Tube (0.4 miles) and within easy reach of Seven Sisters (Victoria Line)
- Long lease, over 150 years remaining
KEY INFORMATION
- Tenure: Leasehold
Description
Sole Agent
A bright and beautifully presented Victorian garden flat with a flexible one-to-two bedroom layout, less than a 10-minute walk from Turnpike Lane Tube (Piccadilly Line) and within easy reach of Seven Sisters (Victoria Line).
The flat retains its Victorian proportions, with high ceilings and large windows enhancing the sense of space. At the front, the generously sized reception room is currently arranged for living but could serve as a master bedroom. To the rear, a spacious kitchen-diner-reception with wooden flooring forms the heart of the home and opens directly onto a private south-facing garden - a true highlight, rare in London, and perfect for relaxing or entertaining. A modern bathroom completes the interior.
Downhills Park Road is a peaceful residential street within Harringay’s Low Traffic Neighbourhood. The area is known for its strong sense of community and excellent local amenities, with independent cafés, pubs and restaurants along Green Lanes a particular highlight. Crouch End and Alexandra Palace are also close by, while Downhills Park, Lordship and Belmont Recreation Grounds plentiful green space.
For transport, Turnpike Lane (Piccadilly Line) and Seven Sisters (Victoria Line) are both within easy reach, along with Hornsey station for National Rail services. The nearby CS1 Cycle Superhighway also provides a direct route into the City.
With a long lease of over 150 years and maintained to a high standard throughout, this home is ready to move into. A rare find combining outdoor space, period character and superb connections, one of Harringay’s most appealing pockets.
Sellers’ Thoughts
We've absolutely loved living here for the past eight years. The south-facing garden is a real sun trap, and the flat itself is full of character. Having a local shop just across the road has been so convenient, and the transport links make it easy to get anywhere in London.
We’ve spent countless weekends enjoying the nearby parks, pubs, and restaurants - The Palm for a pint, Perkyns for coffee (or wine!), and Green Lanes for incredible food. Crouch End and Alexandra Palace have been our go-to spots for a wander, a swim at the Lido, or just taking in the amazing views.
It’s been a wonderful home, and we’re sure the next owners will love it just as much as we have.
Winkworth.co.uk
Your local independently owned property agency with an extensive network of London offices.
Est 1835
Follow us on Instagram - @winkworthharringay
Mortgage Calculator
Fill in the details below to estimate your monthly repayments:
Approximate monthly repayment:
For more information, please contact Winkworth's mortgage partner, Trinity Financial, on +44 (0)20 7267 9399 and speak to the Trinity team.
Stamp Duty Calculator
Fill in the details below to estimate your stamp duty
The above calculator above is for general interest only and should not be relied upon
Meet the Team
At Winkworth Harringay Estate Agents, we have a comprehensive team of knowledgeable and personable property experts who are excited about the local area. So whether you're buying, selling, renting or letting or simply need some advice, pop into our office on Green Lanes for the experience and the local knowledge you need.
See all team members