Skip to main content

MyWinkworth

Sold

Picture No. 28
Picture No. 15
Picture No. 12
Picture No. 21
Picture No. 22
Picture No. 17
Picture No. 29
Picture No. 08
Picture No. 30
Picture No. 06
Picture No. 35
Picture No. 23
Picture No. 14
Picture No. 16
Picture No. 24
Picture No. 13
Picture No. 11
Picture No. 09
Picture No. 31
Picture No. 33
Picture No. 05
Picture No. 20
6/14

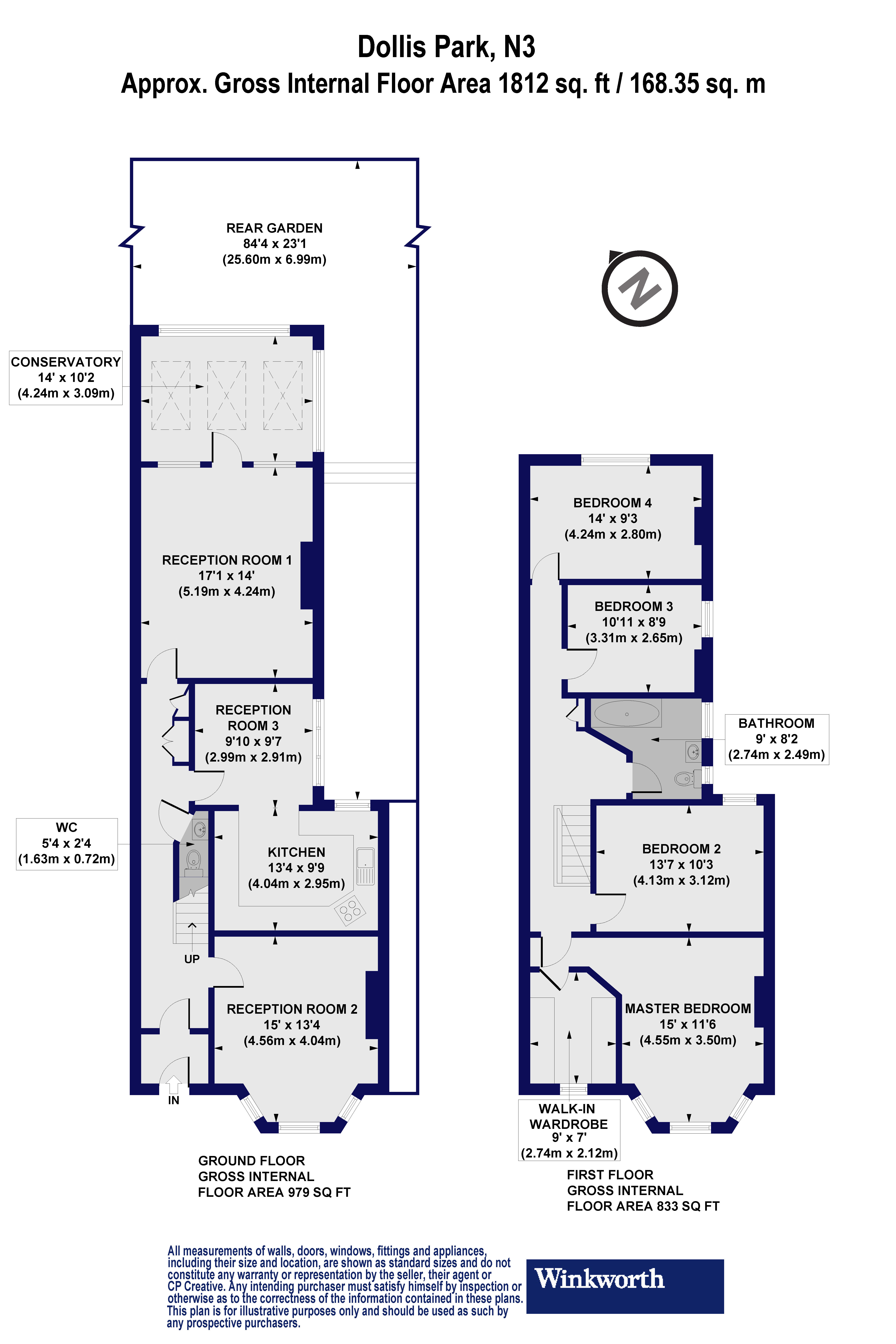
Dollis Park, Finchley, London, N3

4 bedroom house in Finchley

£1,250,000 Freehold

  • Bedrooms 4
  • Bathrooms 1
  • Reception rooms 3
  • Floorplan

PICTURES AND VIDEOS

KEY FEATURES

  • Semi-detached house
  • Character & charm throughout
  • Good Condition
  • Entrance Porch
  • Front & rear reception rooms
  • Eat in kitchen
  • Four double bedrooms
  • Conservatory
  • Off street parking

KEY INFORMATION

  • Tenure: Freehold

Description

We are pleased to offer this wonderful family home set in a much sought-after location within close proximity to all the shops, cafes, restaurants and transport links that the area has to offer. It is also on the doorstep of some High Ofsted Rated schools, places of worship and recreational parkland, such as Dollis Greenwalk and The Brook. This semi-detached house is oozing with character and charm throughout and comprises front reception room, a fully fitted eat-in kitchen with dining area, direct access to a lean-to which forms part of the side access, rear reception room, conservatory leading to rear garden, downstairs cloakroom, four double bedrooms, of which the master bedroom has a walk-in wardrobe and a modern fitted family bathroom. Further benefits include potential to extend into the loft to create further bedrooms (stpp) and off street parking. An internal viewing highly recommended!
Introduction text for the mortgage calculator

Mortgage Calculator

Fill in the details below to estimate your monthly repayments:

Approximate monthly repayment:

For more information, please contact Winkworth's mortgage partner, Trinity Financial, on +44 (0)20 7267 9399 and speak to the Trinity team.

Stamp Duty Calculator

Fill in the details below to estimate your stamp duty

The above calculator above is for general interest only and should not be relied upon

6/14
Picture No. 28
Picture No. 15
Picture No. 12
Picture No. 21
Picture No. 22
Picture No. 17
Picture No. 29
Picture No. 08
Picture No. 30
Picture No. 06
Picture No. 35
Picture No. 23
Picture No. 14
Picture No. 16
Picture No. 24
Picture No. 13
Picture No. 11
Picture No. 09
Picture No. 31
Picture No. 33
Picture No. 05
Picture No. 20

Meet the Team

Here at Winkworth Finchley Estate Agents, our local knowledge and expertise will give you the advantage. Thanks to 25 years serving the Finchley community, we know the area inside out and we always ensure our service is friendly, professional and personal from start to finish.

See all team members

Got a question about this property?

This site is protected by reCAPTCHA and the Google Privacy Policy and Terms of Service apply.

More Properties like this

Church Crescent, Finchley, London, N3

£1,800,000 Freehold

Freston Park, Finchley, London, N3

£1,700,000 Freehold

Under Offer

Etchingham Park Road, Finchley, London, N3

Offers in excess of £1,500,000 Freehold

Under Offer

Etchingham Park Road, Finchley, London, N3

Offers in excess of £1,500,000 Freehold

Claremont Park, Finchley, London, N3

£1,490,000 Freehold

Hendon Lane, Finchley, London, N3

Offers in excess of £1,395,000 Freehold

Online Valuations Aren’t Worth The Paper They’re Printed On.

When online valuations don’t give you the whole picture - try Winkworth’s expert service. Get a free property appraisal. Accurate valuations from our local property experts. No obligation to list with Winkworth. Choose a time convenient for you with our online booking system.

Fill in your details and someone will be in touch soon:

You have provisionally booked a valuation for . Please confirm your details below

We don't have date info available for this property, but if you fill in your details below, someone will be in touch to arrange a date soon

Please fill in the required fields below marked with *

This site is protected by reCAPTCHA and the Google Privacy Policy and Terms of Service apply.