Skip to main content

MyWinkworth

Sold

Picture No. 02
Picture No. 03
Picture No. 04
Picture No. 05
Picture No. 06
Picture No. 07
Picture No. 09
Picture No. 10
Picture No. 11
6/14

Crown Lane Gardens, Crown Lane, London, SW16

2 bedroom flat/apartment in Crown Lane

Offers in excess of £425,000 Share of Freehold

  • Bedrooms 2
  • Bathrooms 1
  • Reception rooms 1
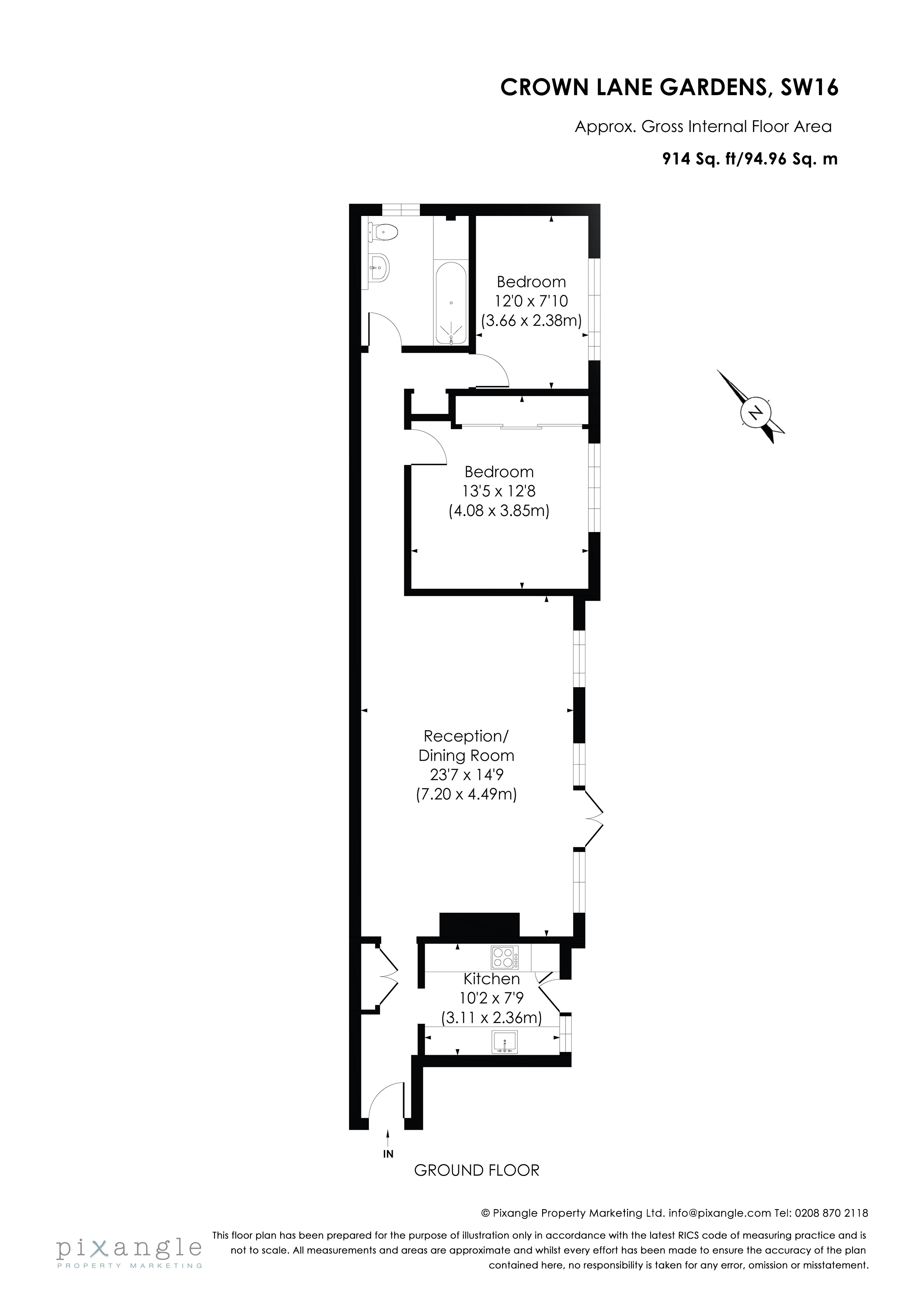
  • Floorplan

PICTURES AND VIDEOS

KEY FEATURES

  • 1930's Mansion flat
  • Immaculately presented
  • 914 Sq. ft approx
  • Two bedrooms
  • Fantastic communal garden
  • Share of Freehold

KEY INFORMATION

  • Tenure: Share of Freehold
  • Council Tax Band: D

Description

An immaculately presented two double bedroom 1930's mansion flat. Further accommodation comprises; reception room, kitchen, bathroom and fantastic communal garden. Across the road is the leafy Streatham common, where you'll find the stunning rookery with its monthly farmers market, woodland to explore and recently renovated Rookery cafe. Streatham and West Norwood high streets are both a 20 minute walk away and the bus stop directly outside the development goes to Crystal Palace in less than 10 minutes where you'll find a wide range of shops, restaurants, bars and the newly opened Everyman cinema. From the same bus stop you can get to Tooting, Balham and Clapham within 30 minutes or less. West Norwood station with its frequent services to London Bridge and Victoria is 0.6 of a mile away.

Council Tax Band D
Introduction text for the mortgage calculator

Mortgage Calculator

Fill in the details below to estimate your monthly repayments:

Approximate monthly repayment:

For more information, please contact Winkworth's mortgage partner, Trinity Financial, on +44 (0)20 7267 9399 and speak to the Trinity team.

Stamp Duty Calculator

Fill in the details below to estimate your stamp duty

The above calculator above is for general interest only and should not be relied upon

6/14
Picture No. 02
Picture No. 03
Picture No. 04
Picture No. 05
Picture No. 06
Picture No. 07
Picture No. 09
Picture No. 10
Picture No. 11

Meet the Team

Our team at Winkworth West Norwood Estate Agents are here to support and advise our customers when they need it most. We understand that buying, selling, letting or renting can be daunting and often emotionally meaningful. We are there, when it matters, to make the journey as stress-free as possible.

See all team members

Got a question about this property?

This site is protected by reCAPTCHA and the Google Privacy Policy and Terms of Service apply.

More Properties like this

Knights Hill, West Norwood, London, SE27

Offers in excess of £600,000 Share of Freehold

Under Offer

Wolfington Road, West Norwood, London, SE27

£600,000 Share of Freehold

Under Offer

Martell Road, West Dulwich, London, SE21

£575,000 Share of Freehold

Under Offer

St Julians Farm Road, West Norwood, London, SE27

£560,000 Leasehold

Under Offer

Casewick Road, West Norwood, London, SE27

£535,000 Leasehold

Under Offer

Selsdon Road, West Norwood, London, SE27

£525,000 Leasehold

Online Valuations Aren’t Worth The Paper They’re Printed On.

When online valuations don’t give you the whole picture - try Winkworth’s expert service. Get a free property appraisal. Accurate valuations from our local property experts. No obligation to list with Winkworth. Choose a time convenient for you with our online booking system.

Fill in your details and someone will be in touch soon:

You have provisionally booked a valuation for . Please confirm your details below

We don't have date info available for this property, but if you fill in your details below, someone will be in touch to arrange a date soon

Please fill in the required fields below marked with *

This site is protected by reCAPTCHA and the Google Privacy Policy and Terms of Service apply.