Skip to main content

MyWinkworth

Sold

Picture No. 10
Picture No. 03
Picture No. 13
Picture No. 04
Picture No. 11
Picture No. 07
Picture No. 08
Picture No. 05
Picture No. 09
Picture No. 06
Picture No. 14
6/14

Cornwall Road, London, N15

1 bedroom flat/apartment in London

£395,000 Leasehold

  • Bedrooms 1
  • Bathrooms 1
  • Reception rooms 1
  • Floorplan

PICTURES AND VIDEOS

KEY FEATURES

  • One Bedroom
  • Seperate Reception
  • Kitchen Diner
  • Modern Bathroom
  • Own Front Door
  • Private Rear Garden

KEY INFORMATION

  • Tenure: Leasehold
  • Lease Length: 96 yrs left

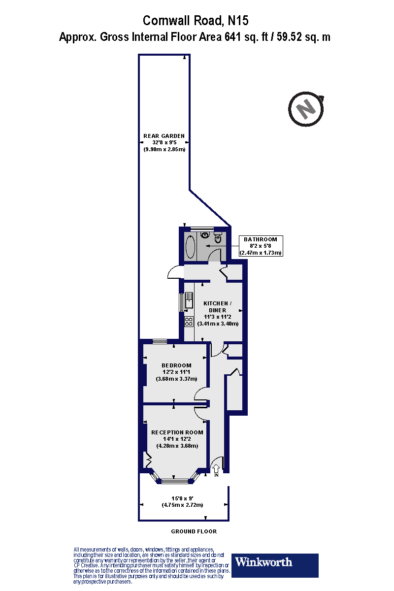
Description

This purpose-built one-bedroom ground floor maisonette offers inviting spaces, charm, and its own private garden, making it an ideal first-time buy.

Sole Agents.

Built for purpose, this one bedroom ground floor maisonette makes a perfect first time buy, Filled with inviting spaces, charm and benefitting from its own private garden, this really isnt one to be missed.

As you enter through your own front door, a entrance hallway guides you to all spaces. To the front, a bright and comfortable reception room can be found. Complete with bespoke shelving and cabinetry, a feature fireplace and light streaming in through the wide bay fronted windows, this is a great space to unwind at the end of a long day.

continuing down the hall, the double bedroom, with views over the garden can be found. With calming colours and carpeted floors, you couldnt ask for much more.

Giving new meaning to the "heart of the home", a central kitchen diner makes an amazing space for entertaining. Adorned with wooden clad kitchen units and ample worktop space. From the kitchen, you have access to the East facing rear garden. A real sanctuary, the sellers have transformed this space into a really lovely garden. Sitting here, you wouldnt know you were in the heart of this bustling neighbourhood.

Entering back into the flat, a modern bathroom completes the flat.

Please contact the Sales department at Winkworth Harringay office to arrange an appointment to view 020 8800 5151 - [email protected]

Winkworth.co.uk

Your local independently owned property agency with a network of 61 London offices.

Est 1835

Follow us on instagram @winkworth_harringay
Introduction text for the mortgage calculator

Mortgage Calculator

Fill in the details below to estimate your monthly repayments:

Approximate monthly repayment:

For more information, please contact Winkworth's mortgage partner, Trinity Financial, on +44 (0)20 7267 9399 and speak to the Trinity team.

Stamp Duty Calculator

Fill in the details below to estimate your stamp duty

The above calculator above is for general interest only and should not be relied upon

6/14
Picture No. 10
Picture No. 03
Picture No. 13
Picture No. 04
Picture No. 11
Picture No. 07
Picture No. 08
Picture No. 05
Picture No. 09
Picture No. 06
Picture No. 14

Meet the Team

At Winkworth Harringay Estate Agents, we have a comprehensive team of knowledgeable and personable property experts who are excited about the local area. So whether you're buying, selling, renting or letting or simply need some advice, pop into our office on Green Lanes for the experience and the local knowledge you need.

See all team members

Got a question about this property?

This site is protected by reCAPTCHA and the Google Privacy Policy and Terms of Service apply.

More Properties like this

Under Offer

Green Lanes, London, N4

£750,000 Share of Freehold

Under Offer

Burgoyne Road, London, N4

Guide Price £735,000 Share of Freehold

Under Offer

Sydney Road, London, N8

Guide Price £725,000 Share of Freehold

Lausanne Road, London, N8

£675,000 Leasehold

Under Offer

Duckett Road, London, Haringey, N4

Guide Price £635,000 Share of Freehold

Hermitage Road, London, N4

£625,000 Leasehold

Online Valuations Aren’t Worth The Paper They’re Printed On.

When online valuations don’t give you the whole picture - try Winkworth’s expert service. Get a free property appraisal. Accurate valuations from our local property experts. No obligation to list with Winkworth. Choose a time convenient for you with our online booking system.

Fill in your details and someone will be in touch soon:

You have provisionally booked a valuation for . Please confirm your details below

We don't have date info available for this property, but if you fill in your details below, someone will be in touch to arrange a date soon

Please fill in the required fields below marked with *

This site is protected by reCAPTCHA and the Google Privacy Policy and Terms of Service apply.