Skip to main content

MyWinkworth

Sold

Picture No. 06
Picture No. 07
Picture No. 08
Picture No. 03
Picture No. 10
Picture No. 11
Picture No. 09
Picture No. 12
Picture No. 13
Picture No. 04
Picture No. 05
6/14

College Gardens, London, SW17

3 bedroom house in London

£750,000 Freehold

  • Bedrooms 3
  • Bathrooms 2
  • Reception rooms 1
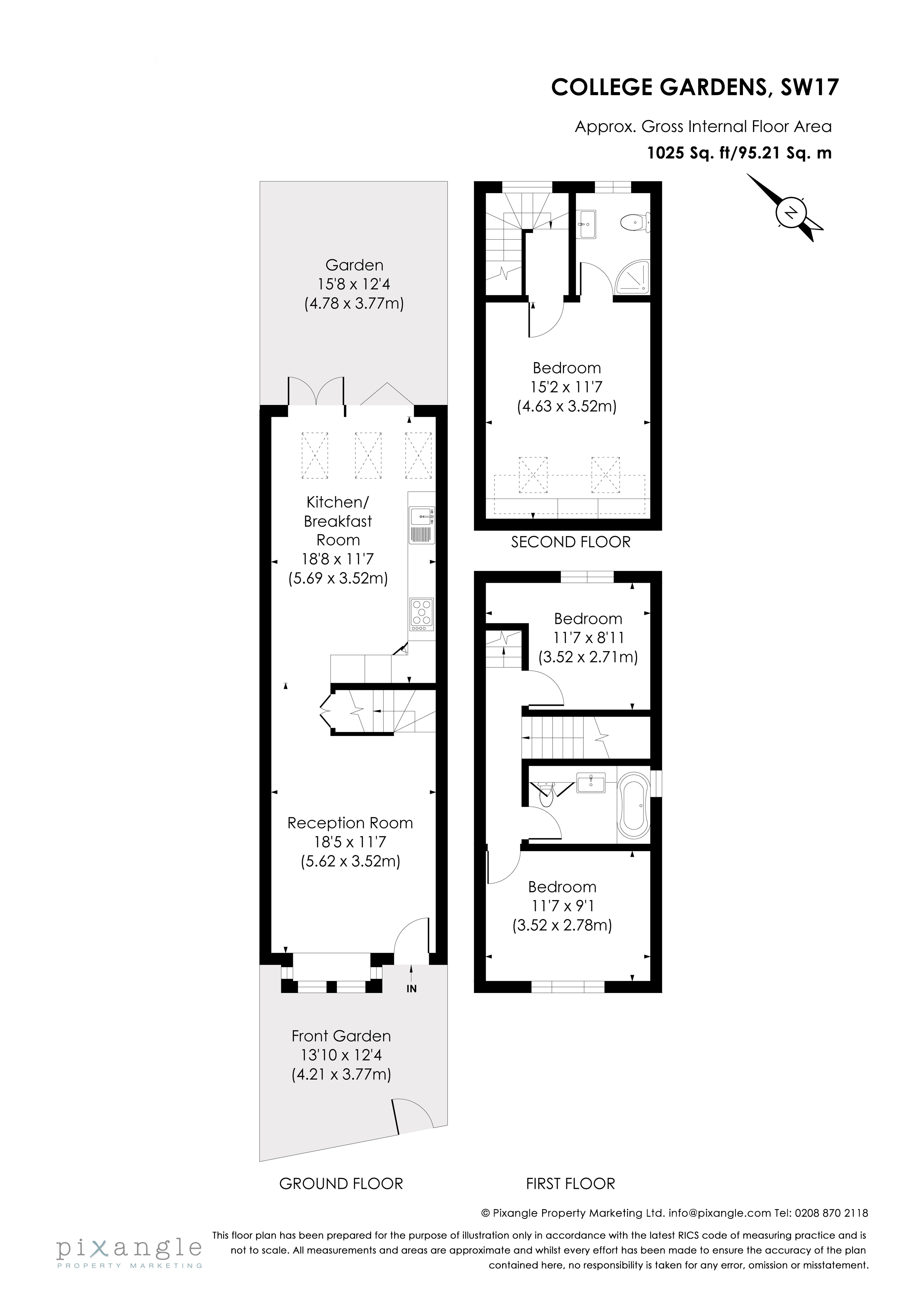
  • Floorplan

PICTURES AND VIDEOS

KEY INFORMATION

  • Tenure: Freehold

Description

This fabulous family home has been recently renovated by the current owners to the highest standard and offers a fabulous balance of versatile living throughout. The house comprises a large reception room which in turn flows into an impressive open plan kitchen with ample storage and bi-fold doors leading onto the garden. On the first floor there are two well proportioned double bedrooms and beautiful family bathroom. On the second floor there is a large master bedroom which boasts a large en-suite shower room. The rear garden has been beuatifully landscaped with mature shrubs and plentiful space to relax. The property also benefits from a single garage.

College Gardens is a tranquil and peaceful, yet exceptionally well located development just minutes walk from the green open spaces of Wandsworth Common, the bars and restaurants of Bellevue Road and the transport facilities of Wandsworth Common (train) and Tooting Bec (Northern Line Underground).
Introduction text for the mortgage calculator

Mortgage Calculator

Fill in the details below to estimate your monthly repayments:

Approximate monthly repayment:

For more information, please contact Winkworth's mortgage partner, Trinity Financial, on +44 (0)20 7267 9399 and speak to the Trinity team.

Stamp Duty Calculator

Fill in the details below to estimate your stamp duty

The above calculator above is for general interest only and should not be relied upon

6/14
Picture No. 06
Picture No. 07
Picture No. 08
Picture No. 03
Picture No. 10
Picture No. 11
Picture No. 09
Picture No. 12
Picture No. 13
Picture No. 04
Picture No. 05

Meet the Team

Our team at Winkworth Tooting Estate Agents are here to support and advise our customers when they need it most. We understand that buying, selling, letting or renting can be daunting and often emotionally meaningful. We are there, when it matters, to make the journey as stress-free as possible.

See all team members

Got a question about this property?

This site is protected by reCAPTCHA and the Google Privacy Policy and Terms of Service apply.

More Properties like this

Atkinson Close, London, SW20

£4,000,000 Freehold

Undine Street, London, SW17

£1,200,000 Freehold

Under Offer

Graveney Road, London, SW17

£1,050,000

Under Offer

Noyna Road, London, SW17

£1,000,000 Freehold

Under Offer

Fairlight Road, London, SW17

£940,000 Freehold

Pevensey Road, London, SW17

£940,000 Freehold

Online Valuations Aren’t Worth The Paper They’re Printed On.

When online valuations don’t give you the whole picture - try Winkworth’s expert service. Get a free property appraisal. Accurate valuations from our local property experts. No obligation to list with Winkworth. Choose a time convenient for you with our online booking system.

Fill in your details and someone will be in touch soon:

You have provisionally booked a valuation for . Please confirm your details below

We don't have date info available for this property, but if you fill in your details below, someone will be in touch to arrange a date soon

Please fill in the required fields below marked with *

This site is protected by reCAPTCHA and the Google Privacy Policy and Terms of Service apply.