Skip to main content

MyWinkworth

Picture No. 07
Picture No. 12
Picture No. 11
Picture No. 08
Picture No. 09
Picture No. 10
Picture No. 04
Picture No. 03
Picture No. 05
Picture No. 06
Floorplan
Floorplan
Picture No. 02
6/14

Bream Close, London, N17

2 bedroom flat/apartment

£385,000 Leasehold

  • Bedrooms 2
  • Bathrooms 1
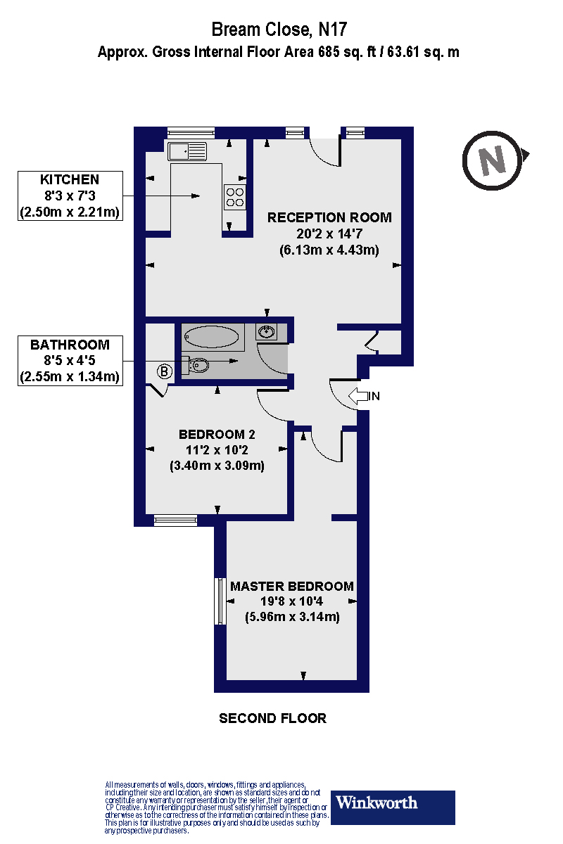
  • Dimensions 685 sq ft
    63 sq m
  • Floorplan

PICTURES AND VIDEOS

KEY FEATURES

  • Riverside apartment with tranquil water views.
  • Located close to Tottenham Hale station (Underground, mainline, and bus).
  • Surrounded by picturesque wetlands and green spaces.
  • Close to local gems like Ferry Boat Inn and Engine House Café.
  • Easy access to retail parks, gyms, and supermarkets.
  • Vibrant community with a growing cultural scene.
  • Well-managed development in a prime location.
  • Chain Free.

KEY INFORMATION

  • Tenure: Leasehold

Description

Set on the second floor of a riverside block on Bream Close, this two bedroom flat sits right alongside the River Lea, with open views across the water.



The flat has a clear, practical layout, with a central hallway that leads through to a good sized reception room at the front. This is the main living space and feels bright and open, with wide windows and a juliet balcony. There is loads of room for both seating and a dining table. From here, the outlook across the river and trees is a constant feature and one of the real strengths of the flat.

The kitchen is set just off the reception room and is arranged in a U shape, with fitted units, worktop space and integrated appliances. It stays nicely connected to the living area without being too open plan.

Both bedrooms are genuine doubles. The main bedroom is particularly well proportioned, with plenty of space for wardrobes and additional furniture. The second bedroom sits close to the bathroom and works well as a guest room, home office or second double, depending on needs. The bathroom is neatly finished with a white suite and a shower over the bath.

Residents parking is available within the development.

Bream Close is a quiet riverside turning, tucked just off the main stretch of Tottenham Hale. The towpath, wetlands and open green space are right on the doorstep, while Tottenham Hale station, shops and cafés are all within easy reach.

Marketed by

Winkworth Harringay

Properties for sale in Harringay

Arrange a Viewing

Fill in the form below to arrange your property viewing.

This site is protected by reCAPTCHA and the Google Privacy Policy and Terms of Service apply.
Introduction text for the mortgage calculator

Mortgage Calculator

Fill in the details below to estimate your monthly repayments:

Approximate monthly repayment:

For more information, please contact Winkworth's mortgage partner, Trinity Financial, on +44 (0)20 7267 9399 and speak to the Trinity team.

Stamp Duty Calculator

Fill in the details below to estimate your stamp duty

The above calculator above is for general interest only and should not be relied upon

6/14
Picture No. 07
Picture No. 12
Picture No. 11
Picture No. 08
Picture No. 09
Picture No. 10
Picture No. 04
Picture No. 03
Picture No. 05
Picture No. 06
Floorplan
Floorplan
Picture No. 02

Meet the Team

At Winkworth Harringay Estate Agents, we have a comprehensive team of knowledgeable and personable property experts who are excited about the local area. So whether you're buying, selling, renting or letting or simply need some advice, pop into our office on Green Lanes for the experience and the local knowledge you need.

See all team members

Got a question about this property?

This site is protected by reCAPTCHA and the Google Privacy Policy and Terms of Service apply.

More Properties like this

Under Offer

Burgoyne Road, London, N4

Guide Price £735,000 Share of Freehold

Under Offer

Sydney Road, London, N8

Guide Price £725,000 Share of Freehold

Under Offer

Wightman Road, London, N4

Guide Price £650,000 Leasehold

Frankum Mews, London, N22

£649,950 Leasehold

Under Offer

Duckett Road, London, Haringey, N4

Guide Price £635,000 Share of Freehold

New Instruction

Coningsby Road, London, N4

£625,000 Share of Freehold

Online Valuations Aren’t Worth The Paper They’re Printed On.

When online valuations don’t give you the whole picture - try Winkworth’s expert service. Get a free property appraisal. Accurate valuations from our local property experts. No obligation to list with Winkworth. Choose a time convenient for you with our online booking system.

Fill in your details and someone will be in touch soon:

You have provisionally booked a valuation for . Please confirm your details below

We don't have date info available for this property, but if you fill in your details below, someone will be in touch to arrange a date soon

Please fill in the required fields below marked with *

This site is protected by reCAPTCHA and the Google Privacy Policy and Terms of Service apply.