Skip to main content

MyWinkworth

Sold

Reception Room
Principal Bedroom
Kitchen
Hallway
Bathroom
Bedroom 2
Reception Room
Communal Courtyard
6/14

Aldrington Road, London, SW16

2 bedroom flat/apartment in London

£370,000 Leasehold

  • Bedrooms 2
  • Bathrooms 1
  • Reception rooms 1
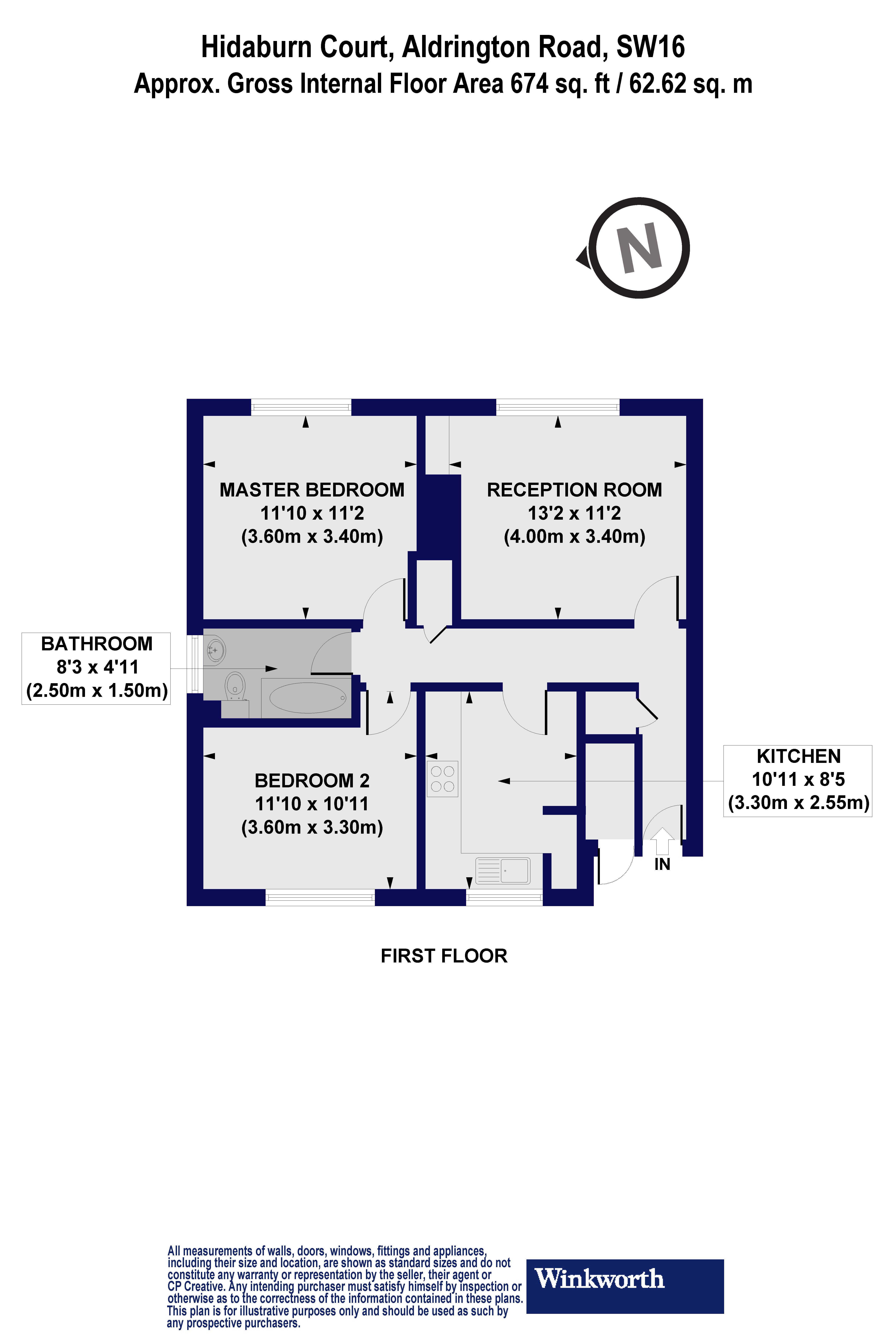
  • Dimensions 693 sq ft
    64 sq m
  • Floorplan

PICTURES AND VIDEOS

KEY FEATURES

  • Two double bedrooms
  • Reception room with large windows
  • Modern separate kitchen
  • Contemporary bathroom
  • Communal gardens
  • Close to Streatham Station (Thameslink) and Tooting Bec underground (Northern Line)

KEY INFORMATION

  • Tenure: Leasehold
  • Lease Length: 98 yrs left
  • Service charge: £932.00 per annum
  • Council Tax Band: B
  • Local Authority: Wandsworth Borough Council

Description

This well-presented two-bedroom first-floor ex-local authority flat offers bright and generously proportioned living spaces in a highly convenient location. The property features a spacious reception room with large windows, allowing plenty of natural light to create a warm and inviting atmosphere. The separate modern kitchen provides ample storage and workspace, ideal for everyday use. Both double bedrooms are generously sized, offering comfortable accommodation, and the bathroom is simple and functional.

The flat also benefits from access to communal gardens, perfect for outdoor relaxation. Additionally, there is a private bin and bike store, offering practical storage solutions — a feature that could be valuable for many buyers.

Hidaburn Court is ideally located with Streatham Common, the Lido, and the Athletics Track just a short distance away, providing excellent leisure options. Streatham Station (Thameslink) is within easy reach, offering direct access to the City, with Tooting Bec underground station (Northern Line) also nearby for further transport links.

Residents can take advantage of a variety of local amenities, including cafes, restaurants, gyms, and shops, ensuring a convenient urban lifestyle.

This flat represents a great opportunity for first-time buyers, professionals, or investors seeking a well-located home in an area with excellent transport connections and access to green spaces.
Introduction text for the mortgage calculator

Mortgage Calculator

Fill in the details below to estimate your monthly repayments:

Approximate monthly repayment:

For more information, please contact Winkworth's mortgage partner, Trinity Financial, on +44 (0)20 7267 9399 and speak to the Trinity team.

Stamp Duty Calculator

Fill in the details below to estimate your stamp duty

The above calculator above is for general interest only and should not be relied upon

6/14
Reception Room
Principal Bedroom
Kitchen
Hallway
Bathroom
Bedroom 2
Reception Room
Communal Courtyard

Meet the Team

Our team at Winkworth Streatham Estate Agents are here to support and advise our customers when they need it most. We understand that buying, selling, letting or renting can be daunting and often emotionally meaningful. We are there, when it matters, to make the journey as stress-free as possible.

See all team members

Got a question about this property?

This site is protected by reCAPTCHA and the Google Privacy Policy and Terms of Service apply.

More Properties like this

Kirkstall Road, London, SW2

£725,000 Share of Freehold

Kirkstall Road, London, SW2

£725,000 Share of Freehold

Kirkstall Road, London, SW2

£625,000 Share of Freehold

Kirkstall Road, London, SW2

£625,000 Share of Freehold

Conyers Road, London, SW16

£600,000 Leasehold

Salford Road, London, SW2

Offers in excess of £600,000 Leasehold

Online Valuations Aren’t Worth The Paper They’re Printed On.

When online valuations don’t give you the whole picture - try Winkworth’s expert service. Get a free property appraisal. Accurate valuations from our local property experts. No obligation to list with Winkworth. Choose a time convenient for you with our online booking system.

Fill in your details and someone will be in touch soon:

You have provisionally booked a valuation for . Please confirm your details below

We don't have date info available for this property, but if you fill in your details below, someone will be in touch to arrange a date soon

Please fill in the required fields below marked with *

This site is protected by reCAPTCHA and the Google Privacy Policy and Terms of Service apply.