Skip to main content

MyWinkworth

New Instruction

Garden
Front Reception Room
Entrance Hall
Exterior Front
Rear Reception Room
Fitted Kitchen
Breakfast Room
Bedroom One
Bathroom
Bedroom
Shower Room
Bedroom
Bedroom
Exterior Front
Exterior Rear
6/14

Woodbourne Avenue, London, SW16

5 bedroom house in London

£865 per week (£3,750 per month) Fees may apply

  • Bedrooms 5
  • Bathrooms 2
  • Reception rooms 3
  • Part-furnished
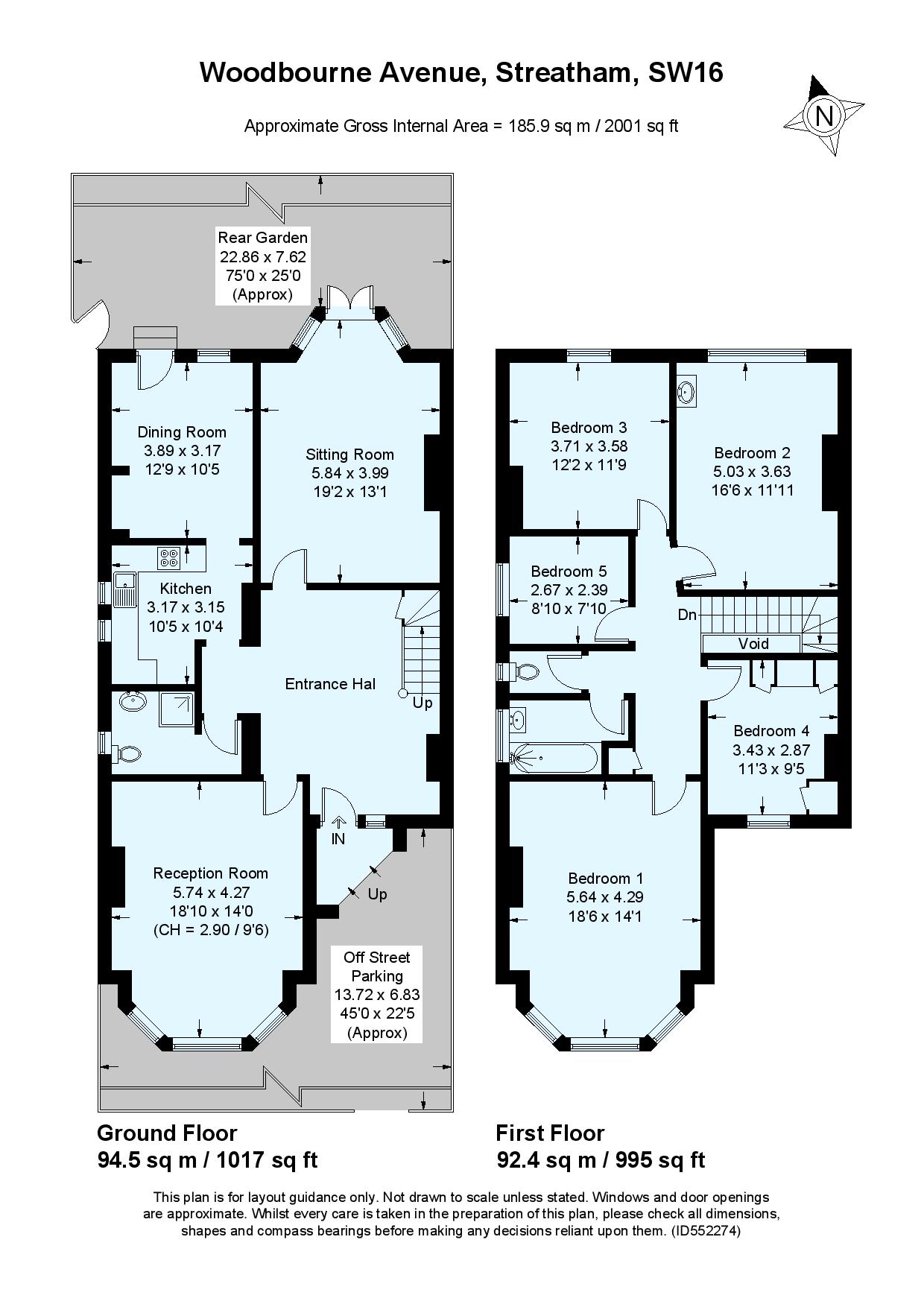
  • Dimensions 2001 sq ft
    185 sq m
  • Floorplan

PICTURES AND VIDEOS

KEY FEATURES

  • Large Edwardian Semi-Detached House
  • Great Location
  • Suitable for Sharers
  • Large Entrance Hall
  • Five Bedrooms
  • Two Bathrooms
  • Kitchen
  • Breakfast Room
  • Two Reception Rooms
  • 75ft Garden
  • Off-Street Parking
  • Part/Furnished
  • Available NOW

KEY INFORMATION

  • Deposit: 5 Weeks rent
  • Council Tax Band: F
  • Local Authority: Lambeth

Description

***HMO Licence in place***Located on one of Streatham's premier roads connecting Tooting Bec Common to Streatham High Road, the property has well laid out accommodation of approximately 2,000 sq.ft. over two floors.
Features include a large, level lawned rear garden that extends about 75ft. and a wide, welcoming, grand ground floor entrance hall. There are two large reception rooms to the front and rear, a fitted kitchen, a breakfast room and spacious bedrooms of different sizes on the first floor.
Woodbourne Avenue is a quiet residential street well placed for all the local amenities and the bustling shops, cafes and restaurants on Streatham High Road. There is a local library, cinema, gyms and some excellent schools nearby. Access to Balham/Clapham and Dulwich is an easy few minutes by car as is commuting into central London and the City from nearby Streatham Hill and Streatham stations.
The property is offered part/furnished and is available to let now.

Located on one of Streatham's premier roads connecting Tooting Bec Common to Streatham High Road, the property has well laid out accommodation of approximately 2,000 sq.ft. over two floors.
Features include a large, level lawned rear garden that extends about 75ft. and a wide, welcoming, grand ground floor entrance hall. There are two large reception rooms to the front and rear, a fitted kitchen, a breakfast room and spacious bedrooms of different sizes on the first floor.
Woodbourne Avenue is a quiet residential street well placed for all the local amenities and the bustling shops, cafes and restaurants on Streatham High Road. There is a local library, cinema, gyms and some excellent schools nearby. Access to Balham/Clapham and Dulwich is an easy few minutes by car as is commuting into central London and the City from nearby Streatham Hill and Streatham stations.
The property is offered part/furnished and is available to let now.

Location

Streatham/Streatham Hill

Marketed by

Winkworth Streatham

Properties for rent in Streatham

Arrange a Viewing

Fill in the form below to arrange your property viewing.

This site is protected by reCAPTCHA and the Google Privacy Policy and Terms of Service apply.
6/14
Garden
Front Reception Room
Entrance Hall
Exterior Front
Rear Reception Room
Fitted Kitchen
Breakfast Room
Bedroom One
Bathroom
Bedroom
Shower Room
Bedroom
Bedroom
Exterior Front
Exterior Rear

Meet the Team

Our team at Winkworth Streatham Estate Agents are here to support and advise our customers when they need it most. We understand that buying, selling, letting or renting can be daunting and often emotionally meaningful. We are there, when it matters, to make the journey as stress-free as possible.

See all team members

Got a question about this property?

This site is protected by reCAPTCHA and the Google Privacy Policy and Terms of Service apply.

More Properties like this

Let Agreed

Beechdale Road, London, SW2

£1,269 per week (£5,500 per month)

Let Agreed

Beechdale Road, London, SW2

£1,038 per week (£4,500 per month)

Let Agreed

Hydethorpe Road, London, SW12

£1,015 per week (£4,400 per month)

Let Agreed

Braxted Park, London, SW16

£923 per week (£4,000 per month)

Let Agreed

Pakefield Mews, London, SW2

£923 per week (£4,000 per month)

Greyhound Lane, London, SW16

£877 per week (£3,800 per month)

Online Valuations Aren’t Worth The Paper They’re Printed On.

When online valuations don’t give you the whole picture - try Winkworth’s expert service. Get a free property appraisal. Accurate valuations from our local property experts. No obligation to list with Winkworth. Choose a time convenient for you with our online booking system.

Fill in your details and someone will be in touch soon:

You have provisionally booked a valuation for . Please confirm your details below

We don't have date info available for this property, but if you fill in your details below, someone will be in touch to arrange a date soon

Please fill in the required fields below marked with *

This site is protected by reCAPTCHA and the Google Privacy Policy and Terms of Service apply.