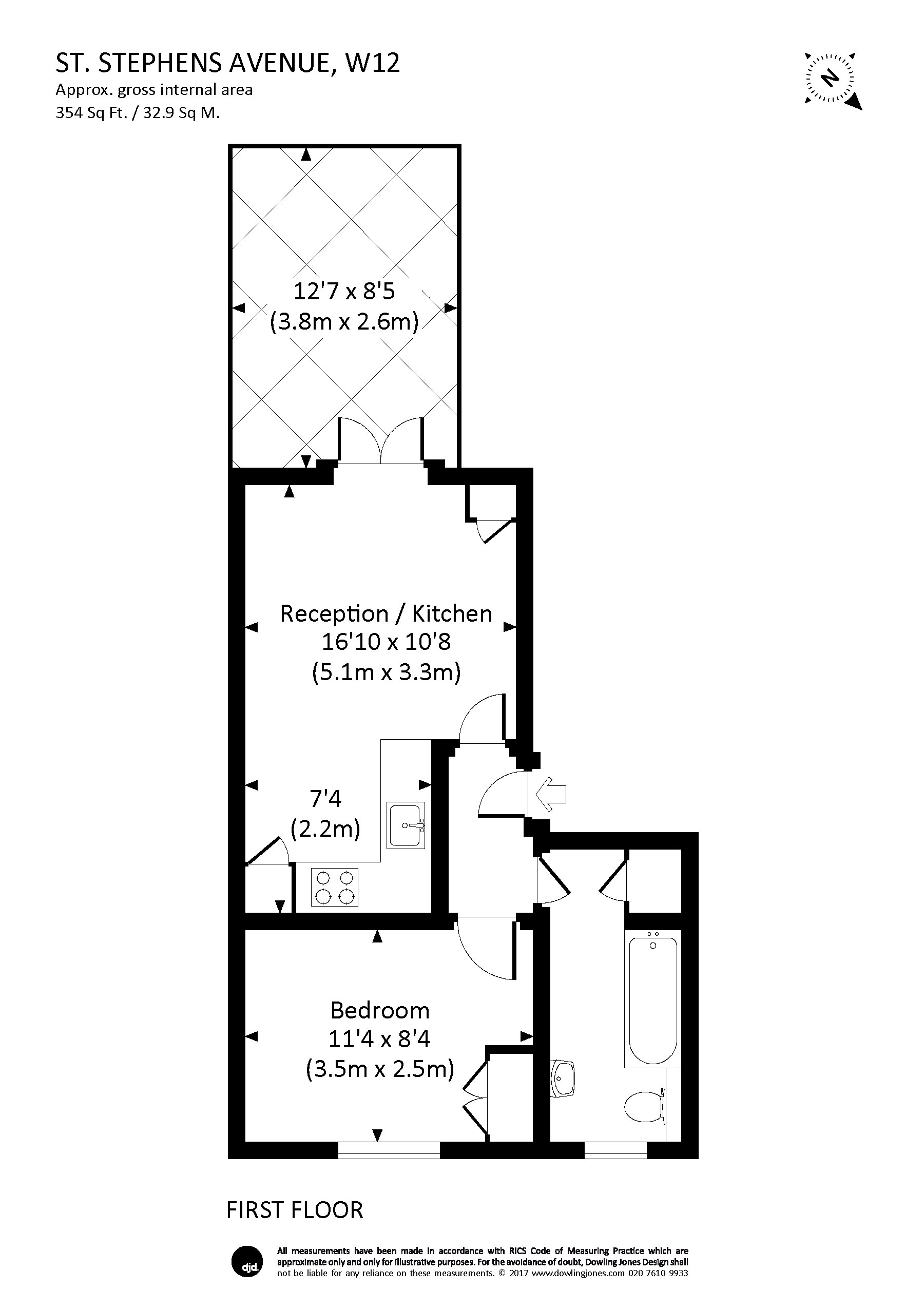
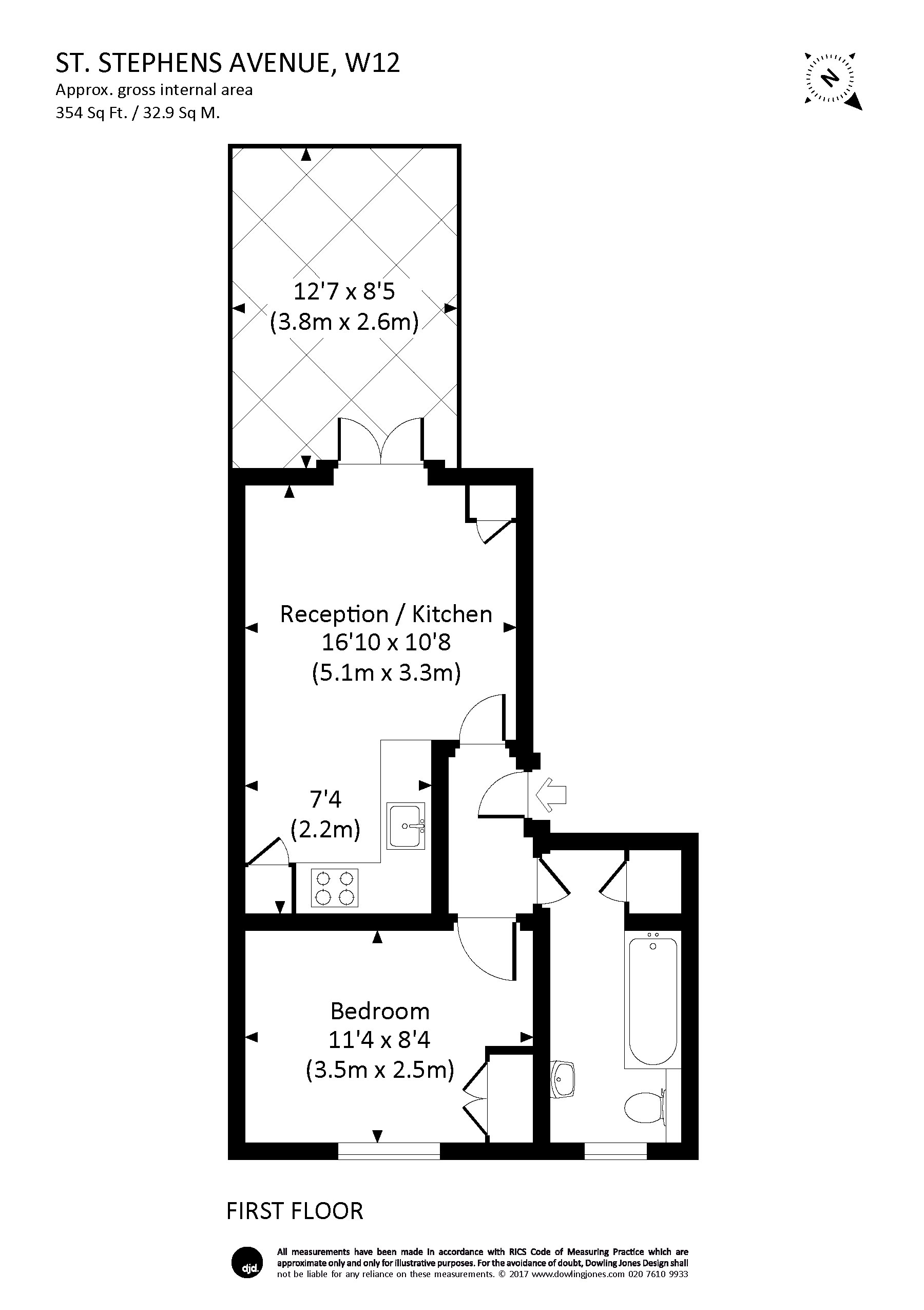
St Stephens Ave, London, W12
1 bedroom flat/apartment
£415 per week
- 1
- 1
- 1
- Unfurnished
PICTURES AND VIDEOS










KEY INFORMATION
- Deposit: Fixed £2,076.92
- Council Tax Band: C
Description
The property comprises an open plan kitchen which has an induction hob/reception room leading out to a private terrace, one double bedroom and bathroom.
St Stephens Avenue is an attractive tree lined street in close proximity Shepherds Bush Green, the closest tube stations are Shepherds Bush and Shepherds Bush Market.
NB. This property does not qualify, and there is no entitlement, to a Hammersmith & Fulham residents car parking permit, other than for those with disabilities who are blue badge holders
As well as paying rent, as agreed (usually monthly in advance), you will also have to pay the following:
Before the tenancy starts:
Deposit (equivalent to five weeks).
Stamp Duty (on tenancies that amount to over £125,000)
During the tenancy:
Utilities - gas, electricity, water and telephone (unless stated it is not included in the rent)
Council Tax
Television licence
Installation of cable/satellite (if permitted and applicable)
Subscription to cable/satellite supplier
Insurance (for your personal and own contents)
Garden maintenance (if applicable)
At the end of the tenancy:
Professional cleaning of the property
ACCESSIBILITY
- Unsuitable For Wheelchairs
Marketed by
Winkworth Shepherds Bush & Acton
Properties for rent in Shepherds Bush & ActonArrange a Viewing
Fill in the form below to arrange your property viewing.
Meet the Team
At Winkworth Shepherds Bush Estate Agents, we pride ourselves on offering high standards and a personal service. As the longest serving agent in W12, we've been matching people with homes for over 30 years from our prominent position on Uxbridge Road. We love our area and between us, our close-knit team of 15 has over 120 years combined experience, so you'll be in safe hands.
See all team members