Let Agreed
St Peters Grove, Hammersmith, London, W6
3 bedroom house
£750 per week
- 3
- 2
- 1
- Furnished
PICTURES AND VIDEOS









KEY FEATURES
- 2 Bedrooms
- Kitchen
- 2 Reception Rooms
- En suite Bathroom
- En suite W.C.
- Shower Room
- Utility Room
- Garden
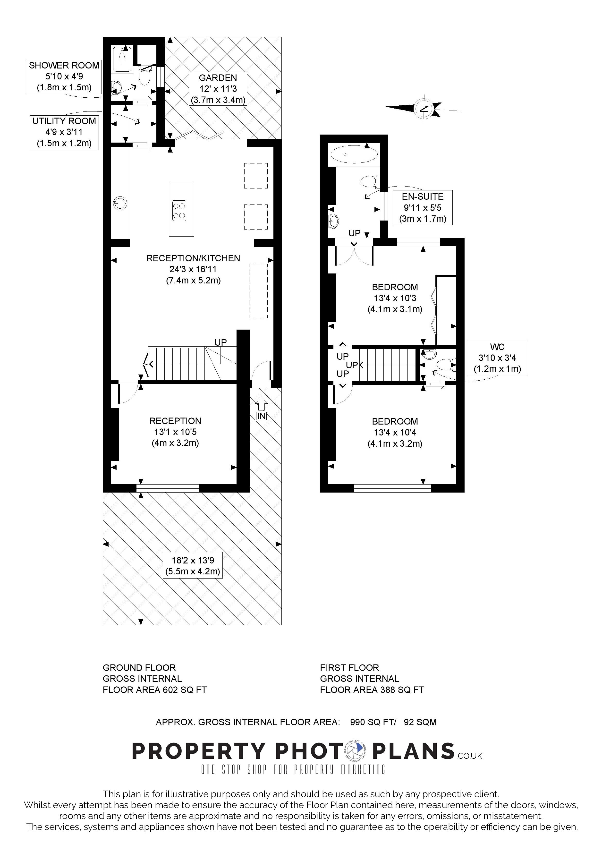
- 1002 Sq Ft / 93.1 Sq M
- Deposit - 5 weeks' rent - £3,750 based on asking price of £750 per week
- Council Tax Band G
- EPC Rating Band D
KEY INFORMATION
- Deposit: Fixed £3,750.00
- Council Tax Band: G
Description
Nb. This property is not suitable for sharers.
Accommodation comprises entrance hall, open plan kitchen / family room, utility area, shower room and reception room on the ground floor; the first floor offers two double bedrooms, one with en suite WC and the other with an en suite bathroom. The property further benefits from a private courtyard garden.
St Peters Grove forms part of St Peters conservation area. This sought after location offers convenient access to the amenities of both Hammersmith and Chiswick, the closest stations are Ravenscourt Park and Hammersmith.
ACCESSIBILITY
- Unsuitable For Wheelchairs
Meet the Team
The office has been established on the corner of Brook Green for many years, where the team have in excess of 30 years' experience in the area, just with Winkworth. Our longevity has led to a great deal of repeat business, selling and renting the same properties many times over.
See all team members