Let Agreed
Putney Hill, London, SW15
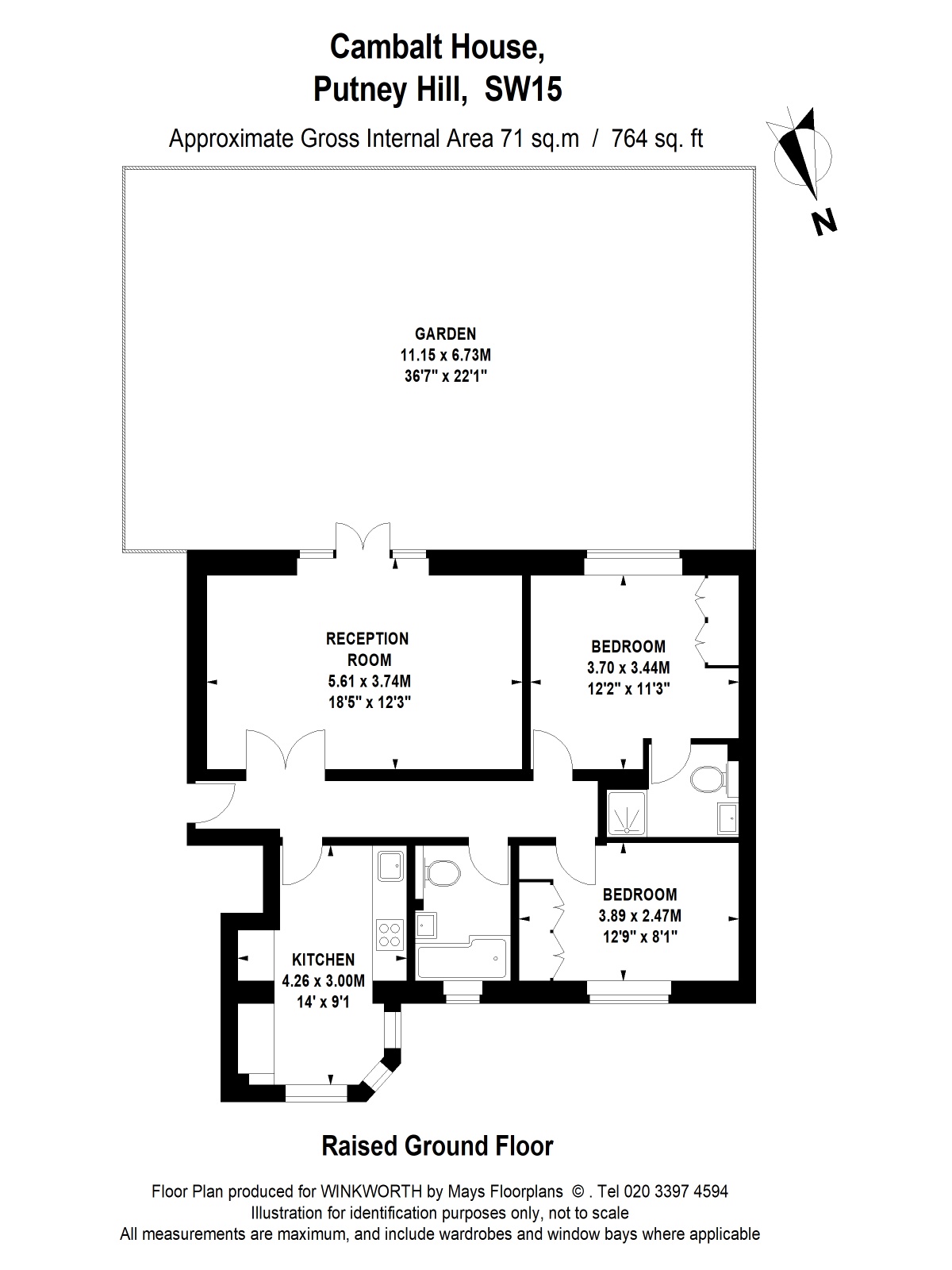
2 bedroom flat/apartment in London
£669 per week
- 2
- 2
- 1
- Unfurnished
-
768 sq ft
71 sq m -
PICTURES AND VIDEOS














Description
The property opens into a welcoming hallway leading to a bright and spacious reception room, perfect for entertaining or relaxing, with direct access to the private rear garden complete with decking and a small shed. The garden not only provides an excellent outdoor space for dining and leisure but also benefits from a private rear entrance, ideal for securely storing bicycles. From here, a side pathway leads directly to the left of the building where there is convenient off-street parking.
To the front of the apartment, the kitchen enjoys a charming bay window and ample space for storage and preparation, making it a highly functional and inviting space. The apartment offers two well-proportioned bedrooms: the principal bedroom features ample space for wardrobes, while the second bedroom offers versatility as a guest room, home office, or nursery. A family bathroom completes the accommodation.
Cambalt House occupies an excellent position on Cambalt Road, a quiet residential street just a short walk from Putney High Street, which provides a wide range of shops, restaurants, and amenities. Excellent transport connections are within easy reach, including Putney mainline station (links to London Waterloo) and East Putney Underground station (District Line), as well as numerous local bus routes.
Meet the Team
Our team at Winkworth Southfields Estate Agents are here to support and advise our customers when they need it most. We understand that buying, selling, letting or renting can be daunting and often emotionally meaningful. We are there, when it matters, to make the journey as stress-free as possible.
See all team members