Under Offer
Northumberland Avenue, London, WC2N
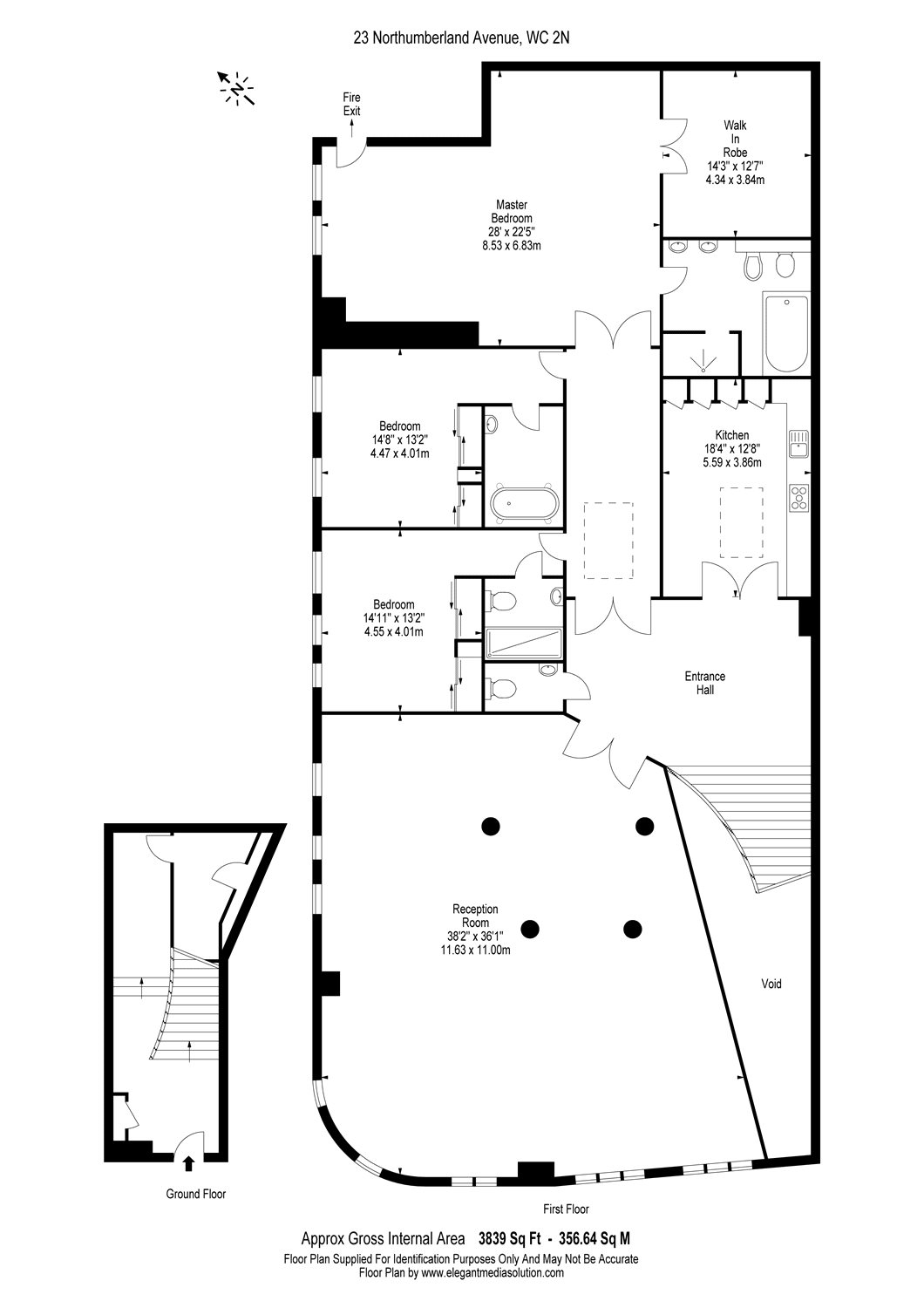
3 bedroom maisonette in London
£1,650 per week
- 3
- 3
- 1
- Furnished
PICTURES AND VIDEOS















KEY INFORMATION
- Deposit: Fixed £18,000.00
Description
Thoughtfully designed to combine historic grandeur with modern luxury, the apartment features three generously sized double bedrooms and has been finished to an outstanding decorative standard throughout.
Accessed via an imposing private ground floor entrance, the property immediately impresses with its sweeping marble staircase, accented by elegant chrome metalwork and contemporary lighting, setting the tone for the refined interiors beyond. The first-floor landing opens to a vast, curved open-plan reception room, providing an exceptional space for both entertaining and everyday living. A separate, fully equipped modern kitchen is finished with sleek granite work surfaces and high-quality integrated appliances.
The principal suite is grand in scale, featuring a hotel-standard ensuite bathroom and an expansive walk-in wardrobe offering extensive storage. The additional two double bedrooms are reached via a striking decorative hallway, each boasting built-in wardrobes and their own ensuite facilities—one with a bathroom and one with a shower room. There is also a guest cloakroom, and underfloor heating is installed throughout the apartment for added comfort.
Perfectly located on Northumberland Avenue in the heart of the West End, this residence connects the sophisticated elegance of Mayfair and the open spaces of St James’s Park with the dynamic vibrancy of Soho and the renowned theatres, boutiques, and attractions of Covent Garden and Theatreland. Trafalgar Square and the River Thames are just moments away.
The property enjoys excellent transport links, with Charing Cross mainline and Underground station (Bakerloo and Northern lines) and Embankment station (Bakerloo, Northern, District, and Circle lines) all within easy walking distance, as well as nearby Piccadilly Circus and Leicester Square stations.
Rent: £1,650.00 pw (£7,150.00 pcm) | 6 weeks deposit (£11,400) | 1 week holding fee | 12 months minimum | No parking | Council tax band TBC
Meet the Team
Winkworth West End has been rooted in the area for over 30 years, operating from our established office on New Oxford Street. With decades of combined experience across Sales, Lettings and Property Management, our team offers unrivalled local knowledge, and a service built on professionalism, insight and lasting relationships.
See all team members