Skip to main content

MyWinkworth

Picture No. 01
Picture No. 02
Picture No. 03
Picture No. 04
Picture No. 05
Picture No. 06
Picture No. 07
Picture No. 08
6/14

Medfield Street, London, SW15

2 bedroom house in London

£519 per week (£2,250 per month) Fees may apply

  • Bedrooms 2
  • Bathrooms 1
  • Reception rooms 1
  • Furnished
  • Part-furnished
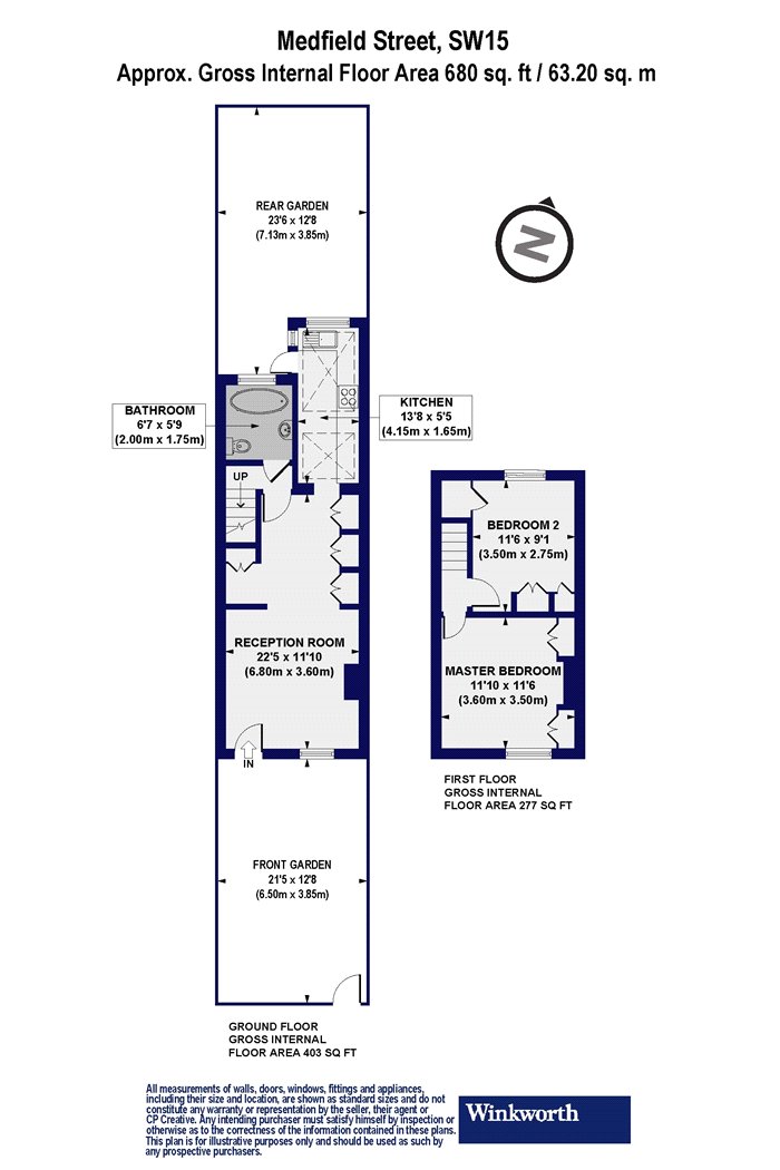
  • Dimensions 680 sq ft
    63 sq m
  • Floorplan

PICTURES AND VIDEOS

Description

This quaint two bedroom cottage is accessed through a pretty patio garden.

A spacious double reception room welcomes you with wood flooring and plenty of space for both living and dining. A galley kitchen is at the rear with a door opening onto a terraced rear garden. The luxurious bathroom with free-standing roll top bath completes the ground floor.

Two generous double bedrooms, both with built-in wardrobes occupy the first floor.

Medfield Street is ideally situated within easy reach of Putney and Barnes, offering access to an array of local shops, cafes, and restaurants. For those who enjoy the outdoors, the nearby green spaces of Richmond Park and Putney Heath provide excellent recreational opportunities.

Transport links are superb, with convenient access to local bus routes and Barnes Station, connecting you to Central London and beyond.

Marketed by

Winkworth Southfields

Properties for rent in Southfields

Arrange a Viewing

Fill in the form below to arrange your property viewing.

This site is protected by reCAPTCHA and the Google Privacy Policy and Terms of Service apply.
6/14
Picture No. 01
Picture No. 02
Picture No. 03
Picture No. 04
Picture No. 05
Picture No. 06
Picture No. 07
Picture No. 08

Meet the Team

Our team at Winkworth Southfields Estate Agents are here to support and advise our customers when they need it most. We understand that buying, selling, letting or renting can be daunting and often emotionally meaningful. We are there, when it matters, to make the journey as stress-free as possible.

See all team members

Got a question about this property?

This site is protected by reCAPTCHA and the Google Privacy Policy and Terms of Service apply.

More Properties like this

Let Agreed

Carmalt Gardens, London, SW15

£2,065 per week (£8,950 per month)

Under Offer

Putney Hill, London, SW15

£1,154 per week (£5,000 per month)

Let Agreed

Merivale Road, London, SW15

£1,038 per week (£4,500 per month)

Let Agreed

Durnsford Road, London, SW19

£692 per week (£3,000 per month)

Medfield Street, London, SW15

£519 per week (£2,250 per month)

Online Valuations Aren’t Worth The Paper They’re Printed On.

When online valuations don’t give you the whole picture - try Winkworth’s expert service. Get a free property appraisal. Accurate valuations from our local property experts. No obligation to list with Winkworth. Choose a time convenient for you with our online booking system.

Fill in your details and someone will be in touch soon:

You have provisionally booked a valuation for . Please confirm your details below

We don't have date info available for this property, but if you fill in your details below, someone will be in touch to arrange a date soon

Please fill in the required fields below marked with *

This site is protected by reCAPTCHA and the Google Privacy Policy and Terms of Service apply.