Let Agreed
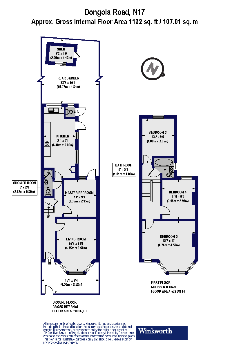
Dongola Road, London, N17
4 bedroom house in London
£600 per week
- 4
- 2
- 1
- Unfurnished
PICTURES AND VIDEOS













KEY FEATURES
- Suitable for sharers and families
- Newly refurbished
- Four bedrooms
- Reception Room
- Shower Room
- Kitchen
- Bathroom
- Garden
Description
This immaculate newly refurbished property arrives onto the rental market with a neutral finish throughout.
Dongola Road is approximately (14 mins walk - 0.8 miles) to Seven Sisters tube and railway stations, yet only a short distance of Downhills Park. This area is vastly changing every day with newly opened independent cafes/restaurants, specialists shops and boutique pubs and more importantly great schools with good Ofsted ratings. - making this corner of N17 a place you want to settle.
Please contact the Lettings department at Winkworth Harringay office to arrange an appointment to view [email protected]
Winkworth.co.uk
Your local independently owned property agency with a network of 55 London offices.
Est 1835
Meet the Team
At Winkworth Harringay Estate Agents, we have a comprehensive team of knowledgeable and personable property experts who are excited about the local area. So whether you're buying, selling, renting or letting or simply need some advice, pop into our office on Green Lanes for the experience and the local knowledge you need.
See all team members