New Instruction
Alexandra Road, London, N15
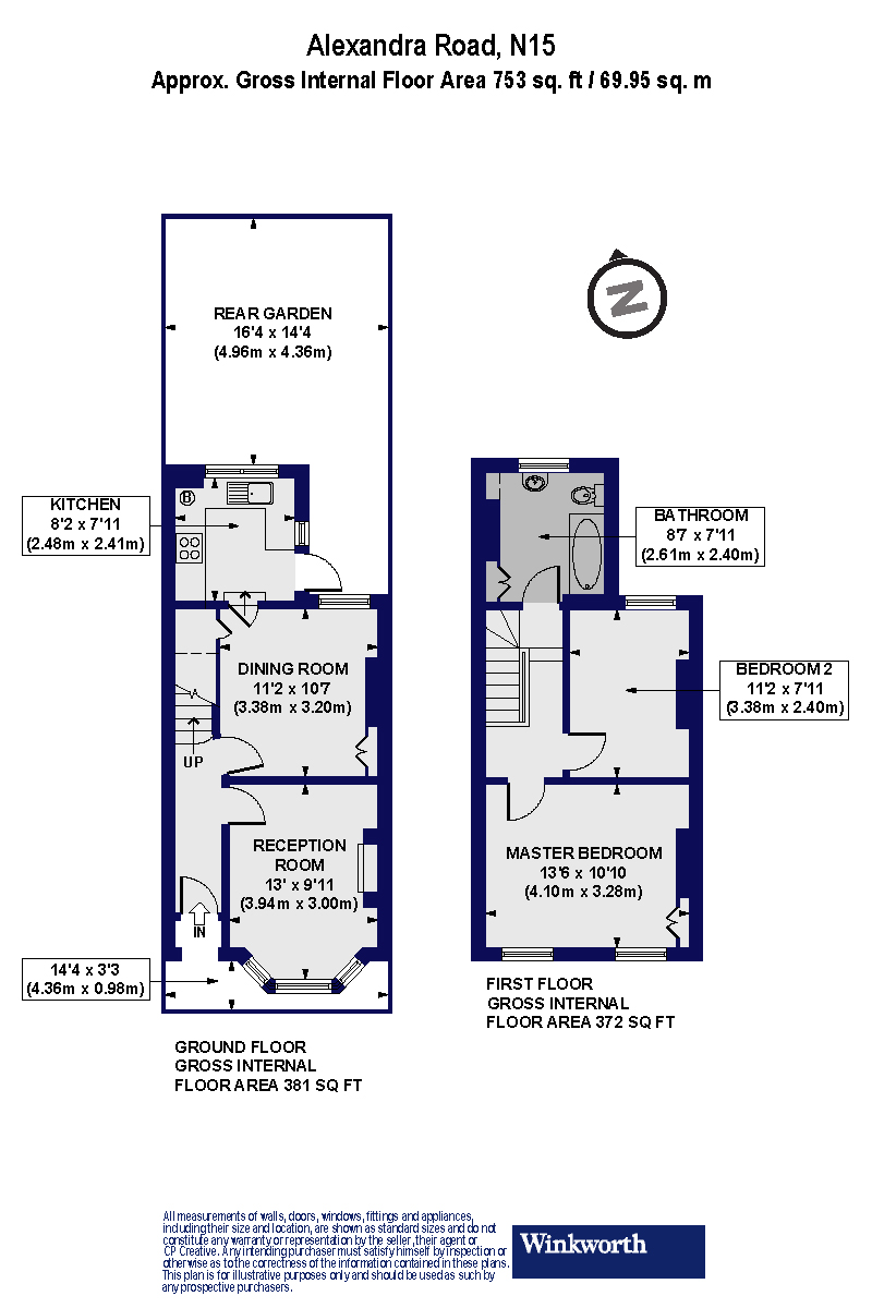
2 bedroom house in London
£462 per week
- 2
- 1
- 2
- Part-furnished
- Unfurnished
- Pets allowed
PICTURES AND VIDEOS















KEY FEATURES
- Two bedrooms
- Living Room
- Dining Room
- Kitchen
- Bathroom
- Private garden
- Pet friendly
- Council Tax Band C
KEY INFORMATION
- Deposit: 1 Months rent
- Council Tax Band: C
Description
Newly redecorated two bedroom house available to rent on Alexandra Road, N15.
The property boast of a front living room, dining room adjacent to the kitchen, two bedrooms, one bathroom and a garden.
Great location in N15 with close access to Chestnuts Park, Green Lanes Harringay and Stamford Hill. Seven Sisters BR-Underground station and Manor House St are both close by.
There are also some good local schools and nurseries within walking distance.
Winkworth.co.uk
Your local independently owned property agency with an extensive network of London offices.
Est 1835
Follow us on Instagram - @winkworthharringay
Marketed by
Winkworth Harringay
Properties for rent in HarringayArrange a Viewing
Fill in the form below to arrange your property viewing.
Meet the Team
At Winkworth Harringay Estate Agents, we have a comprehensive team of knowledgeable and personable property experts who are excited about the local area. So whether you're buying, selling, renting or letting or simply need some advice, pop into our office on Green Lanes for the experience and the local knowledge you need.
See all team members