Skip to main content

MyWinkworth

Sold

Exterior
Garden
Garden
Patio Area
Reception Room
Kitchen
Bathroom
Main Bedroom
Bedroom 3
Bedroom 2
6/14

Whatley Avenue, London, SW20

3 bedroom house in London

Guide Price £440,000 Freehold

  • Bedrooms 3
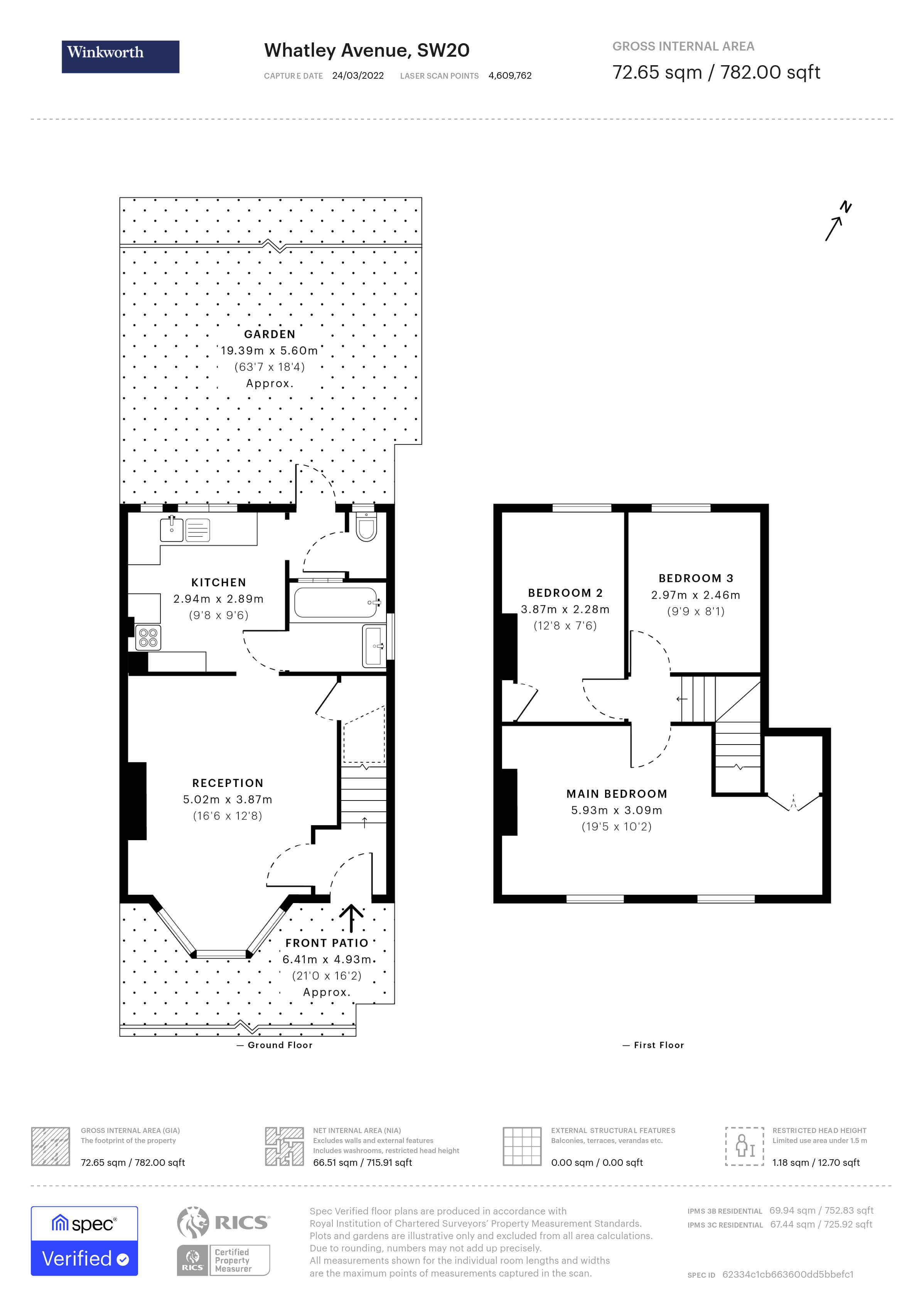
  • Dimensions 782 sq ft
    72 sq m
  • Floorplan

PICTURES AND VIDEOS

KEY FEATURES

  • Large rear garden
  • 3 bedrooms
  • Extension potential (STPP)

KEY INFORMATION

  • Tenure: Freehold

Description

For Sale By Online Auction, Starting Price £440,000 - terms and conditions apply.

A great opportunity to acquire a freehold three bedroom terraced family home with rear garden within close proximity to the amenities of Raynes Park and Wimbledon.

The ground floor comprises of a large reception room, kitchen and family bathroom with separate WC. On the first floor, there are three generous double bedrooms.

There is fantastic potential with this property to reconfigure to make a stunning family home along with the possibility of extending (subject to planning permission). This is a great buy to let investment or make it your own family home.

Auctioneers Additional Comments
Pattinson Auction are working in Partnership with the marketing agent on this online auction sale and are referred to below as 'The Auctioneer'.

Please be aware that any enquiry, bid or viewing of the subject property will require your details being shared between both the marketing agent and The Auctioneer in order that all matters can be dealt with effectively.

This auction lot is being sold either under conditional (Modern) or unconditional (Traditional) auction terms and overseen by the auctioneer in partnership with the marketing agent.

The property is available to be viewed strictly by appointment only via the Marketing Agent or The Auctioneer. Bids can be made via The Auctioneers or the Marketing Agents website.

Auctioneers Additional Comments
Your details may be shared with additional service providers via the marketing agent and/or The Auctioneer.

A Legal Pack associated with this particular property is available to view upon request and contains details relevant to the legal documentation enabling all interested parties to make an informed decision prior to bidding. The Legal Pack will also outline the buyers' obligations and sellers' commitments. It is strongly advised that you seek the counsel of a solicitor prior to proceeding with any property and/or Land Title purchase.

In order to submit a bid upon any property being marketed by The Auctioneer, all bidders/buyers will be required to adhere to a verification of identity process in accordance with Anti Money Laundering procedures.

Auctioneers Additional Comments
In order to secure the property and ensure commitment from the seller, upon exchange of contracts the successful bidder will be expected to pay a non-refundable deposit of 5% of the purchase price of the property. The deposit will be a contribution to the purchase price. A non-refundable reservation fee of up to 6% inc VAT (subject to a minimum of 6,000 inc VAT) is also required to be paid upon agreement of sale. The Reservation Fee is in addition to the agreed purchase price and consideration should be made by the purchaser in relation to any Stamp Duty Land Tax liability associated with overall purchase costs.

Both the Marketing Agent and The Auctioneer may believe necessary or beneficial to the customer to pass your details to third party service suppliers, from which a referral fee may be obtained. There is no requirement or indeed obligation to use these recommended suppliers or services.

Council Tax Band D
Introduction text for the mortgage calculator

Mortgage Calculator

Fill in the details below to estimate your monthly repayments:

Approximate monthly repayment:

For more information, please contact Winkworth's mortgage partner, Trinity Financial, on +44 (0)20 7267 9399 and speak to the Trinity team.

Stamp Duty Calculator

Fill in the details below to estimate your stamp duty

The above calculator above is for general interest only and should not be relied upon

6/14
Exterior
Garden
Garden
Patio Area
Reception Room
Kitchen
Bathroom
Main Bedroom
Bedroom 3
Bedroom 2

Meet the Team

Welcome to Winkworth Wimbledon, part of an estate agency legacy dating back to 1835. Our Wimbledon branch, proudly serving the local community since 2021, is located on the vibrant southern side of Wimbledon Hill Road, benefiting from high visibility and foot traffic. Our team become known not just for our local knowledge, but for the people behind it. We bring together decades of experience across sales, lettings, property management, and development advice. We work closely together to deliver a seamless service that’s built on trust, communication, and a genuine commitment to our clients.

See all team members

Got a question about this property?

This site is protected by reCAPTCHA and the Google Privacy Policy and Terms of Service apply.

More Properties like this

Atkinson Close, London, SW20

£4,000,000 Freehold

Online Valuations Aren’t Worth The Paper They’re Printed On.

When online valuations don’t give you the whole picture - try Winkworth’s expert service. Get a free property appraisal. Accurate valuations from our local property experts. No obligation to list with Winkworth. Choose a time convenient for you with our online booking system.

Fill in your details and someone will be in touch soon:

You have provisionally booked a valuation for . Please confirm your details below

We don't have date info available for this property, but if you fill in your details below, someone will be in touch to arrange a date soon

Please fill in the required fields below marked with *

This site is protected by reCAPTCHA and the Google Privacy Policy and Terms of Service apply.