Skip to main content

MyWinkworth

Sold

Picture No. 10
Picture No. 16
Picture No. 22
Picture No. 08
Picture No. 09
Picture No. 23
Picture No. 12
Picture No. 13
Picture No. 19
Picture No. 17
Picture No. 11
Picture No. 14
Picture No. 18
Picture No. 20
Picture No. 21
Picture No. 07
Picture No. 15
Picture No. 02
Picture No. 03
Picture No. 05
6/14

Steele Road, London, N17

2 bedroom flat/apartment in London

Guide Price £395,000 Leasehold

  • Bedrooms 2
  • Bathrooms 1
  • Reception rooms 1
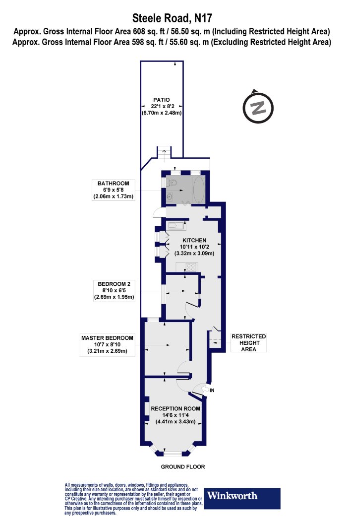
  • Floorplan

PICTURES AND VIDEOS

KEY FEATURES

  • 608 Sq.Ft
  • Lovley Reception Room
  • Private Garden
  • Kitchen Breakfast Room
  • Two Double Bedrooms
  • Period Features
  • Cool Interiors
  • Excellent Transport Links

KEY INFORMATION

  • Tenure: Leasehold

Description

Found on an attractive terraced street, within a short distance of Bruce Grove Rail Station and Seven Sisters Underground this superb two-bedroom ground floor conversion with garden has lots of character and charm.

Sole Agent

Set on the entire ground floor of a pretty Victorian terrace, this conversion has many of its original features. With generous room proportions and high ceilings throughout, this warm and sociable space makes a great first time buy. The living area consists of a bay fronted reception room, two-bedrooms, modern bathroom, kitchen breakfast room and a patio rear garden.

For those of you who like walking you’re not far from Seven Sisters Underground Station/BR Station (Victoria Line Zone 3 and Main Line to Liverpool Street 20 mins. Tottenham Hale Station ( Standsted Express Link) is 0.7 mile from the flat and takes less than 15mins to walk to.

Steele Road is an attractive and quiet road tucked away from the hustle and bustle of Tottenham high Road yet still easy enough to get too.
You are within a short stroll of the many new bars, coffee shops and restaurants that have recently opened up on both Tottenham High Road and Philip Lane making this a truly exciting purchase opportunity.

Please contact the sales team at Winkworth Harringay office to arrange an appointment to view 020 8800 5151 - [email protected]

Winkworth.co.uk

Your local independently owned property agency with a network of 55 London offices.

Est 1835
Introduction text for the mortgage calculator

Mortgage Calculator

Fill in the details below to estimate your monthly repayments:

Approximate monthly repayment:

For more information, please contact Winkworth's mortgage partner, Trinity Financial, on +44 (0)20 7267 9399 and speak to the Trinity team.

Stamp Duty Calculator

Fill in the details below to estimate your stamp duty

The above calculator above is for general interest only and should not be relied upon

6/14
Picture No. 10
Picture No. 16
Picture No. 22
Picture No. 08
Picture No. 09
Picture No. 23
Picture No. 12
Picture No. 13
Picture No. 19
Picture No. 17
Picture No. 11
Picture No. 14
Picture No. 18
Picture No. 20
Picture No. 21
Picture No. 07
Picture No. 15
Picture No. 02
Picture No. 03
Picture No. 05

Meet the Team

At Winkworth Harringay Estate Agents, we have a comprehensive team of knowledgeable and personable property experts who are excited about the local area. So whether you're buying, selling, renting or letting or simply need some advice, pop into our office on Green Lanes for the experience and the local knowledge you need.

See all team members

Got a question about this property?

This site is protected by reCAPTCHA and the Google Privacy Policy and Terms of Service apply.

More Properties like this

Under Offer

Burgoyne Road, London, N4

Guide Price £735,000 Share of Freehold

Under Offer

Sydney Road, London, N8

Guide Price £725,000 Share of Freehold

Under Offer

Wightman Road, London, N4

Guide Price £650,000 Leasehold

Frankum Mews, London, N22

£649,950 Leasehold

Under Offer

Duckett Road, London, Haringey, N4

Guide Price £635,000 Share of Freehold

New Instruction

Coningsby Road, London, N4

£625,000 Share of Freehold

Online Valuations Aren’t Worth The Paper They’re Printed On.

When online valuations don’t give you the whole picture - try Winkworth’s expert service. Get a free property appraisal. Accurate valuations from our local property experts. No obligation to list with Winkworth. Choose a time convenient for you with our online booking system.

Fill in your details and someone will be in touch soon:

You have provisionally booked a valuation for . Please confirm your details below

We don't have date info available for this property, but if you fill in your details below, someone will be in touch to arrange a date soon

Please fill in the required fields below marked with *

This site is protected by reCAPTCHA and the Google Privacy Policy and Terms of Service apply.