Skip to main content

MyWinkworth

Sold

Picture No. 09
Picture No. 13
Picture No. 12
Picture No. 01
Picture No. 11
Picture No. 08
Picture No. 06
Picture No. 07
Picture No. 03
Picture No. 05
Picture No. 10
Picture No. 14
6/14

Queen Annes Drive, Westcliff-on-Sea, Essex, SS0

1 bedroom flat/apartment in Westcliff-on-Sea

£169,995 Share of Freehold

  • Bedrooms 1
  • Bathrooms 1
  • Reception rooms 1
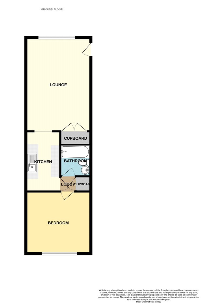
  • Floorplan

PICTURES AND VIDEOS

KEY FEATURES

  • GROUND FLOOR APARTMENT
  • NO ONWARD CHAIN
  • LOUNGE
  • FITTED KITCHEN
  • GOOD SIZE BEDROOM
  • BATHROOM/W.C.
  • GARAGE IN BLOCK AT REAR
  • COMMUNAL GARDEN
  • COUNCIL TAX BAND B

KEY INFORMATION

  • Tenure: Share of Freehold
  • Council Tax Band: B

Description

Winkworth of Leigh are delighted to bring to the market this purpose built ground floor apartment.

The property comprises of a spacious lounge, kitted kitchen, bathroom and bedroom. There are communal gardens and a garage with a parking space in front of it.

Located within a short walk of local amenities including Southend Hospital and Tesco's super store and easy access to the A127. This property would make an ideal first time buy or investment.



Being offered with no onward chain we would advise an internal viewing.


Communal entrance door to entrance hall.
Door to apartment: -

Lounge: - 16’85 x 10'35 approx. Double-glazed window to front. Coving to ceiling. Storage heater. Storage cupboard. Arch to Kitchen.


Kitchen: - 13'21 x 4’91 approx. Fitted with range of white eye level wall cupboards, matching base unit with work top. Round bowl single drainer stainless sink unit, mixer tap. Plumbing for washing machine. Electric cooker. Extractor cooker hood. Spot lights to ceiling. Part tiled wall.

Lobby: - Built in airing cupboard.

Bedroom: - 10’71 x 10’77 approx. Double-glazed window to rear. Coving to ceiling. Storage heater.


Bathroom: - White suite comprising panelled bath with mixer tap, shower fitted above bath with folding shower screen. Pedestal wash basin with pop up waste and mixer tap. Low level w.c., mirror. Walls fully tiled. Extractor fan. Heated towel rail.

Exterior: - Communal garden. Garage in block with parking space in front of the garage
Introduction text for the mortgage calculator

Mortgage Calculator

Fill in the details below to estimate your monthly repayments:

Approximate monthly repayment:

For more information, please contact Winkworth's mortgage partner, Trinity Financial, on +44 (0)20 7267 9399 and speak to the Trinity team.

Stamp Duty Calculator

Fill in the details below to estimate your stamp duty

The above calculator above is for general interest only and should not be relied upon

6/14
Picture No. 09
Picture No. 13
Picture No. 12
Picture No. 01
Picture No. 11
Picture No. 08
Picture No. 06
Picture No. 07
Picture No. 03
Picture No. 05
Picture No. 10
Picture No. 14

Meet the Team

Our team at Winkworth Leigh-on-Sea Estate Agents are here to support and advise our customers when they need it most. We understand that buying, selling, letting or renting can be daunting and often emotionally meaningful. We are there, when it matters, to make the journey as stress-free as possible.

See all team members

Got a question about this property?

This site is protected by reCAPTCHA and the Google Privacy Policy and Terms of Service apply.

More Properties like this

Video Tour

Grand Parade, Leigh-on-Sea, Essex, SS9

£1,750,000 Freehold

Video Tour

Grand Parade, Leigh-on-Sea, Essex, SS9

£1,650,000 Freehold

Video Tour

Grand Parade, Leigh-on-Sea, Essex, SS9

£1,350,000 Freehold

Video Tour

Grand Parade, Leigh-on-Sea, Essex, SS9

£1,350,000 Freehold

Video Tour

Broadway, Leigh-on-Sea, Essex, SS9

£550,000 Leasehold

London Road, Leigh On Sea, SS9

Guide Price £525,000 Share of Freehold

Online Valuations Aren’t Worth The Paper They’re Printed On.

When online valuations don’t give you the whole picture - try Winkworth’s expert service. Get a free property appraisal. Accurate valuations from our local property experts. No obligation to list with Winkworth. Choose a time convenient for you with our online booking system.

Fill in your details and someone will be in touch soon:

You have provisionally booked a valuation for . Please confirm your details below

We don't have date info available for this property, but if you fill in your details below, someone will be in touch to arrange a date soon

Please fill in the required fields below marked with *

This site is protected by reCAPTCHA and the Google Privacy Policy and Terms of Service apply.